Frontansicht
Vogelperspektive
Bestand
Lageplan
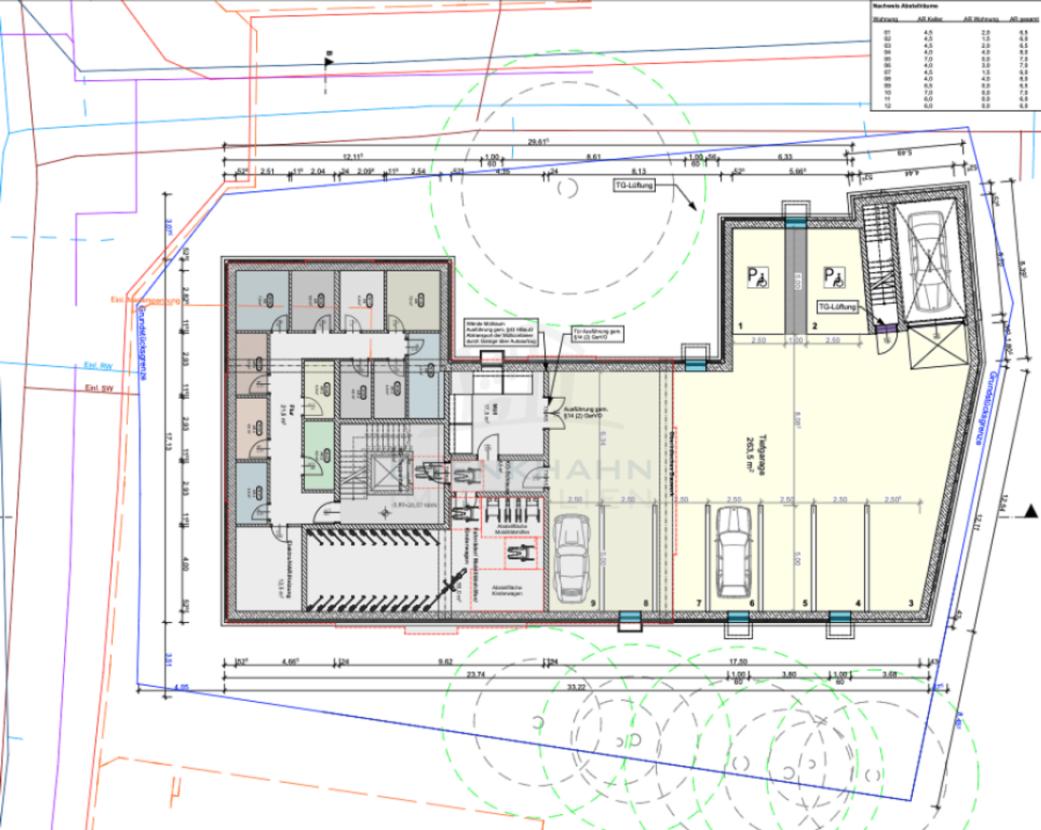
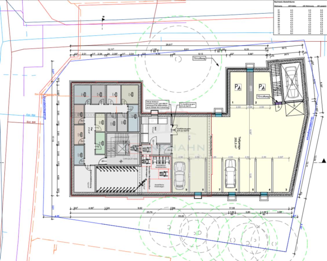
TG
EG
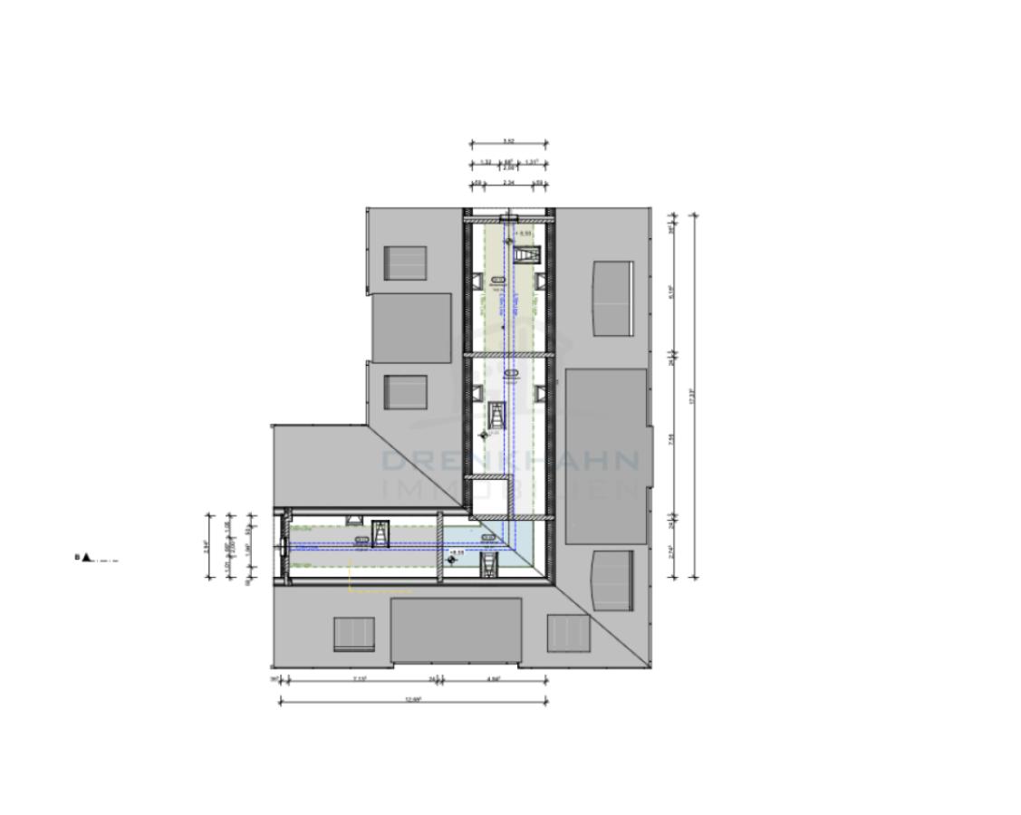
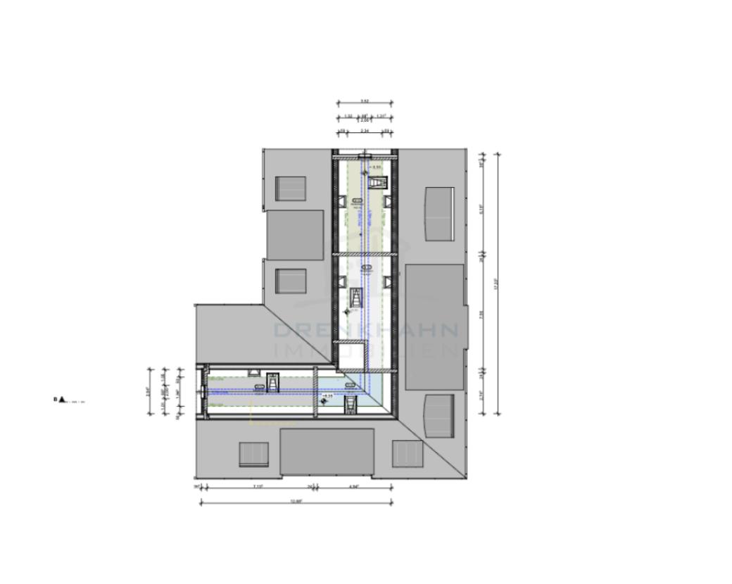
OG 1 & 2
DG
SB
9 Fotos ansehen
Grundriss

Baugenehmigung vorhanden! 12 Wohneinheiten mit Tiefgarage in Hamburg-Billstedt

1.190.000 €

Kaufpreis 1.114,23 €/m2

1068 m2

Grunstücksfläche

Adresse

Billstedt, 22117 Hamburg

Auf Karte anzeigen

Aufzug
PKW-Stellplatz
Barrierefrei
Keller

Grundstück ca.:

1068 m2

Grundflächenzahl (GRZ):

1

Verfügbar ab:

Nach Vereinbarung

Kosten

Kaufpreis:

1.190.000 €

Preis/m2:

1.114,23 €

Provision:

5,95 % inkl. 19% gesetzl. MwSt vom Kaufpreis.

Objektbeschreibung

Austattung

Grundrisse

Lageplan
TG
EG
OG 1 & 2
DG
SB

Lage

Sonstiges

Karte

Billstedt, 22117 Hamburg

Die vollständige Adresse der Immobilie erhalten Sie vom Anbieter.

Logo Drenkhahn Immobilien GmbH

Drenkhahn Immobilien GmbH

Gewerblicher Anbieter:in

Impressum des Anbieters
Anbieter kontaktieren