Ansicht Whg. 1.1
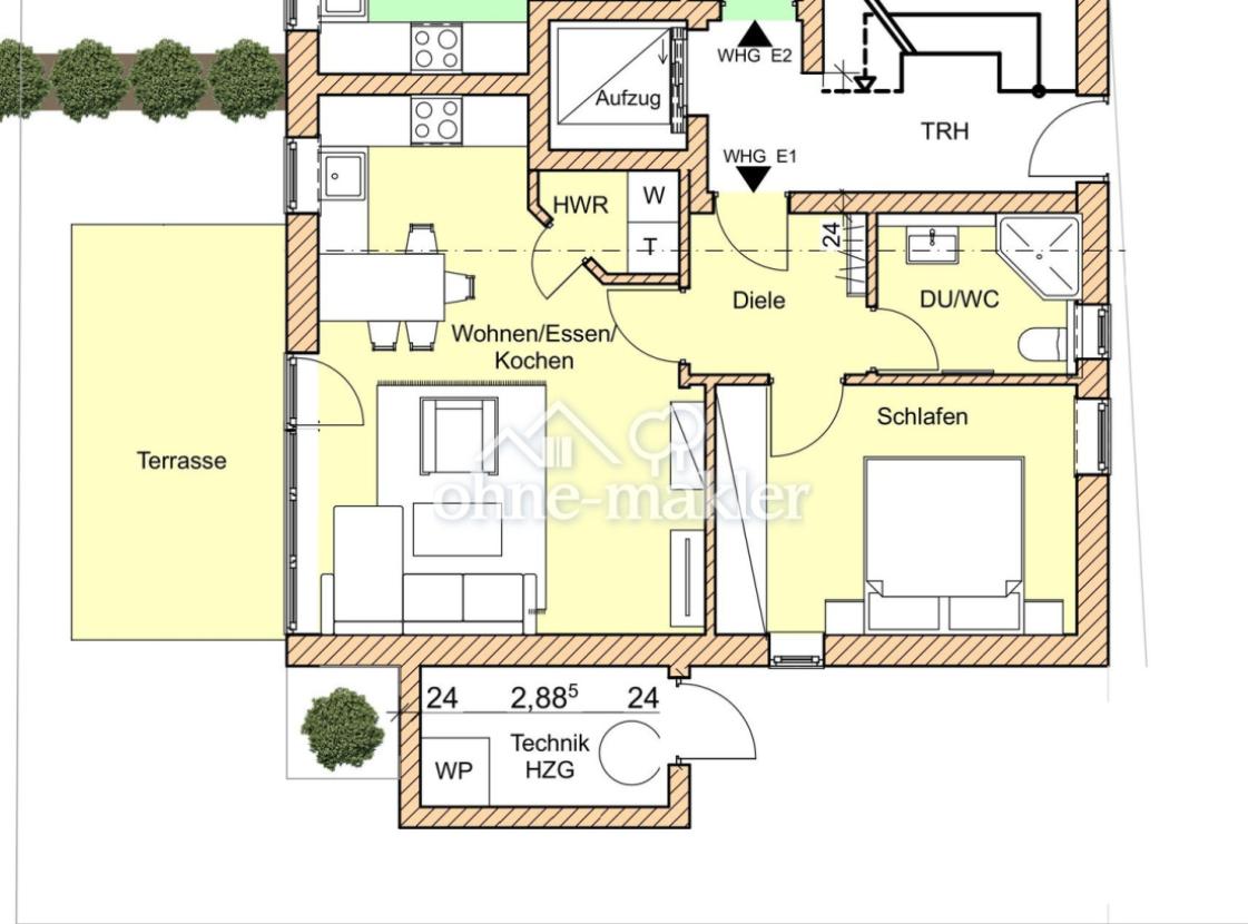
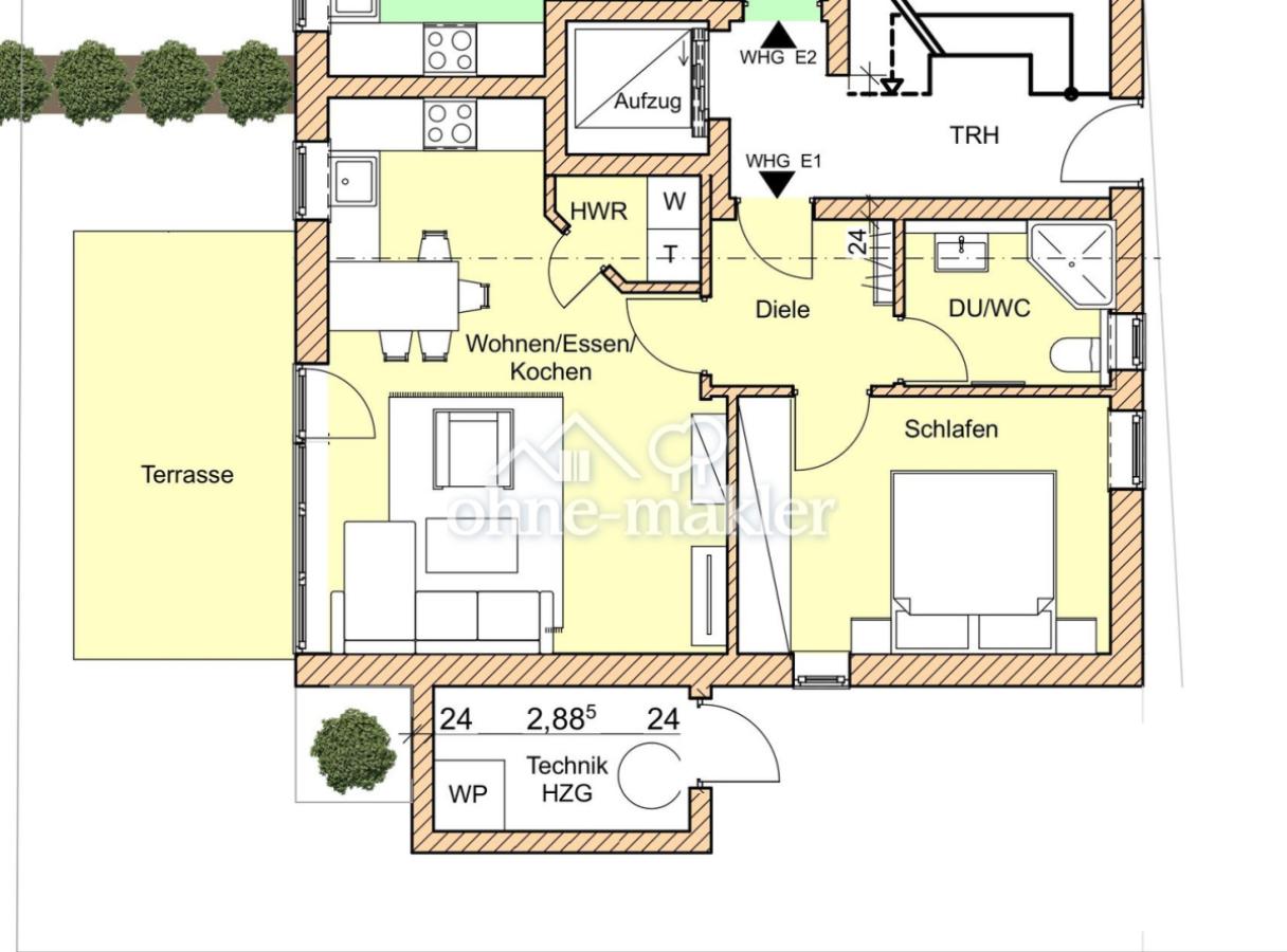
Grundriss EG 1.1
Übersichtsplan
3 Fotos ansehen

Provisionsfrei, Terrassenwohnung mit Garten, Carport, in zentralnaher Lage von Bad Zwischenahn

249.500 €

Kaufpreis 4.784,28 €/m2

2

Zi.

52 m2

Wohnfläche

Adresse

26160 Bad Zwischenahn

Auf Karte anzeigen

Garten
Aufzug
Terasse
PKW-Stellplatz

Typ:

Erdgeschoss

Etagenanzahl:

3

Wohnfläche ca.:

52 m2

Bezugsfrei ab:

nach Absprache

Zimmer:

2

Schlafzimmer:

1

Badezimmer:

1

Garage/Stellplatz:

1 Carport

Kosten

Kaufpreis:

249.500 €

Preis/m2:

4.784,28 €

Provision:

keine Provision, courtagefrei

Bausubstanz & Energieausweis

Baujahr:

2025

Objektzustand:

Erstbezug

Heizungsart:

Fußbodenheizung

Wesentliche Energieträger:

Luftwärmepumpe

Energieausweis:

liegt nicht vor

Objektbeschreibung

Austattung

Lage

Sonstiges

Karte

26160 Bad Zwischenahn

Die vollständige Adresse der Immobilie erhalten Sie vom Anbieter.

Logo Ohne Makler

Ohne Makler

Gewerblicher Anbieter:in

Impressum des Anbieters:
Anbieter kontaktieren