Bild
Bild
2 Fotos ansehen

1-Zimmer-Erdgeschoss-Wohnung | Kapitalanlage

197.000 €

Kaufpreis 6.677,97 €/m2

1

Zi.

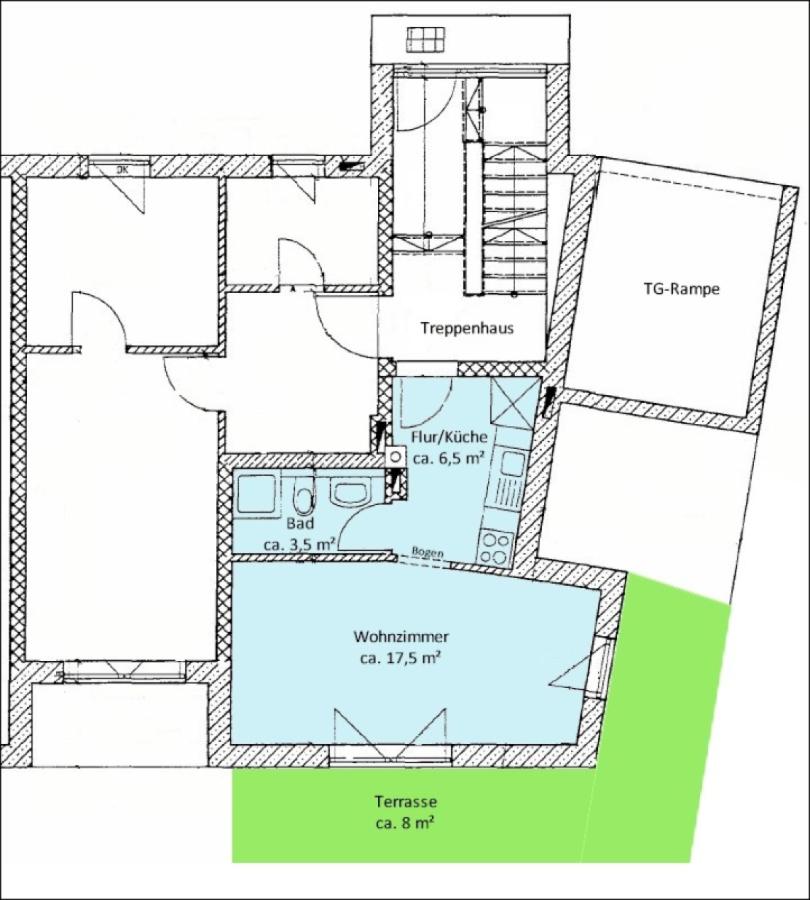
30 m2

Wohnfläche

Adresse

85221 Dachau

Auf Karte anzeigen

Einbauküche
Terasse
PKW-Stellplatz
Fahrradraum

Typ:

Erdgeschoss

Wohnfläche ca.:

30 m2

Nutzfläche ca.:

10 m2

Zimmer:

1

Badezimmer:

1

Garage/Stellplatz:

1 Duplex-Stellplatz

Kosten

Kaufpreis:

197.000 €

Preis/m2:

6.677,97 €

Kaufpreis für Duplex-Stellplatz:

15.000 €

Bausubstanz & Energieausweis

Baujahr:

1992

Objektzustand:

Gepflegt

Heizungsart:

Zentralheizung

Wesentliche Energieträger:

Gas

Energieausweis:

liegt vor

Energieausweistyp:

Verbrauch

Energieklasse:

D

Objektbeschreibung

Austattung

Lage

Sonstiges

Karte

85221 Dachau

Die vollständige Adresse der Immobilie erhalten Sie vom Anbieter.

Logo Felix Raithel Immobilien

Felix Raithel Immobilien

Gewerblicher Anbieter:in

Impressum des Anbieters
Anbieter kontaktieren