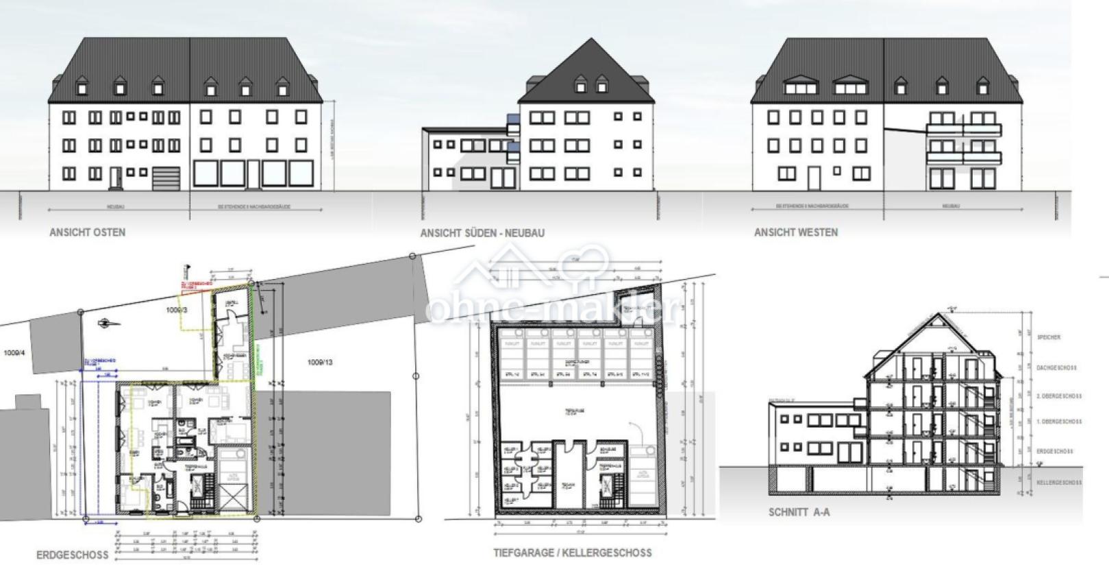
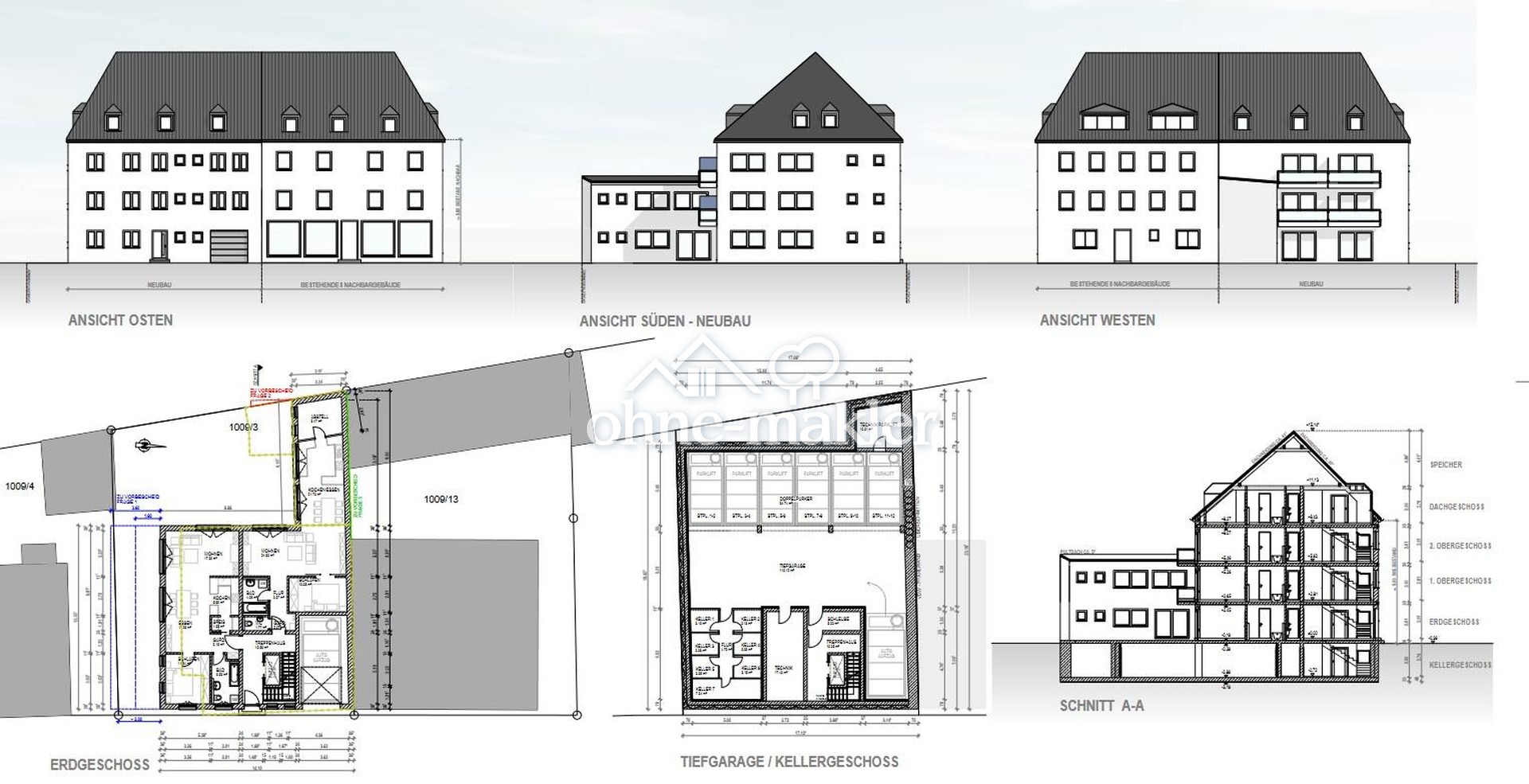
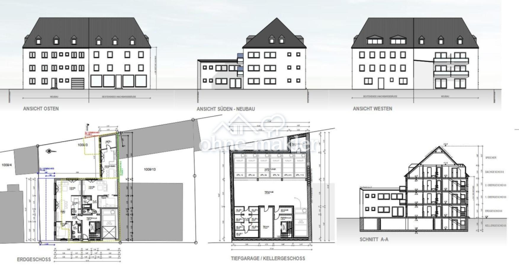
Vorbescheid Neu ca. 520m²
1 Fotos ansehen

Entwicklungspotential - 8 WEH -

2.490.000 €

Kaufpreis 4.788,46 €/m2

520 m2

Grunstücksfläche

Adresse

Moosach, 80992 München

Auf Karte anzeigen

Grundstück ca.:

520 m2

Verfügbar ab:

nach Absprache

Kosten

Kaufpreis:

2.490.000 €

Preis/m2:

4.788,46 €

Provision:

keine Provision, courtagefrei

Bausubstanz & Energieausweis

Baujahr:

1910

Wesentliche Energieträger:

Gas

Energieausweis:

liegt nicht vor

Objektbeschreibung

Lage

Sonstiges

Karte

Moosach, 80992 München

Die vollständige Adresse der Immobilie erhalten Sie vom Anbieter.

Logo Ohne Makler

Ohne Makler

Gewerblicher Anbieter:in

Impressum des Anbieters:
Anbieter kontaktieren