Lageplan_Abstandsflächen_Variante_1
Städtebaulicher-Vorentwurf
Schnitt A-A_Variante 1
Ansichten Haus D
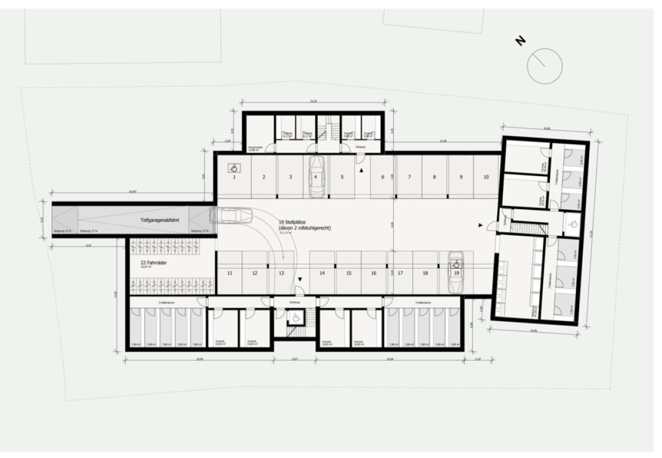
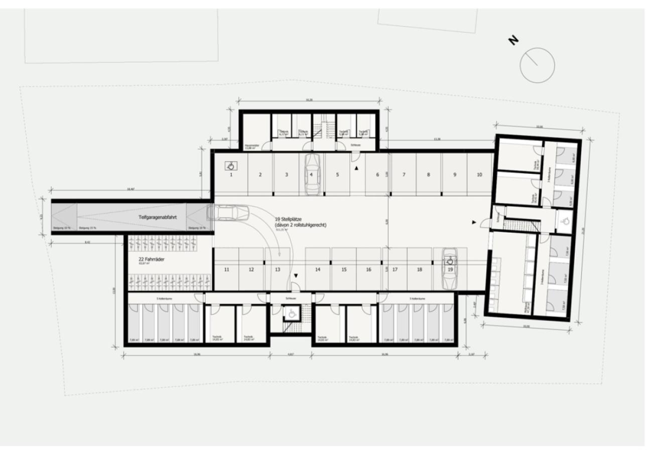
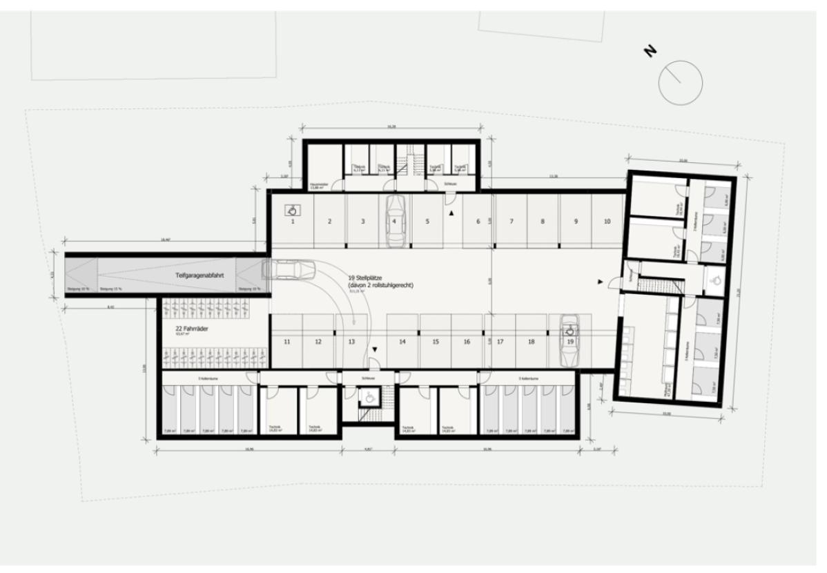
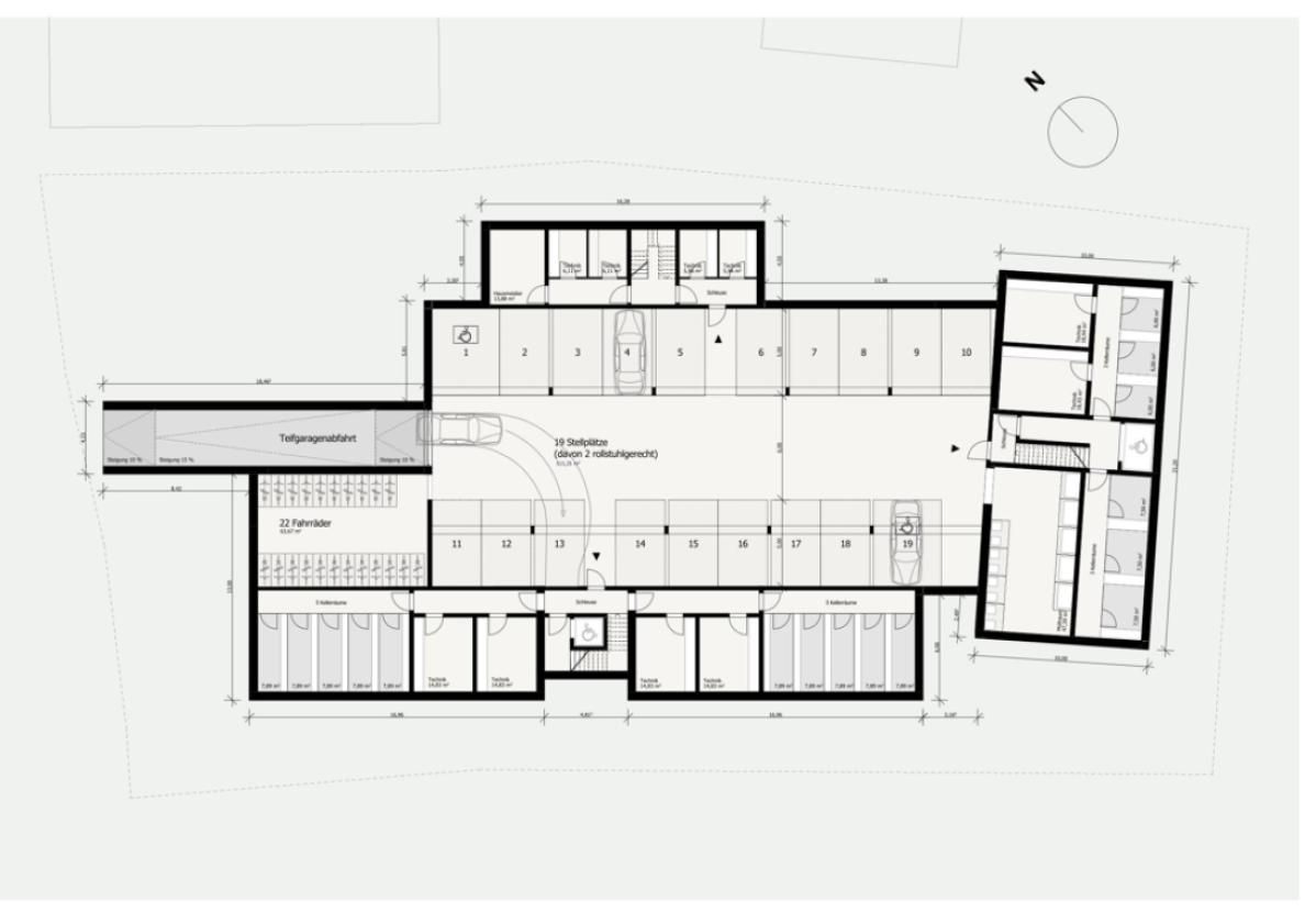
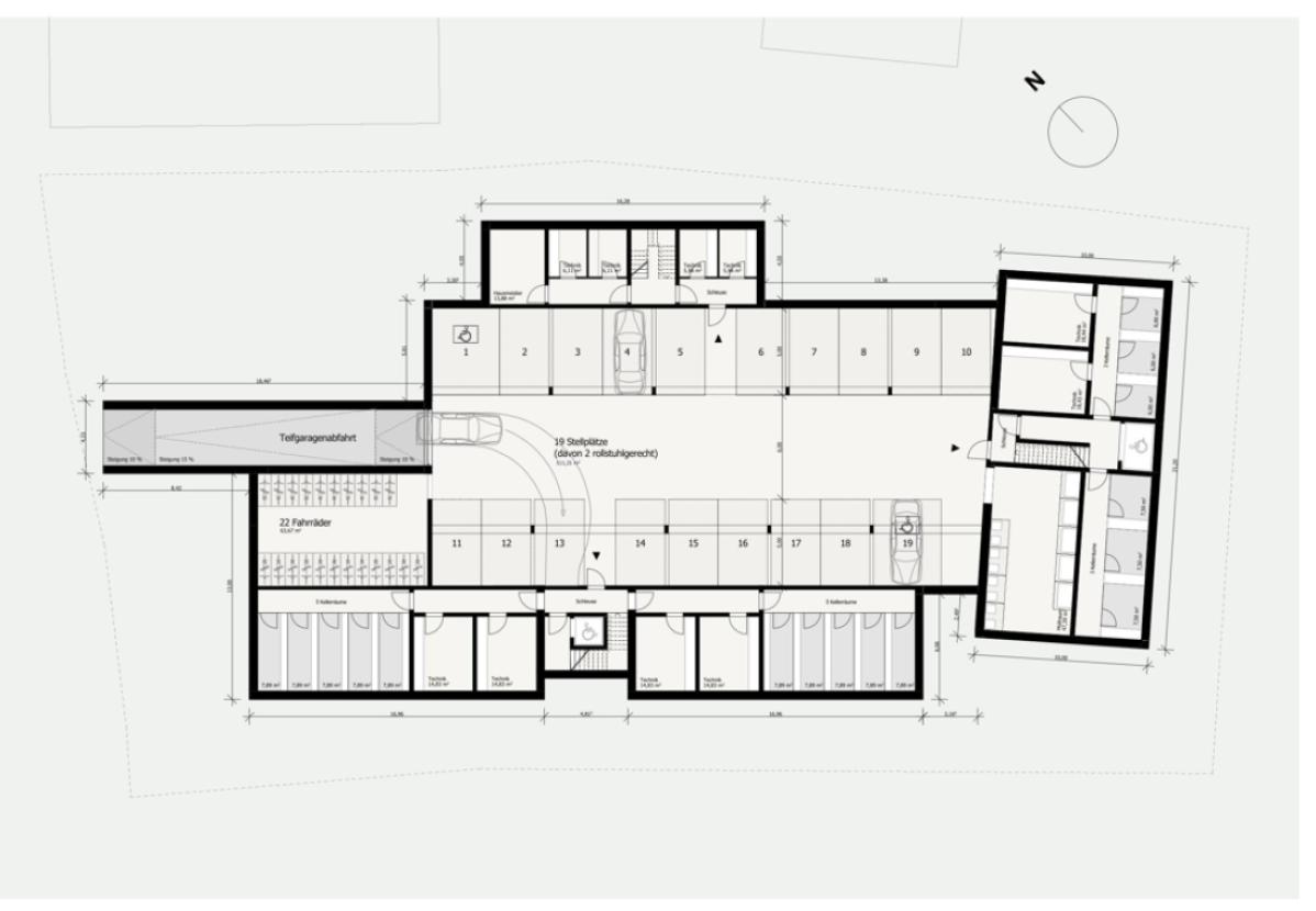
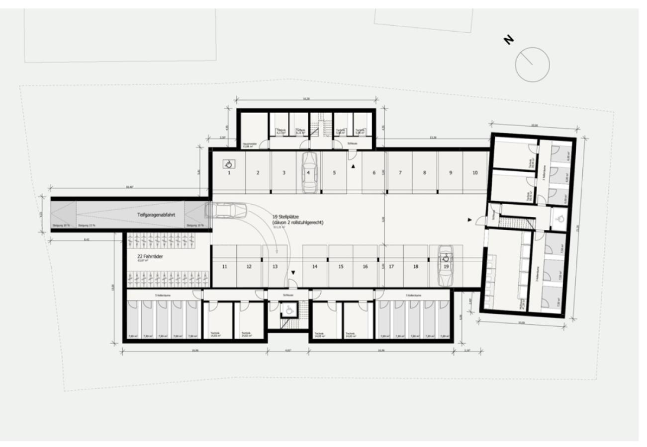
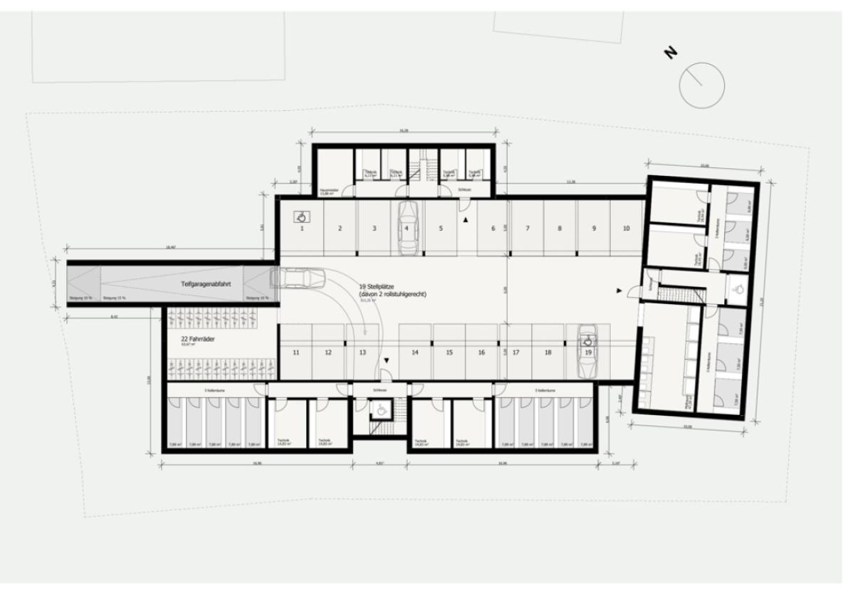
Grundriss UG
Grundriss EG
Grundriss OG
Grundriss DG
Susanne Wischnewski
9 Fotos ansehen
Grundriss

Kapitalanleger aufgepasst, Bauplatz 2243m² mit Vorplanung u. Erschließung

1.800.000 €

Kaufpreis 802,50 €/m2

2243 m2

Grunstücksfläche

Adresse

Wasser, 79312 Emmendingen

Auf Karte anzeigen

Grundstück ca.:

2243 m2

Erschließung:

TEILERSCHLOSSEN

Geschossflächenzahl (GFZ):

1

Verfügbar ab:

Nach Vereinbarung

Kosten

Kaufpreis:

1.800.000 €

Preis/m2:

802,50 €

Provision:

Provisionsfrei

Objektbeschreibung

Grundrisse

Grundriss UG
Grundriss OG
Grundriss DG

Lage

Sonstiges

Karte

Wasser, 79312 Emmendingen

Die vollständige Adresse der Immobilie erhalten Sie vom Anbieter.

Logo Nova Domare Immobilien - Agentur

Nova Domare Immobilien - Agentur

Gewerblicher Anbieter:in

Impressum des Anbieters
Anbieter kontaktieren