Garten
Wohnzimmer EG
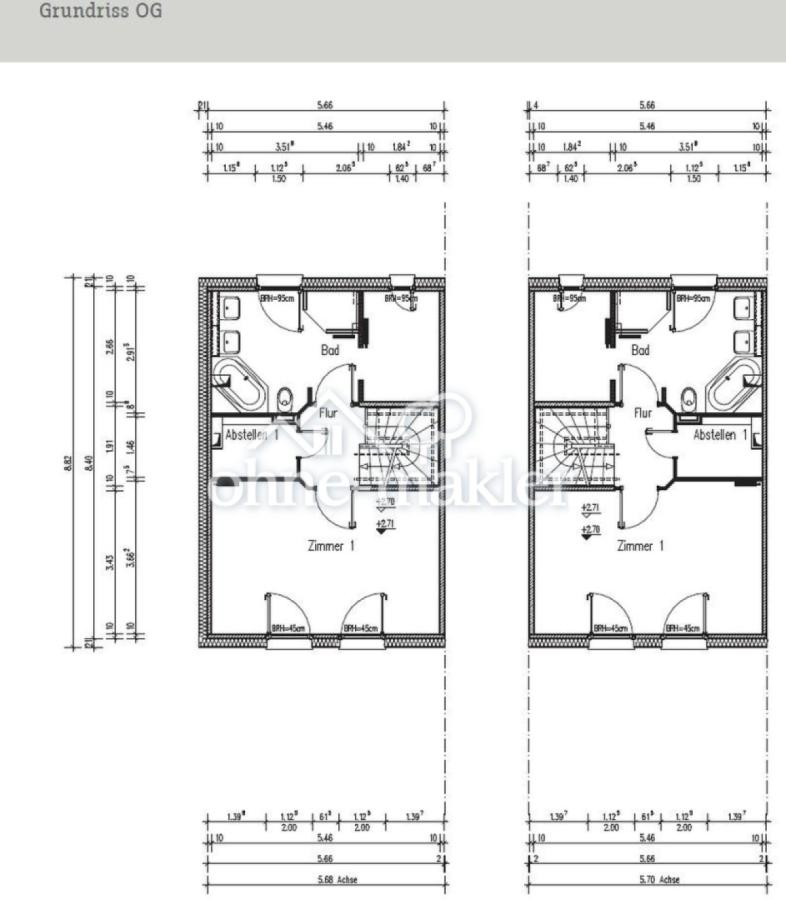
Schlafzimmer OG
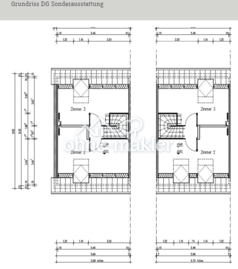
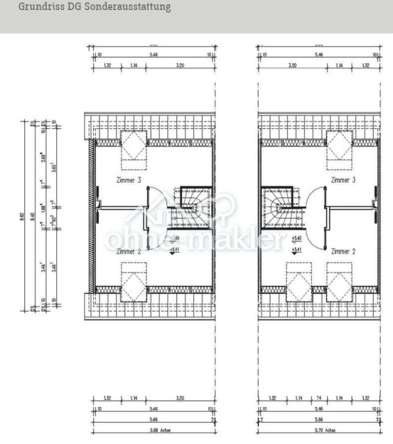
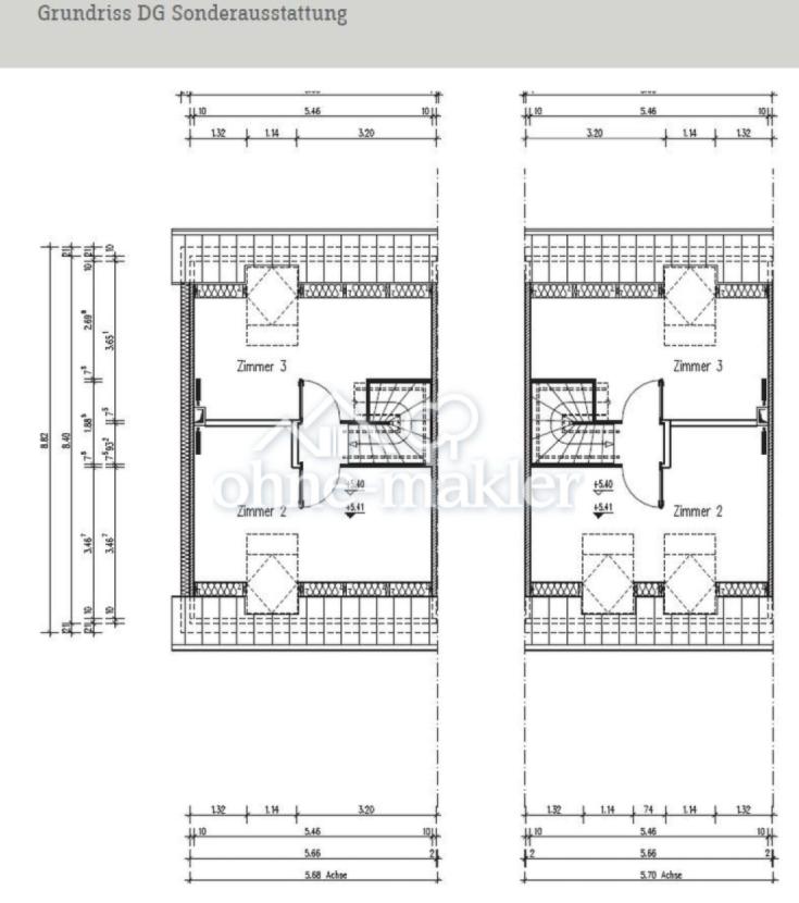
DG rechts
DG links
Tageslicht-Bad
Waschraum
Front
Terrasse
Lageplan
Ansicht Querschnitt
Grundriss EG
Grundriss OG
Grundriss DG ausgebaut
14 Fotos ansehen
Grundriss

Schönes Reihenendhaus mit 4 Zimmern, Terrasse und Garten, von Privat, direkt in Weinheim

538.000 €

Kaufpreis 4.637,93 €/m2

4

Zi.

116 m2

Wohnfläche

Adresse

69469 Weinheim

Auf Karte anzeigen

Garten
Terasse
PKW-Stellplatz

Typ:

Reihenend

Etagenanzahl:

3

Wohnfläche ca.:

116 m2

Grundstück ca.:

195 m2

Bezugsfrei ab:

01.02.2026

Zimmer:

4

Schlafzimmer:

3

Badezimmer:

1

Garage/Stellplatz:

2 Außenstellplätze

Kosten

Kaufpreis:

538.000 €

Preis/m2:

4.637,93 €

Provision:

keine Provision, courtagefrei

Bausubstanz & Energieausweis

Baujahr:

2013

Objektzustand:

Gepflegt

Energieausweis:

liegt vor

Energieausweistyp:

Verbrauch

Energieklasse:

A

Objektbeschreibung

Austattung

Grundrisse

Lageplan
Ansicht Querschnitt
Grundriss EG
Grundriss OG
Grundriss DG ausgebaut

Lage

Sonstiges

Karte

69469 Weinheim

Die vollständige Adresse der Immobilie erhalten Sie vom Anbieter.

Logo Ohne Makler

Ohne Makler

Gewerblicher Anbieter:in

Impressum des Anbieters:
Anbieter kontaktieren