Vorderansicht
Schlafzimmer
Küche
Küche
Küche
Badezimmer
Wohnzimmer
Schlafzimmer
Schlafzimmer
Wohnzimmer
Badezimmer
Wohnküche
Wohnzimmer
Schlafzimmer
Flur
Küche
Schlafzimmer
Wohnzimmer
Badezimmer
Kinderzimmer
Kinderzimmer
Wohnzimmer
Küche
Grundriss Skizze EG
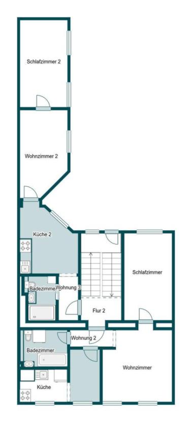
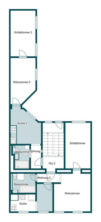
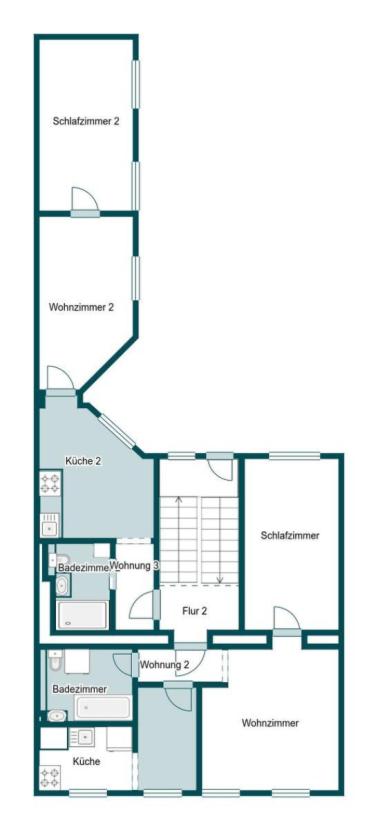
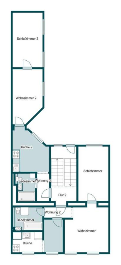
Grundriss Skizze 2.OG
Grundriss Skizze 3.OG
Grundriss Skizze 5.OG
27 Fotos ansehen

Ihr Investment: MFH mit 5 Einheiten in Citylage von Dortmund

395.000 €

Kaufpreis 1.392,86 €/m2

15

Zi.

284 m2

Wohnfläche

Adresse

Mitte, 44145 Dortmund

Auf Karte anzeigen

Gäste-WC
Keller

Typ:

Mehrfamilienhaus

Etagenanzahl:

3

Wohnfläche ca.:

284 m2

Grundstück ca.:

201 m2

Bezugsfrei ab:

ab sofort

Zimmer:

15

Schlafzimmer:

6

Kosten

Kaufpreis:

395.000 €

Preis/m2:

1.392,86 €

Provision:

Die Provision i.H.v. 5,95 % inkl. MwSt. ist mit Kaufvertragsbeurkundung fällig, sofern der Verkaufspreis über 83.000,00 € liegt. Liegt der Verkaufspreis dagegen bei/unter 83.000,00 €, ist die fest vereinbarte Mindestprovision i.H.v. mind. 5.950,00 €...

Bausubstanz & Energieausweis

Baujahr:

1912

Objektzustand:

Gepflegt

Wesentliche Energieträger:

Gas

Energieausweis:

liegt vor

Energieausweistyp:

Verbrauch

Energieklasse:

E

Objektbeschreibung

Austattung

Lage

Sonstiges

Karte

Mitte, 44145 Dortmund

Die vollständige Adresse der Immobilie erhalten Sie vom Anbieter.

Logo McMakler GmbH

McMakler GmbH

Gewerblicher Anbieter:in

Impressum des Anbieters
Anbieter kontaktieren