Seitenansicht mit Carport
Teilsüberdachter Außenbereich der Terrasse
Whirlpool mit Überdachung
Wohnbereich
Küche EG (1)
Küche EG Kopie
Schlafzimmer 1 1.OG Kopie
Schlafzimmer 2 1.OG Kopie
Schlafzimmer 3 1.OG
Tageslichtbadezimmer 1.OG
Badezimmer UG
Frontansicht mit Vorgarten
Garten und Obstanbau
überdachte Terrasse EG
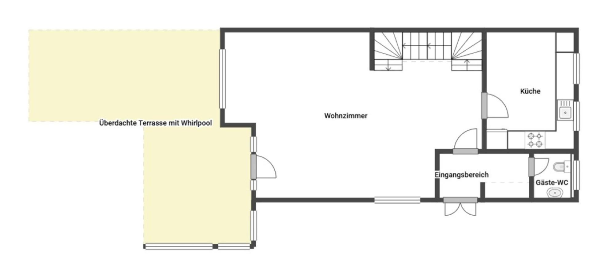
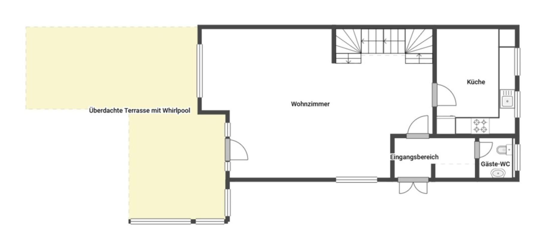
Grundriss Skizze EG
Grundriss Skizze OG
Grundriss Skizze UG
17 Fotos ansehen

Zögern Sie nicht: Gepflegte Doppelhaushälfte mit Garten

230.000 €

Kaufpreis 1.769,23 €/m2

5

Zi.

130 m2

Wohnfläche

Adresse

Nauroth, 65321 Heidenrod

Auf Karte anzeigen

Einbauküche
Garten
Terasse
PKW-Stellplatz
Gäste-WC

Typ:

Doppelhaushaelfte

Etagenanzahl:

3

Wohnfläche ca.:

130 m2

Grundstück ca.:

306 m2

Bezugsfrei ab:

nach Absprache

Zimmer:

5

Schlafzimmer:

3

Badezimmer:

2

Garage/Stellplatz:

0 Carport

Kosten

Kaufpreis:

230.000 €

Preis/m2:

1.769,23 €

Provision:

Die Provision i.H.v. 3,57 % inkl. MwSt. ist mit Kaufvertragsbeurkundung fällig, sofern der Verkaufspreis über 83.000,00 € liegt. Liegt der Verkaufspreis dagegen bei/unter 83.000,00 €, ist die fest vereinbarte Mindestprovision i.H.v. mind. 5.950,00 €...

Bausubstanz & Energieausweis

Baujahr:

1999

Objektzustand:

Gepflegt

Wesentliche Energieträger:

Öl

Energieausweis:

liegt vor

Energieausweistyp:

Bedarf

Endenergiebedarf:

126,90 kWh/(m2*a)

Energieklasse:

D

Objektbeschreibung

Austattung

Lage

Sonstiges

Karte

Nauroth, 65321 Heidenrod

Die vollständige Adresse der Immobilie erhalten Sie vom Anbieter.

Logo McMakler GmbH

McMakler GmbH

Gewerblicher Anbieter:in

Impressum des Anbieters
Anbieter kontaktieren