Vorderhaus von vorne
Friseurladen Vorderhaus
Schlafzimmer Vorferhaus OG
Wohnzimmer Vorderhaus OG
Küche Vorderhaus EG
Eingangsbereich Hinterhaus EG
Wohnzimmer Hinterhaus
Wohnzimmer Hinterhaus
Essbereich Hinterhaus
Badezimmer Hinterhaus
Arbeitszimmer Hinterhaus OG
Schlafzimmer Vorderhaus
Drohnenansicht
Hinterhaus seitl.
Garten
Grundriss Vorderhaus EG
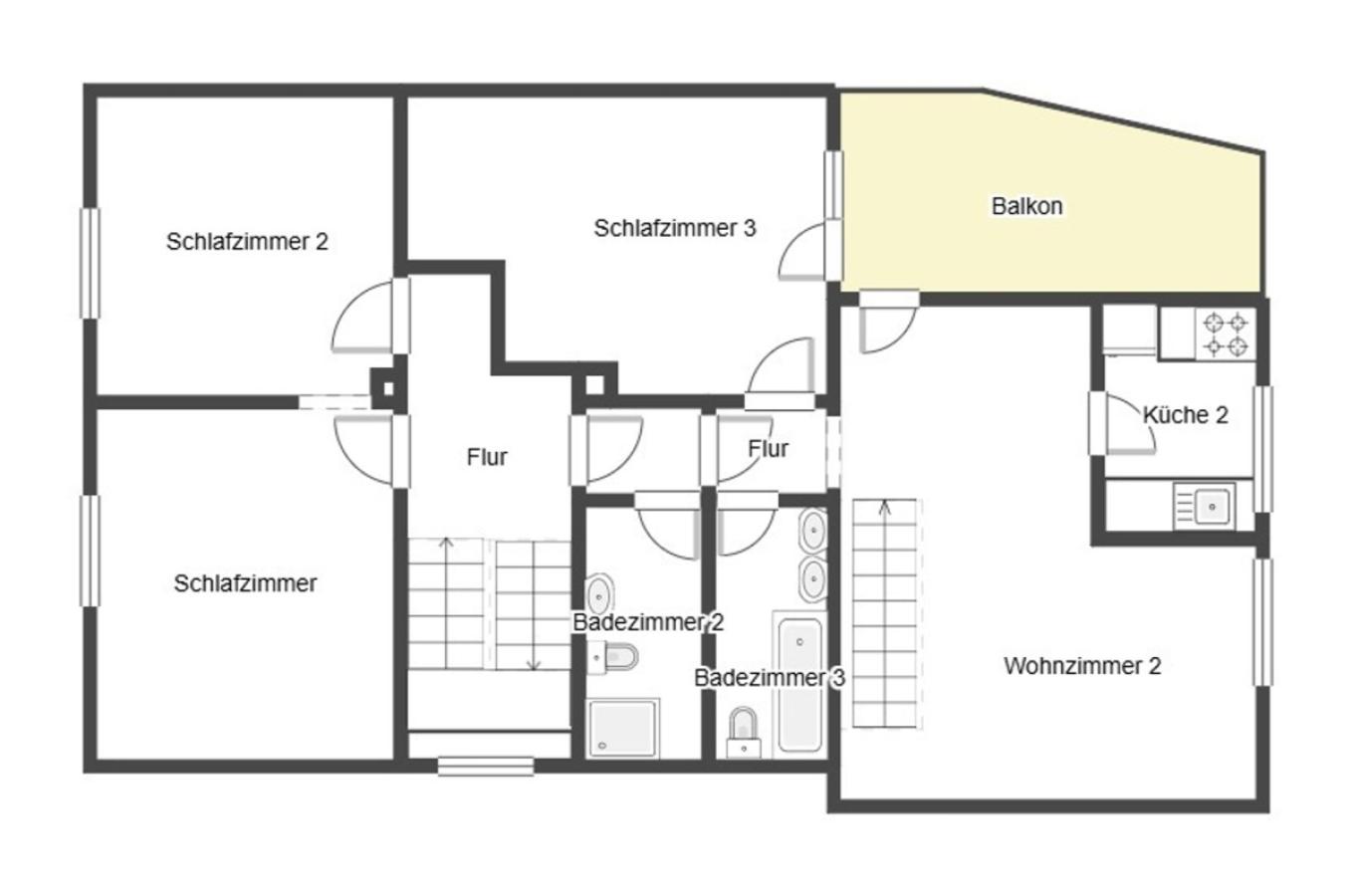
Grundriss Vorderhaus OG
Grundriss Vorderhaus DG
Grundriss Vorderhaus UG
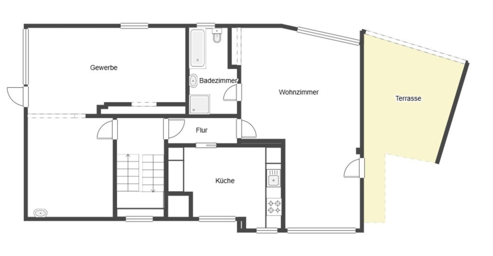
Grundriss Hinterhaus EG
Grundriss Hinterhaus OG
21 Fotos ansehen

Zwei Wohnhäuser, ein großes Grundstück – perfektes Projekt für Visionäre & Anleger

748.000 €

Kaufpreis 2.301,54 €/m2

13

Zi.

325 m2

Wohnfläche

Adresse

Götzenhain, 63303 Dreieich

Auf Karte anzeigen

Einbauküche
Garten
Terasse
Balkon
Gäste-WC

Typ:

Mehrfamilienhaus

Etagenanzahl:

2

Wohnfläche ca.:

325 m2

Grundstück ca.:

1005 m2

Bezugsfrei ab:

ab sofort

Zimmer:

13

Schlafzimmer:

10

Badezimmer:

3

Kosten

Kaufpreis:

748.000 €

Preis/m2:

2.301,54 €

Provision:

Die Provision i.H.v. 7,14 % inkl. MwSt. ist mit Kaufvertragsbeurkundung fällig, sofern der Verkaufspreis über 83.000,00 € liegt. Liegt der Verkaufspreis dagegen bei/unter 83.000,00 €, ist die fest vereinbarte Mindestprovision i.H.v. mind. 5.950,00 €...

Bausubstanz & Energieausweis

Baujahr:

1967

Objektzustand:

Teil-/Vollrenovierungsbedürftig

Austattung:

Standard

Heizungsart:

Zentralheizung

Wesentliche Energieträger:

Öl

Energieausweis:

liegt vor

Energieausweistyp:

Bedarf

Endenergiebedarf:

165,40 kWh/(m2*a)

Energieklasse:

F

Objektbeschreibung

Austattung

Lage

Sonstiges

Karte

Götzenhain, 63303 Dreieich

Die vollständige Adresse der Immobilie erhalten Sie vom Anbieter.

Logo McMakler GmbH

McMakler GmbH

Gewerblicher Anbieter:in

Impressum des Anbieters
Anbieter kontaktieren