Luftaufnahme Grundstück
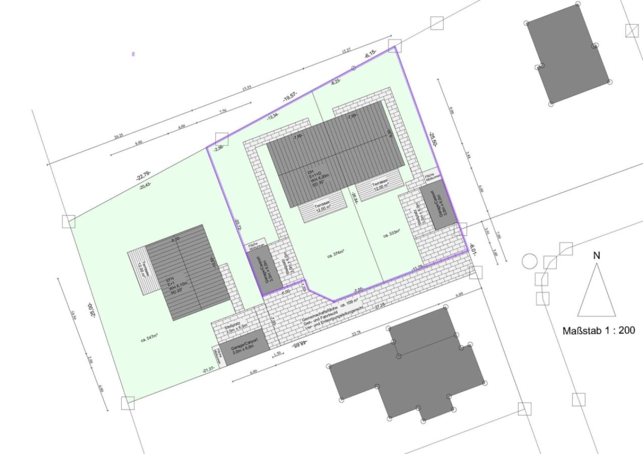
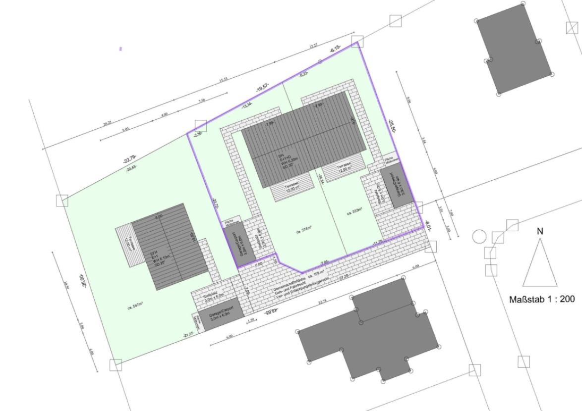
Lageplanentwurf Grundstücksaufteilung Grundstücksteil Ost
Ansicht Bestand
Luftaufnahme Grundstück
Luftaufnahme Grundstück (2)
5 Fotos ansehen

Sonniges Teilgrundstück am Waldrand mit einem EFH, mit genehmigten Bauvorbescheid für DH/EFH!

849.000 €

Kaufpreis

6

Zi.

- m2

Wohnfläche

Adresse

Königswiesen, 82131 Gauting

Auf Karte anzeigen

Einbauküche
Garten
Terasse
Balkon
Gäste-WC

Typ:

Einfamilienhaus

Etagenanzahl:

1

Grundstück ca.:

780 m2

Bezugsfrei ab:

ab sofort

Zimmer:

6

Schlafzimmer:

4

Badezimmer:

2

Kosten

Kaufpreis:

849.000 €

Provision:

Die Provision i.H.v. 3,57 % inkl. MwSt. ist mit Kaufvertragsbeurkundung fällig, sofern der Verkaufspreis über 83.000,00 € liegt. Liegt der Verkaufspreis dagegen bei/unter 83.000,00 €, ist die fest vereinbarte Mindestprovision i.H.v. mind. 5.950,00 €...

Bausubstanz & Energieausweis

Baujahr:

1954

Objektzustand:

Gepflegt

Austattung:

Standard

Heizungsart:

Zentralheizung

Wesentliche Energieträger:

Öl

Energieausweis:

liegt vor

Energieausweistyp:

Bedarf

Endenergiebedarf:

348,70 kWh/(m2*a)

Energieklasse:

H

Objektbeschreibung

Austattung

Lage

Sonstiges

Karte

Königswiesen, 82131 Gauting

Die vollständige Adresse der Immobilie erhalten Sie vom Anbieter.

Logo McMakler GmbH

McMakler GmbH

Gewerblicher Anbieter:in

Impressum des Anbieters
Anbieter kontaktieren