Außenansicht
Rittersaal
Schreibstube
Bibliothek
Küche
Küche
Schlafzimmer EG
Küche OG
Schlafzimmer I OG
Schlafzimmer II OG
Dachgeschoss
Hofansicht
Dachgeschoss
Badezimmer EG
Badezimmer EG
Badezimmer OG
Eingangsbereich Haupteingang
Flur OG
Flur OG
Keller
Alter Pferdestall Halle
Alter Pferdestall Dachboden
Alter Pferdestall
Außenansicht
Gutshaus + ehem. Stallgebäude
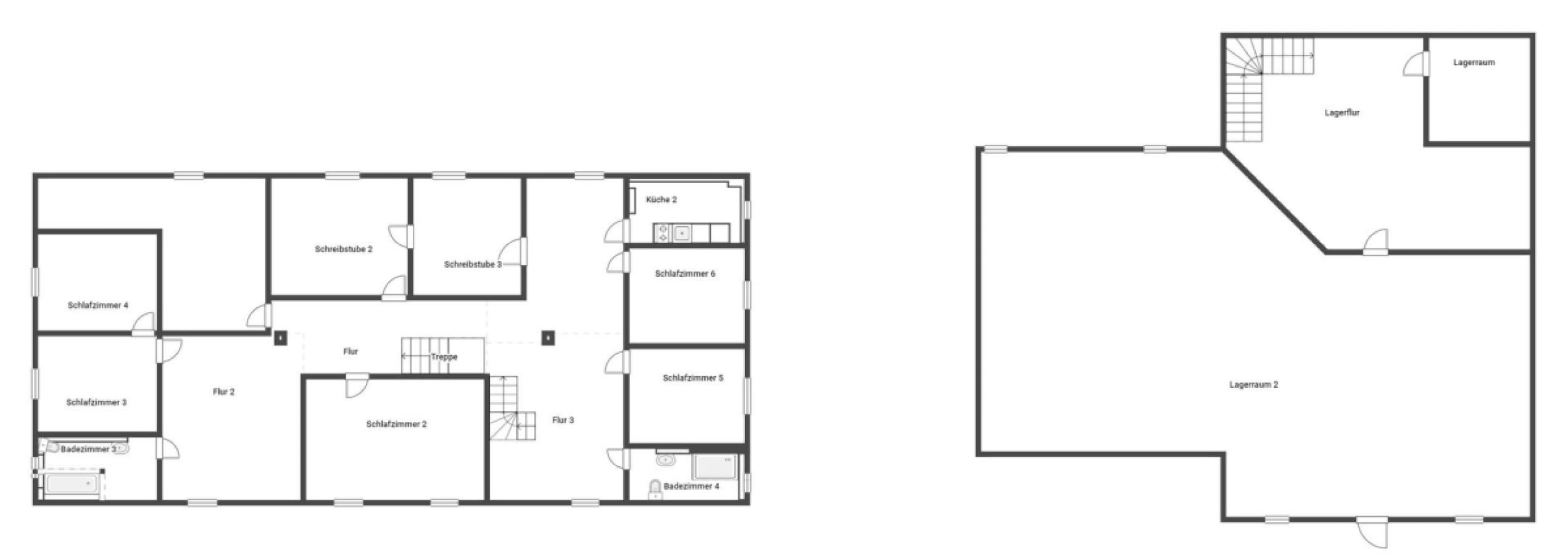
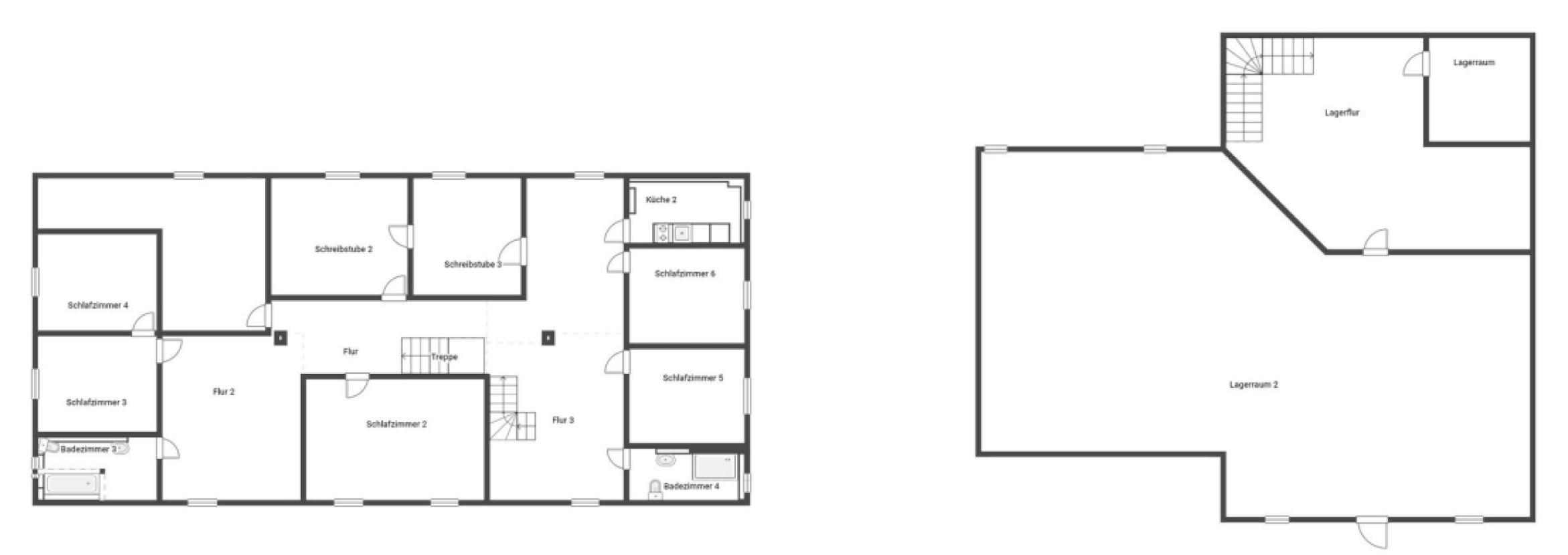
Grundriss Skizze EG
Grundriss Skizze 1.OG
Grundriss Skizze 2.OG
Grundriss Skizze UG
29 Fotos ansehen

Luxus pur: Kernsaniertes Rittmeister-Anwesen mit Stall und Waldgrundstück in Ruhelage

799.000 €

Kaufpreis 992,55 €/m2

12

Zi.

805 m2

Wohnfläche

Adresse

Dargelütz, 19370 Parchim

Auf Karte anzeigen

Einbauküche
Gäste-WC
Keller

Typ:

Other

Etagenanzahl:

3

Wohnfläche ca.:

805 m2

Grundstück ca.:

7170 m2

Bezugsfrei ab:

ab sofort

Zimmer:

12

Schlafzimmer:

5

Badezimmer:

4

Kosten

Kaufpreis:

799.000 €

Preis/m2:

992,55 €

Provision:

Die Provision i.H.v. 3,57 % inkl. MwSt. ist mit Kaufvertragsbeurkundung fällig, sofern der Verkaufspreis über 83.000,00 € liegt. Liegt der Verkaufspreis dagegen bei/unter 83.000,00 €, ist die fest vereinbarte Mindestprovision i.H.v. mind. 5.950,00 €...

Objektbeschreibung

Austattung

Lage

Sonstiges

Karte

Dargelütz, 19370 Parchim

Die vollständige Adresse der Immobilie erhalten Sie vom Anbieter.

Logo McMakler GmbH

McMakler GmbH

Gewerblicher Anbieter:in

Impressum des Anbieters
Anbieter kontaktieren