Flur
Flur
Blick Zimmer in den Flur
Flur
Zimmer
Zimmer
Flur
Zimmer
Zimmer
Zimmer
Zimmer
Zimmer
Zimmer
Zimmer
Zimmer
Zimmer
Zimmer
Zimmer
Zimmer
Küche
Bad
Bad
Bad
Küche
Dielenboden
Dielenboden
Treppenhaus
Hauseingang
Garten
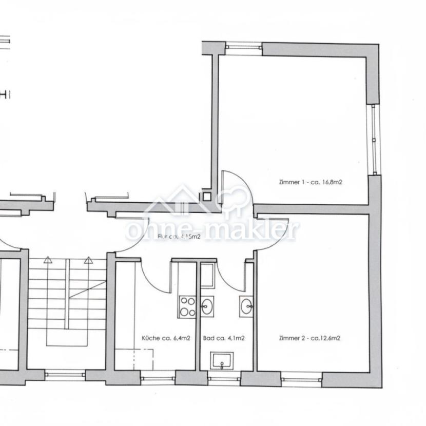
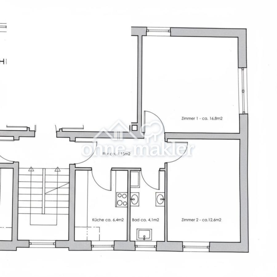
ca. m2 Grundriss
30 Fotos ansehen
Grundriss

Moderne 2-Zimmer-Wohnung mit guter Anbindung in Hannover - Faktor 13,5 Kapitalanlage / Selbstnutzung

168.000 €

Kaufpreis 3.652,17 €/m2

2

Zi.

46 m2

Wohnfläche

Adresse

Döhren, 30519 Hannover

Auf Karte anzeigen

Einbauküche
Garten
Keller

Typ:

Etage

Etagenanzahl:

3

Etage:

1

Wohnfläche ca.:

46 m2

Bezugsfrei ab:

nach Absprache

Zimmer:

2

Schlafzimmer:

2

Badezimmer:

1

Kosten

Kaufpreis:

168.000 €

Preis/m2:

3.652,17 €

Provision:

keine Provision, courtagefrei

Bausubstanz & Energieausweis

Baujahr:

1950

Objektzustand:

Gepflegt

Heizungsart:

Zentralheizung

Wesentliche Energieträger:

Gas

Energieausweis:

liegt vor

Energieausweistyp:

Bedarf

Endenergiebedarf:

100,00 kWh/(m2*a)

Objektbeschreibung

Austattung

Grundriss

ca. m2 Grundriss

Lage

Sonstiges

Karte

Döhren, 30519 Hannover

Die vollständige Adresse der Immobilie erhalten Sie vom Anbieter.

Logo Ohne Makler

Ohne Makler

Gewerblicher Anbieter:in

Impressum des Anbieters:
Anbieter kontaktieren