Terrasse, separater Eingang
Villa Sonnenblick - Eingang
Villa Sonneblick - Westseite
Villa Sonnenblick - Nordseite
Wohnzimmer
Wohnzimmer
Wohnzimmer/Küche
Küche/Esszimmer
Schlafzimmer
USB am Bett im Schlafzimmer
Bad mit ebenerdiger Dusche
Heizungsanlage Wärmepumpe
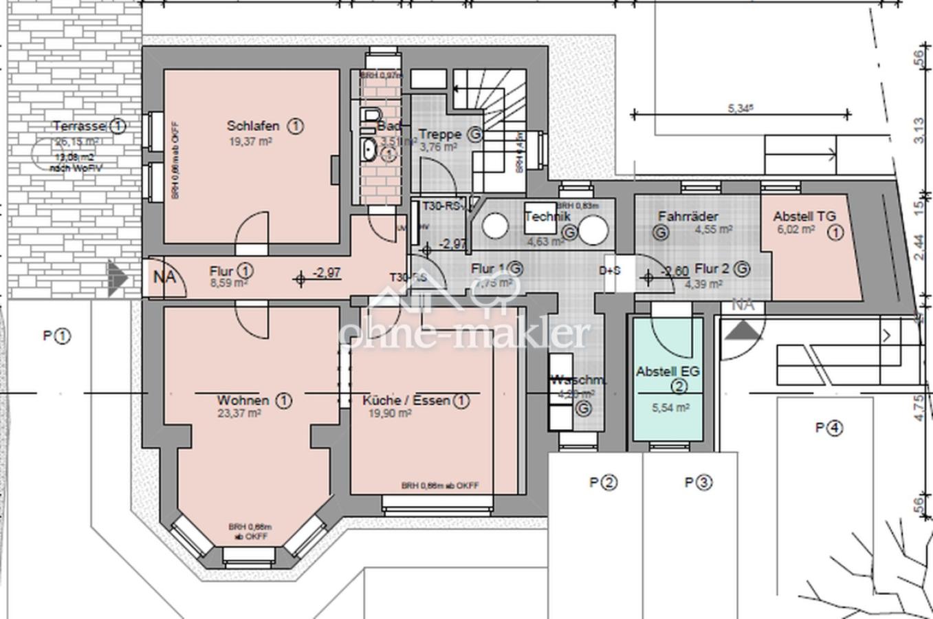
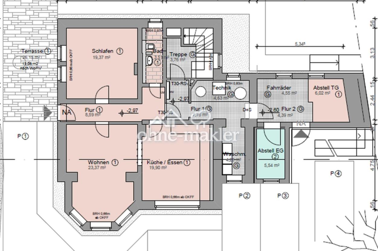
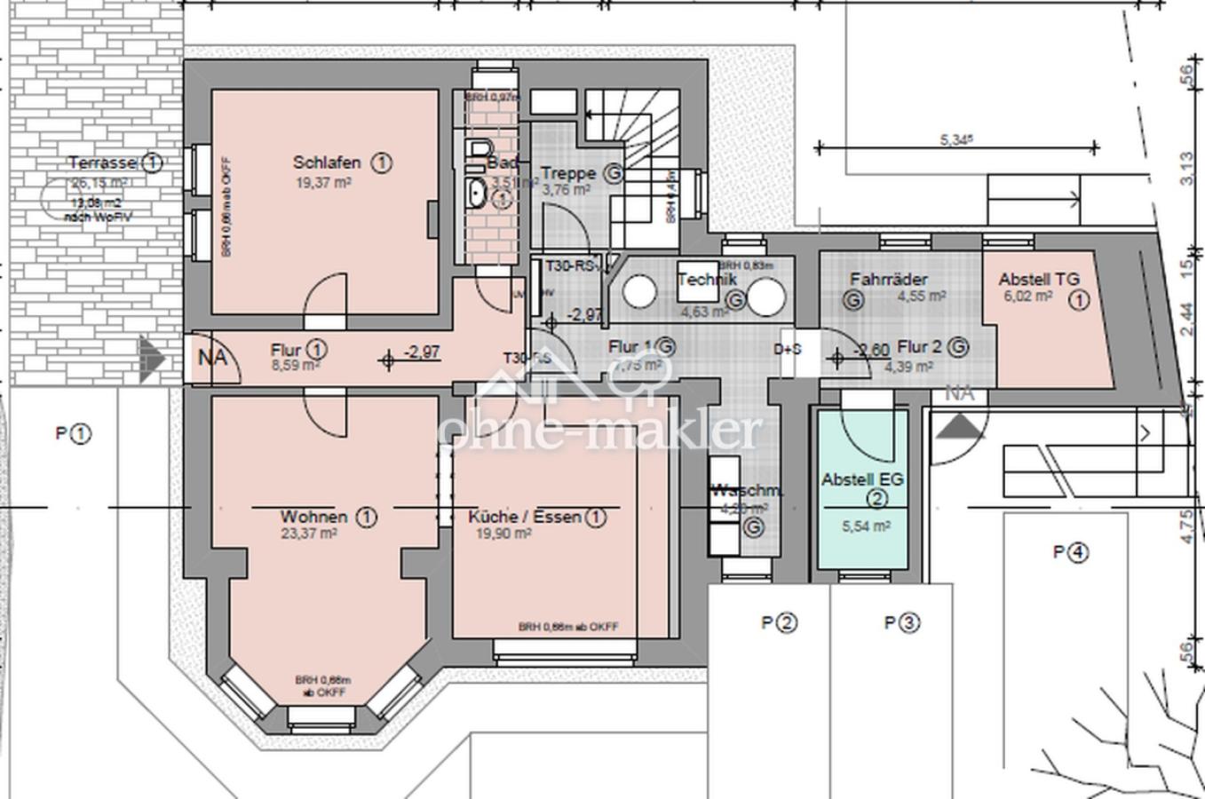
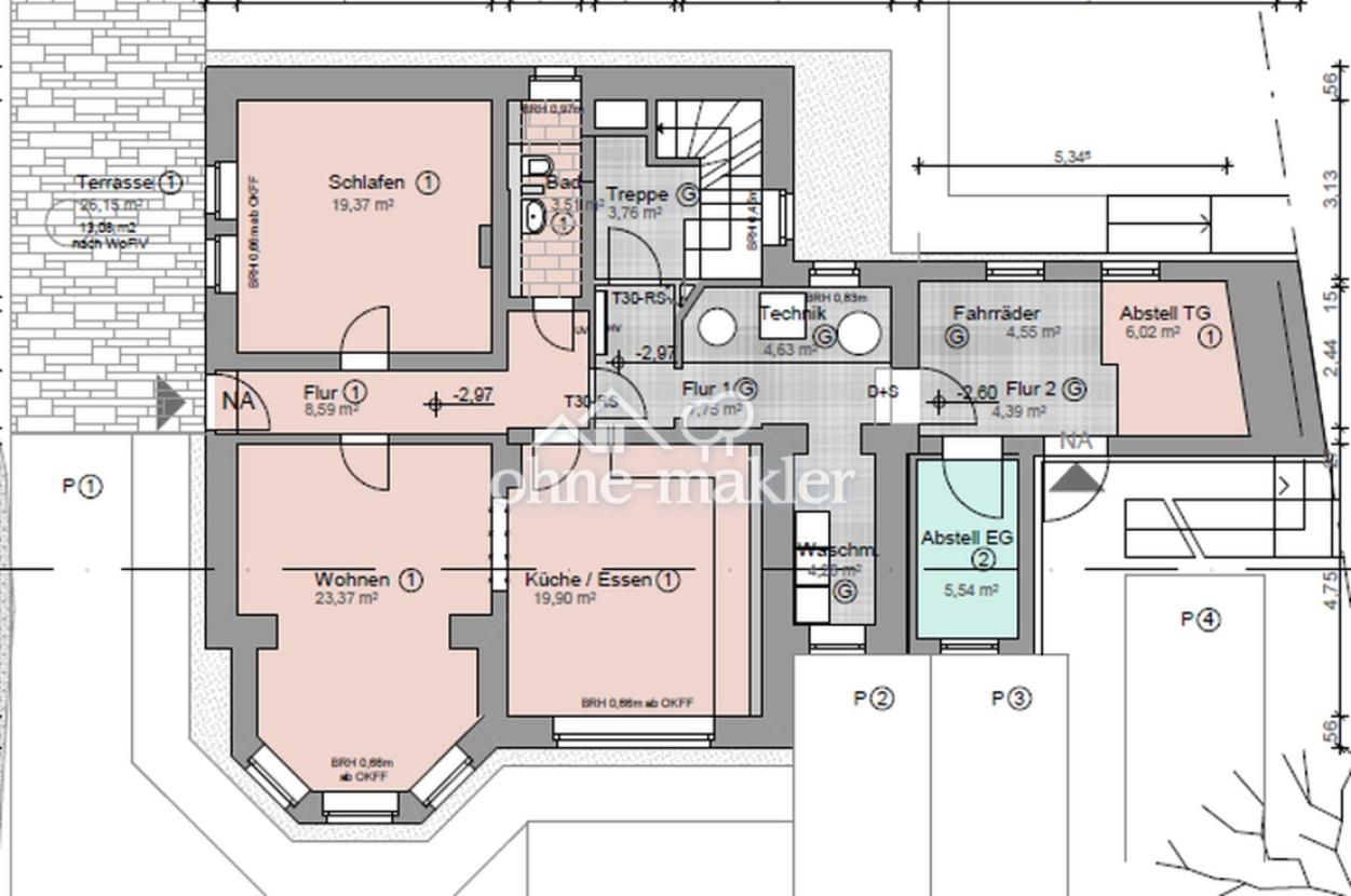
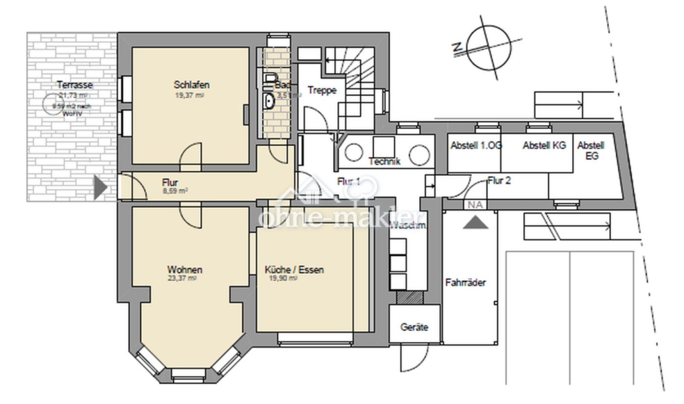
Grundriss Terrassengeschoss
13 Fotos ansehen
Grundriss

Wie Neubau! Terrassenwohnung in kernsanierter Villa in Detmold

299.000 €

Kaufpreis 3.546,86 €/m2

3

Zi.

84 m2

Wohnfläche

Adresse

Berlebeck, 32760 Detmold

Auf Karte anzeigen

Einbauküche
Garten
Terasse
PKW-Stellplatz
Barrierefrei

Typ:

Terrassen

Etagenanzahl:

3

Wohnfläche ca.:

84 m2

Bezugsfrei ab:

nach Absprache

Zimmer:

3

Schlafzimmer:

1

Badezimmer:

1

Garage/Stellplatz:

1 Außenstellplatz

Kosten

Kaufpreis:

299.000 €

Preis/m2:

3.546,86 €

Provision:

keine Provision, courtagefrei

Kaufpreis für Außenstellplatz:

15.000 €

Bausubstanz & Energieausweis

Baujahr:

1907

Objektzustand:

Teil-/Vollsaniert

Heizungsart:

Fußbodenheizung

Wesentliche Energieträger:

Luftwärmepumpe

Energieausweis:

liegt vor

Energieausweistyp:

Bedarf

Endenergiebedarf:

58,00 kWh/(m2*a)

Energieklasse:

B

Objektbeschreibung

Austattung

Grundriss

Grundriss Terrassengeschoss

Lage

Sonstiges

Karte

Berlebeck, 32760 Detmold

Die vollständige Adresse der Immobilie erhalten Sie vom Anbieter.

Logo Ohne Makler

Ohne Makler

Gewerblicher Anbieter:in

Impressum des Anbieters:
Anbieter kontaktieren