.
.
.
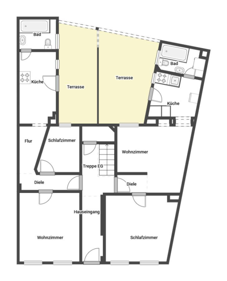
.Treppe Obergeschoss
Obergeschoss Treppenhaus
Wohnzimmer EG links
Schlafzimmer EG links
Diele EG links
Flur EG links
Bad EG links
Küche EG links
Terrasse EG links
Schlafzimmer EG rechts
Küche EG rechts
Terrasse EG rechts
Küche - OG links
Wohnen/Schlafen - OG links
Bad - OG links
Dusche - OG links
Diele - OG links
OG rechts, Schlafzimmer
OG rechts, Bad
DG - Wohnzimmer
DG - Wohnzimmer
DG - Dachterasse
DG - offene Küche
Lageplan
Erdgeschoss
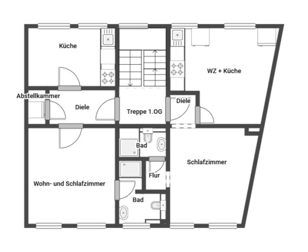
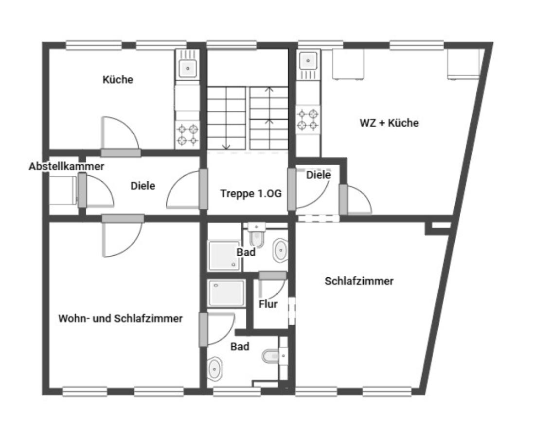
Obergeschoss
20251212_100206(0)
30 Fotos ansehen
Grundriss

Kapitalanlage mit Potenzial: Mehrfamilienhaus mit 5 Wohnungen in Mönchengladbach City nahe Abteiberg

339.000 €

Kaufpreis 1.540,91 €/m2

10

Zi.

220 m2

Wohnfläche

Adresse

Stadtmitte, 41061 Mönchengladbach

Auf Karte anzeigen

Keller

Typ:

Mehrfamilienhaus

Etagenanzahl:

3

Wohnfläche ca.:

220 m2

Grundstück ca.:

150 m2

Bezugsfrei ab:

sofort Kapitalanlage

Zimmer:

10

Schlafzimmer:

5

Badezimmer:

5

Kosten

Kaufpreis:

339.000 €

Preis/m2:

1.540,91 €

Provision:

3,57 % (inkl. 19 % MwSt.) Käuferprovision

Bausubstanz & Energieausweis

Baujahr:

1907

Austattung:

Standard

Heizungsart:

Etagenheizung

Wesentliche Energieträger:

Gas, Strom

Energieausweis:

liegt vor

Energieausweistyp:

Bedarf

Endenergiebedarf:

207,80 kWh/(m2*a)

Energieklasse:

G

Objektbeschreibung

Austattung

Grundrisse

Erdgeschoss
Obergeschoss

Lage

Sonstiges

Karte

Stadtmitte, 41061 Mönchengladbach

Die vollständige Adresse der Immobilie erhalten Sie vom Anbieter.

Logo SCHWARZ Immobilien Ingo Schwarz

SCHWARZ Immobilien Ingo Schwarz

Gewerblicher Anbieter:in

Impressum des Anbieters
Anbieter kontaktieren