KI generiertes Bild
Außenansicht
Außenansicht
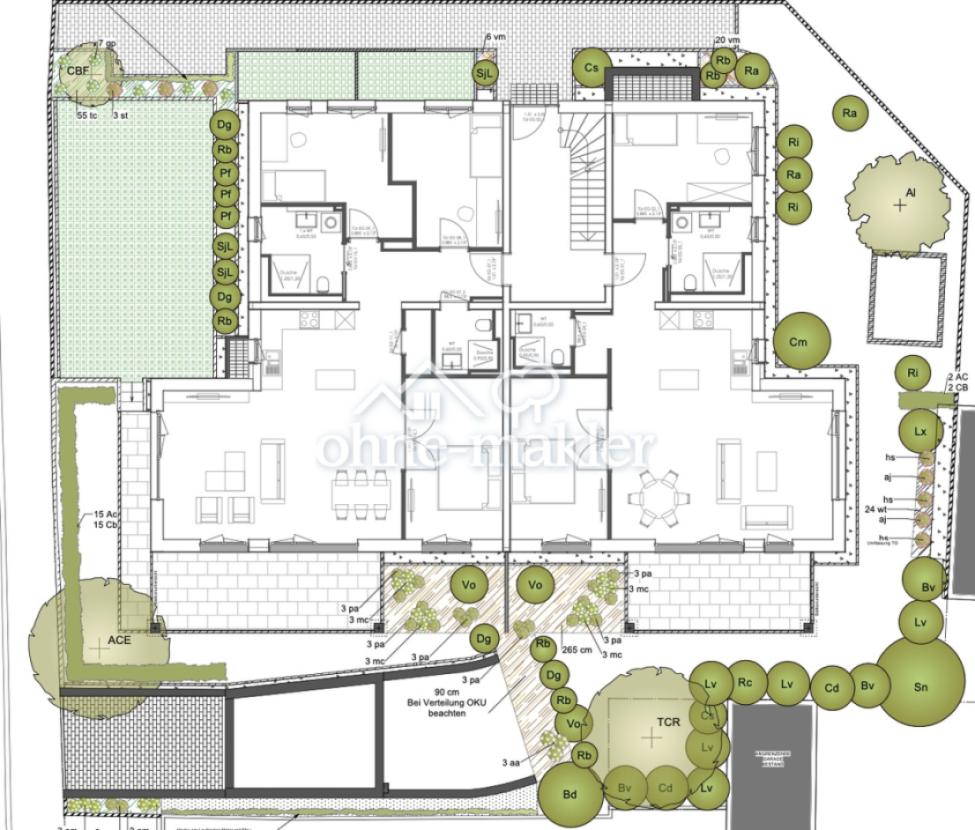
Gartenplan
Gartenseite
Garten
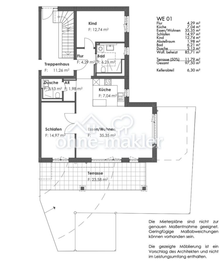
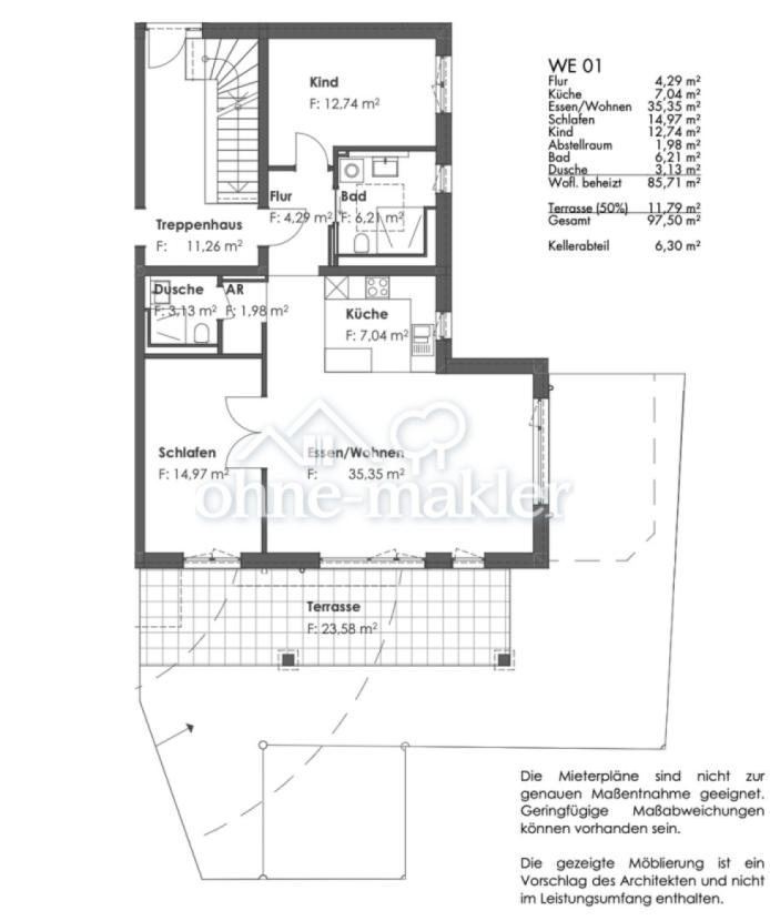
Grundriss
7 Fotos ansehen
Grundriss

Exklusive 3-Zimmer-Wohnung mit Garten

2.095 €

Kaltmiete 21,49 €/m2

3

Zi.

98 m2

Wohnfläche

Adresse

82110 Germering

Auf Karte anzeigen

Garten
Terasse
PKW-Stellplatz
Barrierefrei
Keller

Typ:

Terrassen

Etagenanzahl:

2

Wohnfläche ca.:

98 m2

Bezugsfrei ab:

01.03.2025

Zimmer:

3

Schlafzimmer:

2

Badezimmer:

2

Garage/Stellplatz:

1 Außenstellplatz, 1 Tiefgaragenstellplatz

Kosten

Kaltmiete:

2.095 €

Preis/m2:

21,49 €

Nebenkosten:

290 €

Heizkosten:

in Nebenkosten enthalten

Mietpreis für Außenstellplatz:

135 €

Mietpreis für Tiefgaragenstellplatz:

135 €

Bausubstanz & Energieausweis

Baujahr:

2025

Objektzustand:

Neuwertig

Heizungsart:

Fußbodenheizung

Wesentliche Energieträger:

Erdwärme

Energieausweis:

liegt vor

Energieausweistyp:

Bedarf

Endenergiebedarf:

6,00 kWh/(m2*a)

Energieklasse:

A+

Objektbeschreibung

Austattung

Grundriss

Grundriss

Lage

Sonstiges

Karte

82110 Germering

Die vollständige Adresse der Immobilie erhalten Sie vom Anbieter.

Logo Ohne Makler

Ohne Makler

Gewerblicher Anbieter:in

Impressum des Anbieters:
Anbieter kontaktieren