1
2
3
4
31
30
32
33
38
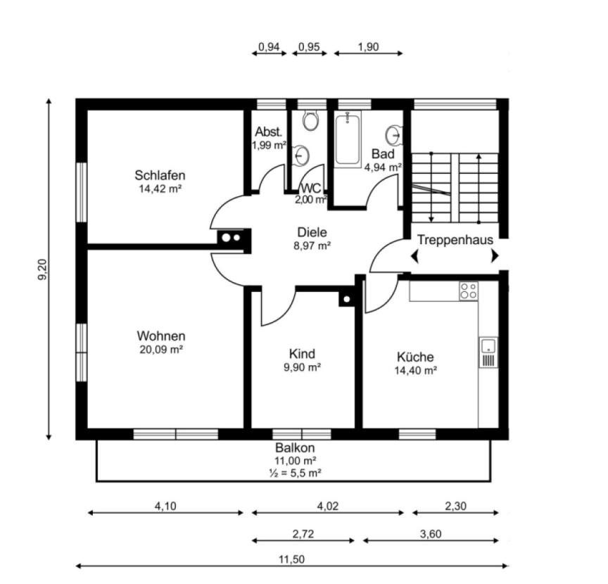
Grundriss
5
6
Bild
1
 IMMORath
15 Fotos ansehen
Grundriss

IMMORath.de - Lichtdurchflutete Wohnung mit Balkon im Kaiserstuhl

229.000 €

Kaufpreis 2.865,72 €/m2

3

Zi.

80 m2

Wohnfläche

Adresse

Oberbergen, 79235 Vogtsburg im Kaiserstuhl

Auf Karte anzeigen

Balkon
PKW-Stellplatz

Typ:

Etage

Wohnfläche ca.:

80 m2

Zimmer:

3

Badezimmer:

1

Garage/Stellplatz:

1 Außenstellplatz

Kosten

Kaufpreis:

229.000 €

Preis/m2:

2.865,72 €

Provision:

3,57%

Bausubstanz & Energieausweis

Baujahr:

1964

Objektzustand:

Teil-/Vollsaniert

Heizungsart:

Zentralheizung

Wesentliche Energieträger:

Öl

Energieausweis:

liegt vor

Energieausweistyp:

Verbrauch

Energieklasse:

C

Objektbeschreibung

Grundriss

Grundriss

Lage

Sonstiges

Karte

Oberbergen, 79235 Vogtsburg im Kaiserstuhl

Die vollständige Adresse der Immobilie erhalten Sie vom Anbieter.

Logo IMMORath – Immobilienmakler Freiburg & Umgebung

IMMORath – Immobilienmakler Freiburg & Umgebung

Gewerblicher Anbieter:in

Impressum des Anbieters
Anbieter kontaktieren