Bild
1
4 Kopie 2
4
5
6
7
8
9
10
11
11
12
2
25
27
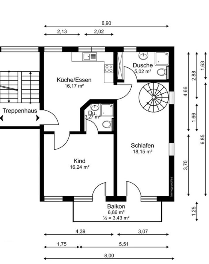
Erdgeschoss
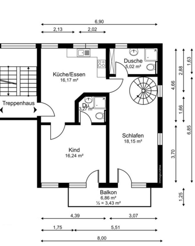
Obergeschoss
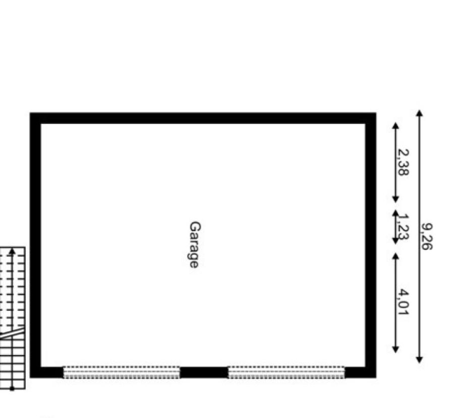
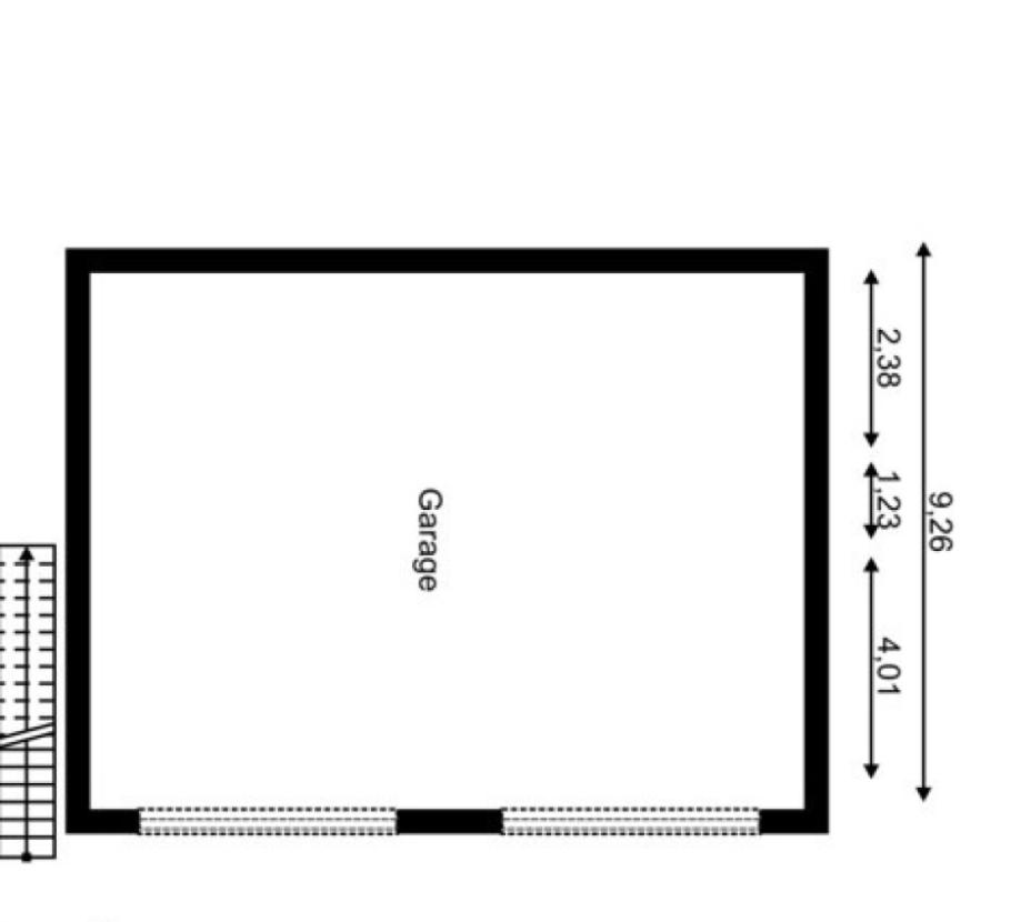
Garage
Bild
1
 IMMORath
22 Fotos ansehen
Grundriss

IMMORath.de - Doppelhaushälfte mit Garten, Terrasse & Balkon

419.000 €

Kaufpreis 4.129,30 €/m2

4

Zi.

101 m2

Wohnfläche

Adresse

Oberbergen, 79235 Vogtsburg im Kaiserstuhl

Auf Karte anzeigen

Terasse
Balkon
Garage
PKW-Stellplatz
Keller

Typ:

Doppelhaushaelfte

Wohnfläche ca.:

101 m2

Grundstück ca.:

350 m2

Bezugsfrei ab:

Frei nach Absprache

Zimmer:

4

Badezimmer:

2

Garage/Stellplatz:

2 Außenstellplätze, 2 Garagen

Kosten

Kaufpreis:

419.000 €

Preis/m2:

4.129,30 €

Provision:

3,57%

Bausubstanz & Energieausweis

Baujahr:

2001

Objektzustand:

Gepflegt

Heizungsart:

Zentralheizung

Wesentliche Energieträger:

Öl

Energieausweis:

liegt vor

Energieausweistyp:

Verbrauch

Energieklasse:

C

Objektbeschreibung

Grundrisse

Erdgeschoss
Obergeschoss
Garage

Lage

Sonstiges

Karte

Oberbergen, 79235 Vogtsburg im Kaiserstuhl

Die vollständige Adresse der Immobilie erhalten Sie vom Anbieter.

Logo IMMORath – Immobilienmakler Freiburg & Umgebung

IMMORath – Immobilienmakler Freiburg & Umgebung

Gewerblicher Anbieter:in

Impressum des Anbieters
Anbieter kontaktieren