Objektansicht
Straßenansicht
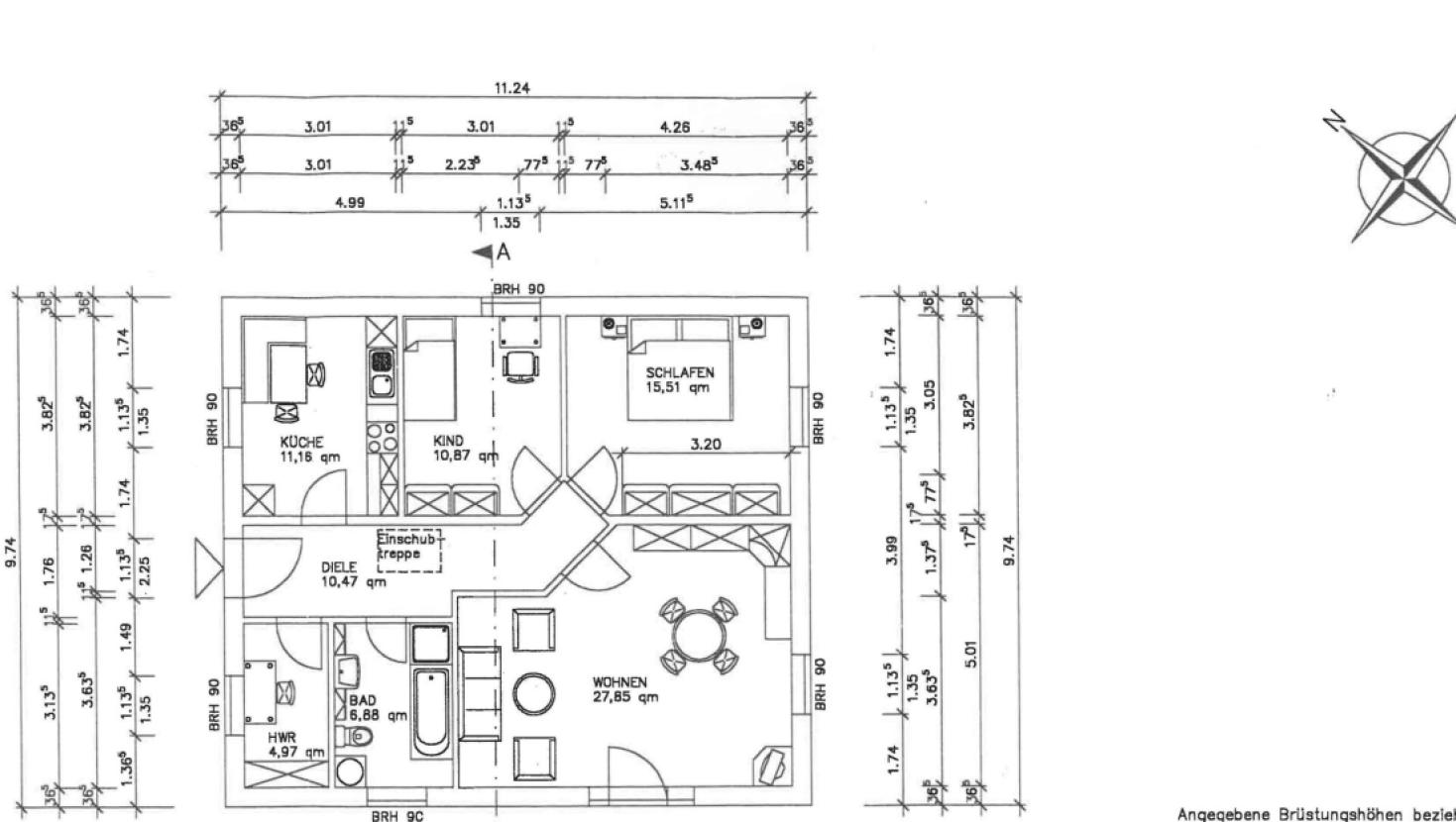
Grundriss
Lageplan
Wohnzimmer
Schlafzimmer
Kinderzimmer
helle Küche mit Einbauküche
Tageslichtbad mit Dusche und Badewanne
Hauswirtschaftsraum
https://www.immovista.de
11 Fotos ansehen
Grundriss

www.immovista.de BEZUGSFREIES EINFAMILIENHAUS IM SPECKGÜRTEL VON DRESDEN

350.000 €

Kaufpreis 3.977,27 €/m2

3

Zi.

88 m2

Wohnfläche

Adresse

Gompitz, 01156 Dresden

Auf Karte anzeigen

Einbauküche
Terasse
Garage
PKW-Stellplatz
Keller

Typ:

Einfamilienhaus

Etagenanzahl:

1

Wohnfläche ca.:

88 m2

Grundstück ca.:

441 m2

Zimmer:

3

Garage/Stellplatz:

1 Außenstellplatz, 1 Garage

Kosten

Kaufpreis:

350.000 €

Preis/m2:

3.977,27 €

Provision:

3,57 %

Bausubstanz & Energieausweis

Baujahr:

2003

Objektzustand:

Gepflegt

Heizungsart:

Zentralheizung

Wesentliche Energieträger:

Gas

Energieausweis:

liegt vor

Energieausweistyp:

Verbrauch

Energieklasse:

E

Objektbeschreibung

Austattung

Grundriss

Grundriss

Lage

Sonstiges

Karte

Gompitz, 01156 Dresden

Die vollständige Adresse der Immobilie erhalten Sie vom Anbieter.

Logo IMMOVISTA GmbH - Immobilienmakler Dresden

IMMOVISTA GmbH - Immobilienmakler Dresden

Gewerblicher Anbieter:in

Impressum des Anbieters
Anbieter kontaktieren