Frontansicht Ostseite / Straße
Frontansicht KI Beispiel 1
Frontansicht KI Beispiel 2
Frontansicht Ostseite / Straße
Frontansicht Ostseite / Straße
Bild
Bild
Gartenseite Blick von West
Gartenseite KI Beispiel I
Gartenseite KI Beispiel II
Garten
Garten KI Beispiel
Garten mit Wald
Bild
Bild
Bild
Garten-/Saunahaus
Garten-/Saunahaus
Haupteingang Gemeinschaft
EG Blick zum OG
EG Blick zum OG II
EG Wohnzimmer / Küche
EG Wohnzimmer / Küche II
Bild
Spitzboden I
Spitzboden II
Spitzboden III
Spitzboden IV
Ölheizung
Öltank
Erdgeschoss
Obergeschoss
Spitzboden / Dachgeschoss
Keller
Heizungskeller
Querschnitt I
Querschnitt II
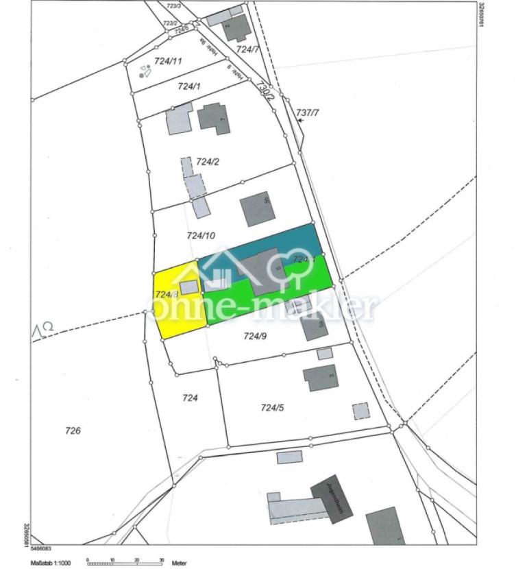
Lageplan
38 Fotos ansehen
Grundriss

Grundstück mit renovierungsbedürftiger Doppelhaushälfte inkl. großem Garten und Waldgrundstück

318.000 €

Kaufpreis 2.321,17 €/m2

5

Zi.

137 m2

Wohnfläche

Adresse

91126 Schwabach

Auf Karte anzeigen

Garten
Keller

Typ:

Doppelhaushaelfte

Etagenanzahl:

3

Wohnfläche ca.:

137 m2

Grundstück ca.:

693 m2

Bezugsfrei ab:

sofort

Zimmer:

5

Kosten

Kaufpreis:

318.000 €

Preis/m2:

2.321,17 €

Provision:

keine Provision, courtagefrei

Bausubstanz & Energieausweis

Baujahr:

1953

Objektzustand:

Entkernt

Heizungsart:

Zentralheizung

Wesentliche Energieträger:

Öl

Energieausweis:

liegt vor

Energieausweistyp:

Bedarf

Endenergiebedarf:

282,00 kWh/(m2*a)

Energieklasse:

H

Objektbeschreibung

Austattung

Grundrisse

Erdgeschoss
Obergeschoss
Spitzboden / Dachgeschoss
Keller
Heizungskeller
Querschnitt I
Querschnitt II
Lageplan

Lage

Sonstiges

Karte

91126 Schwabach

Die vollständige Adresse der Immobilie erhalten Sie vom Anbieter.

Logo Ohne Makler

Ohne Makler

Gewerblicher Anbieter:in

Impressum des Anbieters:
Anbieter kontaktieren