Frontansicht
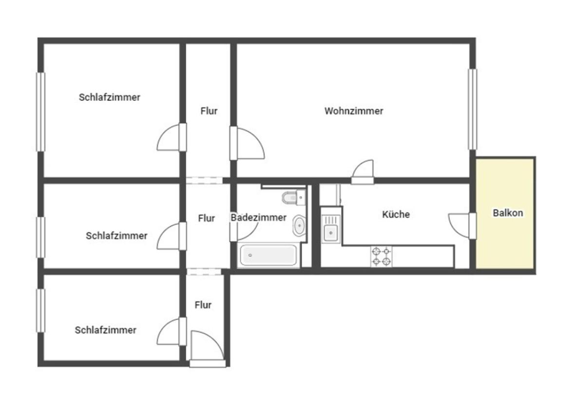
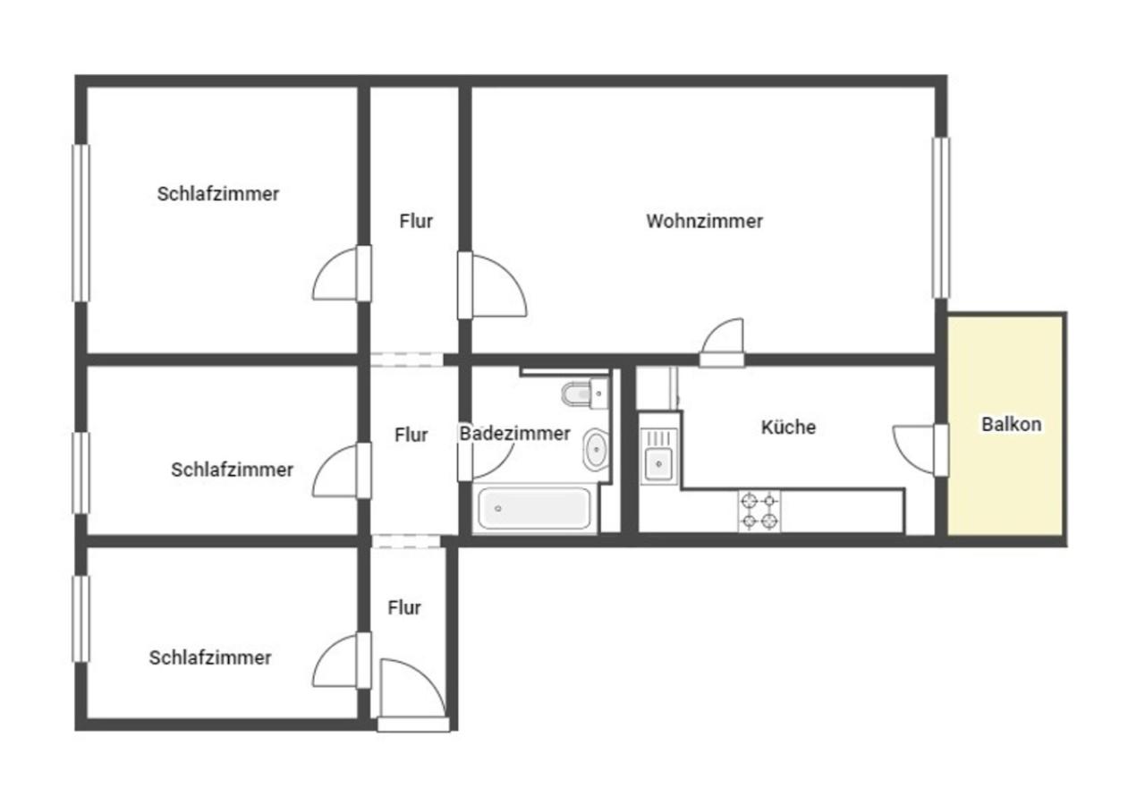
Wohnzimmer 2.
Küche
Küche 1
Schlafzimmer 1
Schlafzimmer 2
Schlafzimmer 3
Flur mit Nische
Badezimmer 1
Badezimmer
Balkon
Hauseingang
Stellplatz
Rückansicht
Grundriss Skizze
15 Fotos ansehen

ETW im Ostseeviertel Greifswald – Hochparterre, ideal für Familie, Studium & Ruhestand

179.000 €

Kaufpreis 2.632,35 €/m2

4

Zi.

68 m2

Wohnfläche

Adresse

Groß Schönwalde, 17491 Greifswald

Auf Karte anzeigen

Einbauküche
Garten
Balkon
PKW-Stellplatz
Keller

Typ:

Maisonette

Etagenanzahl:

4

Etage:

1

Wohnfläche ca.:

68 m2

Bezugsfrei ab:

01.03.2026

Zimmer:

4

Schlafzimmer:

3

Badezimmer:

1

Garage/Stellplatz:

0 Außenstellplatz

Kosten

Kaufpreis:

179.000 €

Preis/m2:

2.632,35 €

Provision:

Die Provision i.H.v. 3,57 % inkl. MwSt. ist mit Kaufvertragsbeurkundung fällig, sofern der Verkaufspreis über 83.000,00 € liegt. Liegt der Verkaufspreis dagegen bei/unter 83.000,00 €, ist die fest vereinbarte Mindestprovision i.H.v. mind. 5.950,00 €...

Bausubstanz & Energieausweis

Baujahr:

1994

Objektzustand:

Gepflegt

Austattung:

Standard

Heizungsart:

Fernwärme

Wesentliche Energieträger:

Fernwärme

Energieausweis:

liegt vor

Energieausweistyp:

Verbrauch

Energieklasse:

C

Objektbeschreibung

Austattung

Lage

Sonstiges

Karte

Groß Schönwalde, 17491 Greifswald

Die vollständige Adresse der Immobilie erhalten Sie vom Anbieter.

Logo McMakler GmbH

McMakler GmbH

Gewerblicher Anbieter:in

Impressum des Anbieters
Anbieter kontaktieren