Hausansicht
Hausansicht Südseite
Loggia
offener Grundriss
Fliesen Badezimmer
3D 1
3D 2
3D 3
3D 4
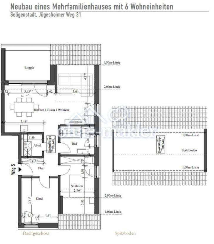
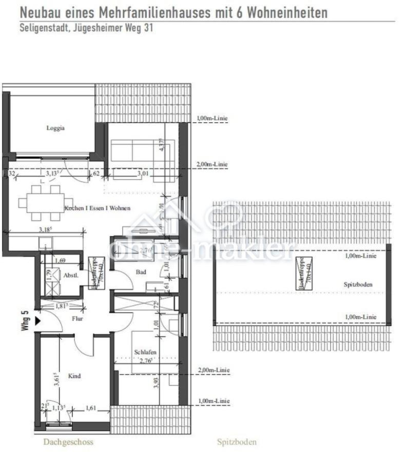
Grundriss DG rechts
10 Fotos ansehen
Grundriss

Erstbezug: stilvolle DG Wohnung mit großzügiger Loggia

1.200 €

Kaltmiete 16,67 €/m2

3

Zi.

72 m2

Wohnfläche

Adresse

63500 Seligenstadt

Auf Karte anzeigen

Aufzug
Balkon
PKW-Stellplatz
Barrierefrei
Keller

Typ:

Etage

Etagenanzahl:

2

Etage:

2

Wohnfläche ca.:

72 m2

Bezugsfrei ab:

nach Absprache

Zimmer:

3

Schlafzimmer:

2

Badezimmer:

1

Garage/Stellplatz:

2 Außenstellplätze

Kosten

Kaltmiete:

1.200 €

Preis/m2:

16,67 €

Nebenkosten:

240 €

Heizkosten:

in Nebenkosten enthalten

Kaution:

3.600,00 €

Mietpreis für Außenstellplätze:

40 €

Bausubstanz & Energieausweis

Baujahr:

2026

Objektzustand:

Erstbezug

Heizungsart:

Fußbodenheizung

Wesentliche Energieträger:

Strom

Energieausweis:

liegt nicht vor

Objektbeschreibung

Austattung

Grundriss

Grundriss DG rechts

Lage

Sonstiges

Karte

63500 Seligenstadt

Die vollständige Adresse der Immobilie erhalten Sie vom Anbieter.

Logo Ohne Makler

Ohne Makler

Gewerblicher Anbieter:in

Impressum des Anbieters:
Anbieter kontaktieren