DI_provisionsfrei
Kachelofen - Whg 1
Wohnzimmer - Whg 1
Esszimmer - Whg 1
Bad - Whg 1
Gästezimmer - Whg 1
Schlafzimmer - Whg 1
Kinderzimmer - Whg 1
Küche - Whg 2
Bad - Whg 2
Wohnzimmer - Whg 2
Schlafzimmer - Whg 2
Küche Whg 3
Bad - Whg 3
Blich in den Garten
Rückseite
Überdachte Terrasse
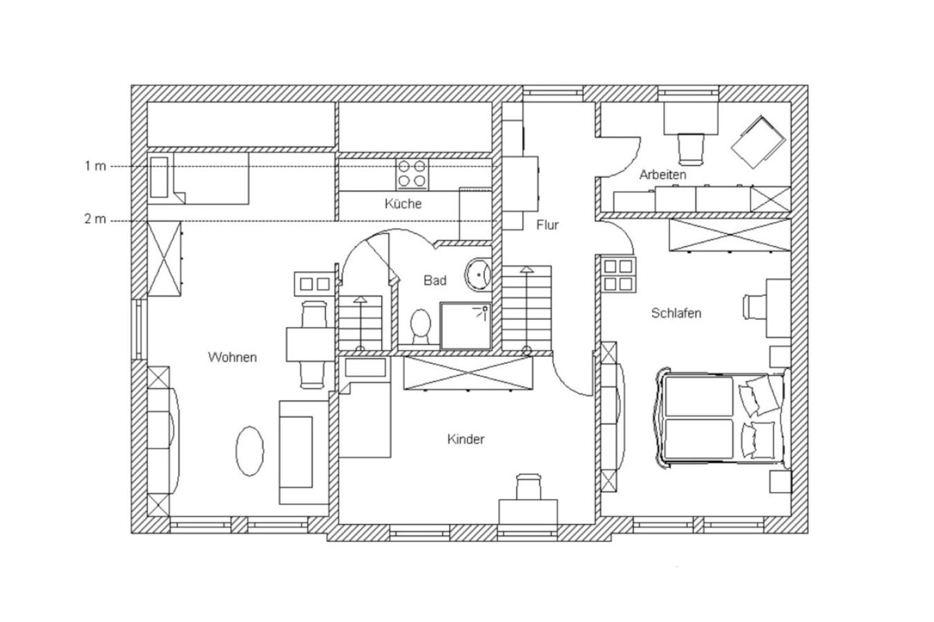
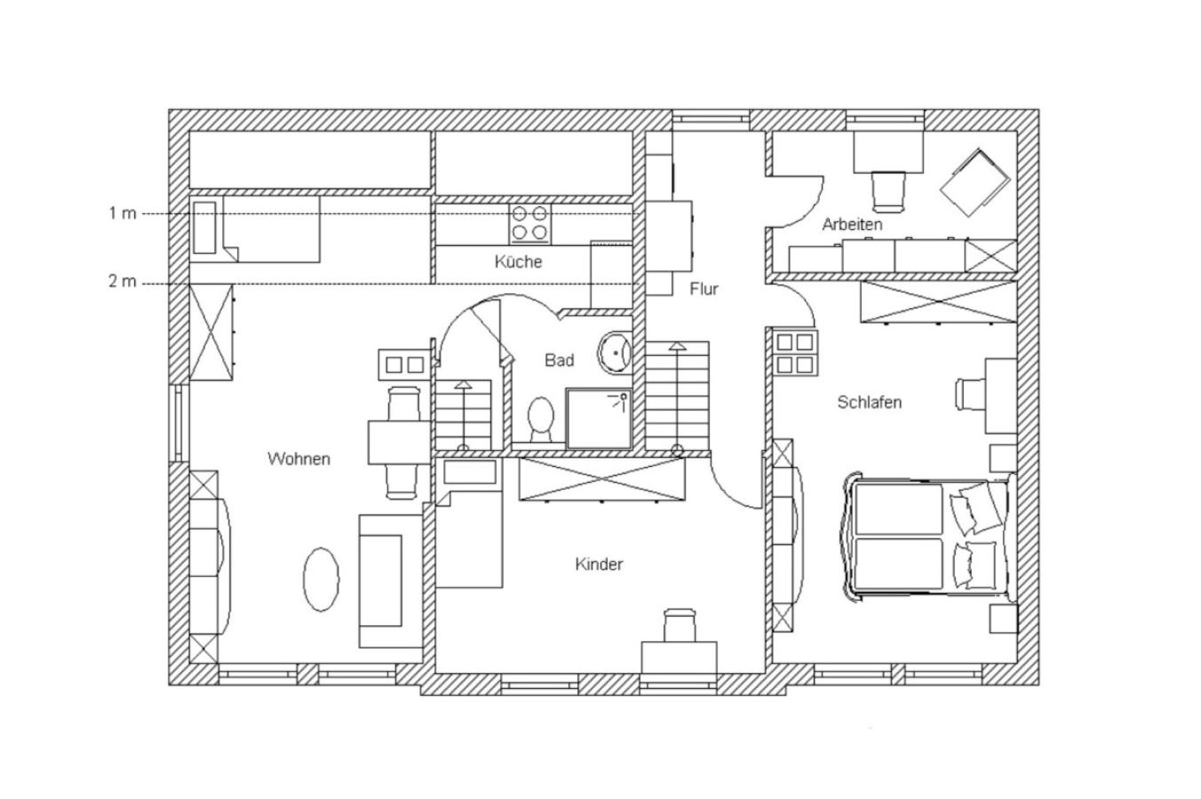
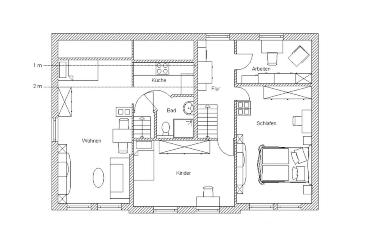
Grundriss EG
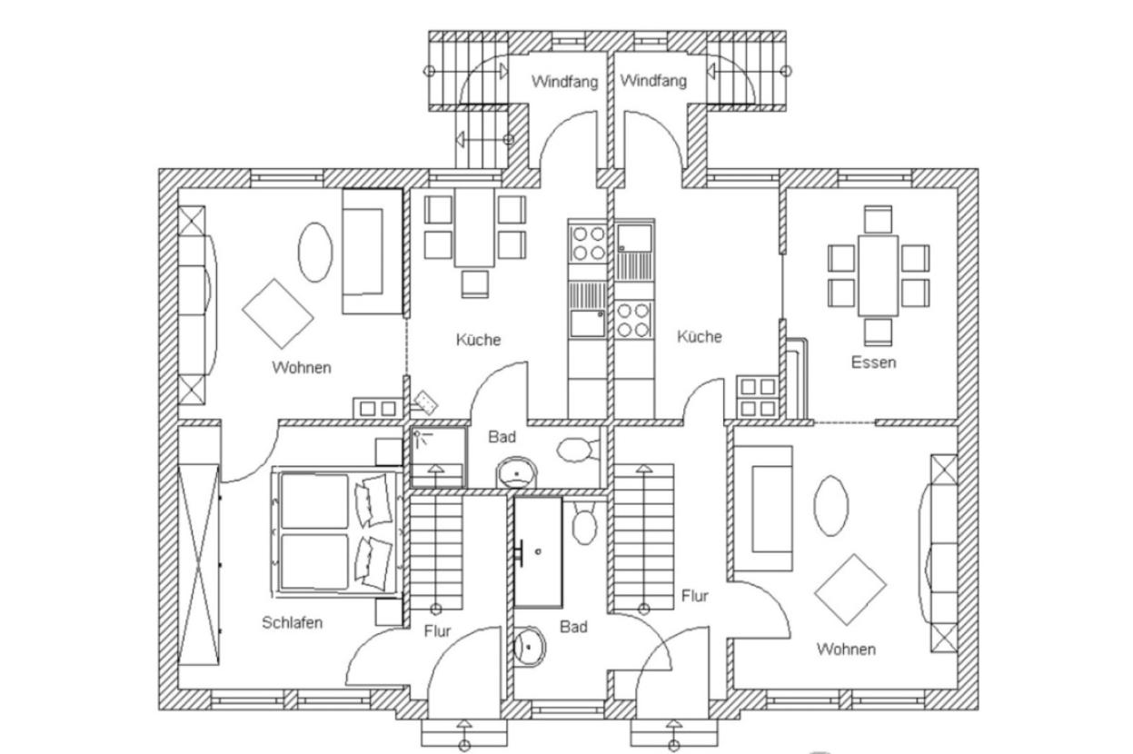
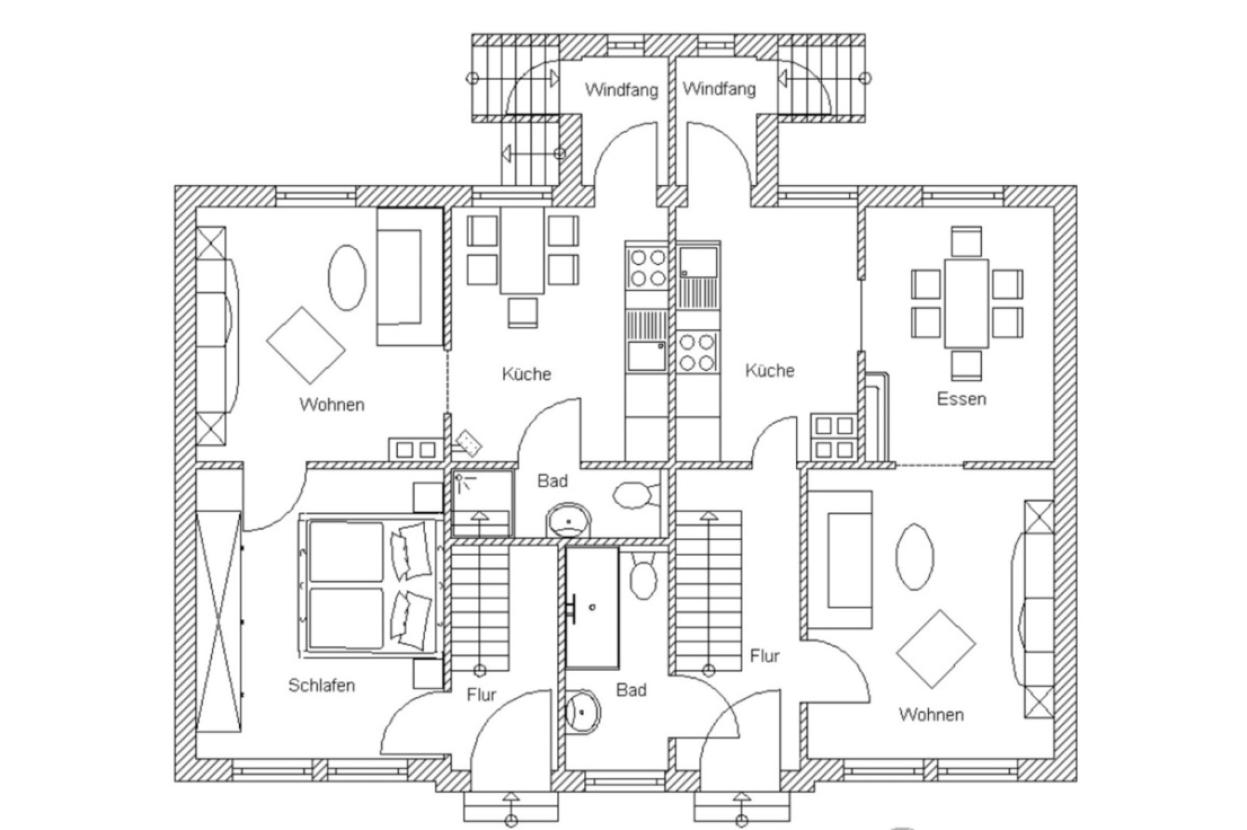
Grundriss OG
Vorabgutachten Bild BG-25-04438 19.11.2025
20 Fotos ansehen
Grundriss

Generationenwohnen

430.000 €

Kaufpreis 2.687,50 €/m2

8

Zi.

160 m2

Wohnfläche

Adresse

25421 Pinneberg

Auf Karte anzeigen

Keller

Typ:

Zweifamilienhaus

Wohnfläche ca.:

160 m2

Nutzfläche ca.:

46 m2

Grundstück ca.:

583 m2

Bezugsfrei ab:

nach Vereinbarung

Zimmer:

8

Badezimmer:

3

Kosten

Kaufpreis:

430.000 €

Preis/m2:

2.687,50 €

Bausubstanz & Energieausweis

Baujahr:

1899

Objektzustand:

Gepflegt

Austattung:

Standard

Heizungsart:

Zentralheizung

Wesentliche Energieträger:

Gas

Energieausweis:

liegt vor

Energieausweistyp:

Bedarf

Endenergiebedarf:

285,00 kWh/(m2*a)

Energieklasse:

H

Objektbeschreibung

Austattung

Grundrisse

Grundriss EG
Grundriss OG

Lage

Sonstiges

Karte

25421 Pinneberg

Die vollständige Adresse der Immobilie erhalten Sie vom Anbieter.

Logo Drasdo-Immobilien

Drasdo-Immobilien

Gewerblicher Anbieter:in

Impressum des Anbieters
Anbieter kontaktieren