Seitenansicht links
Vorderansicht von rechts
Heizungsanlage Gas
Garten
Küche Wohnung 1
Ansicht zum Garten
Wohnzimmer Wohnung 1
Schlafzimmer Wohnung 1
Schlafzimmer Wohnung 2
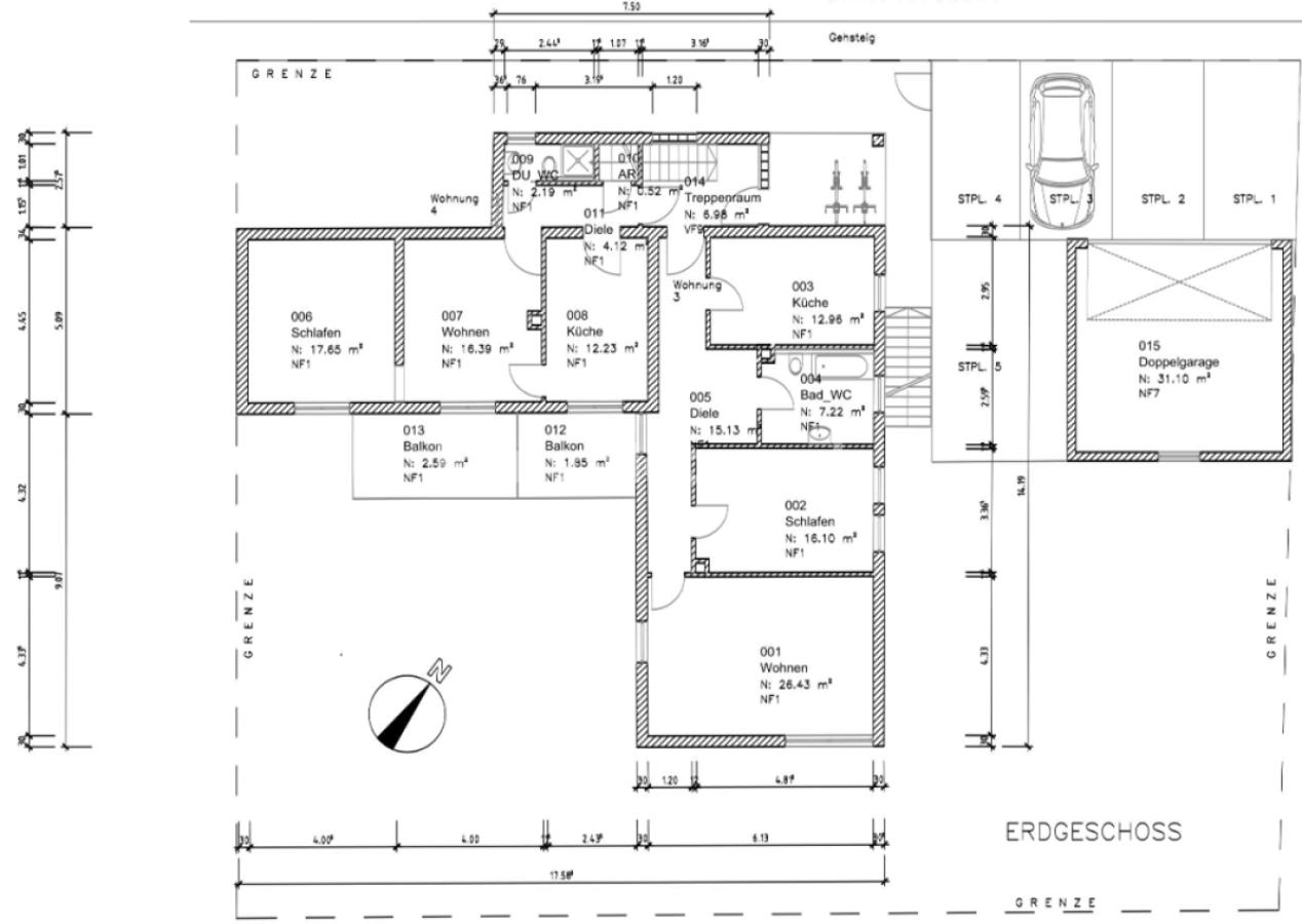
Erdgeschoss
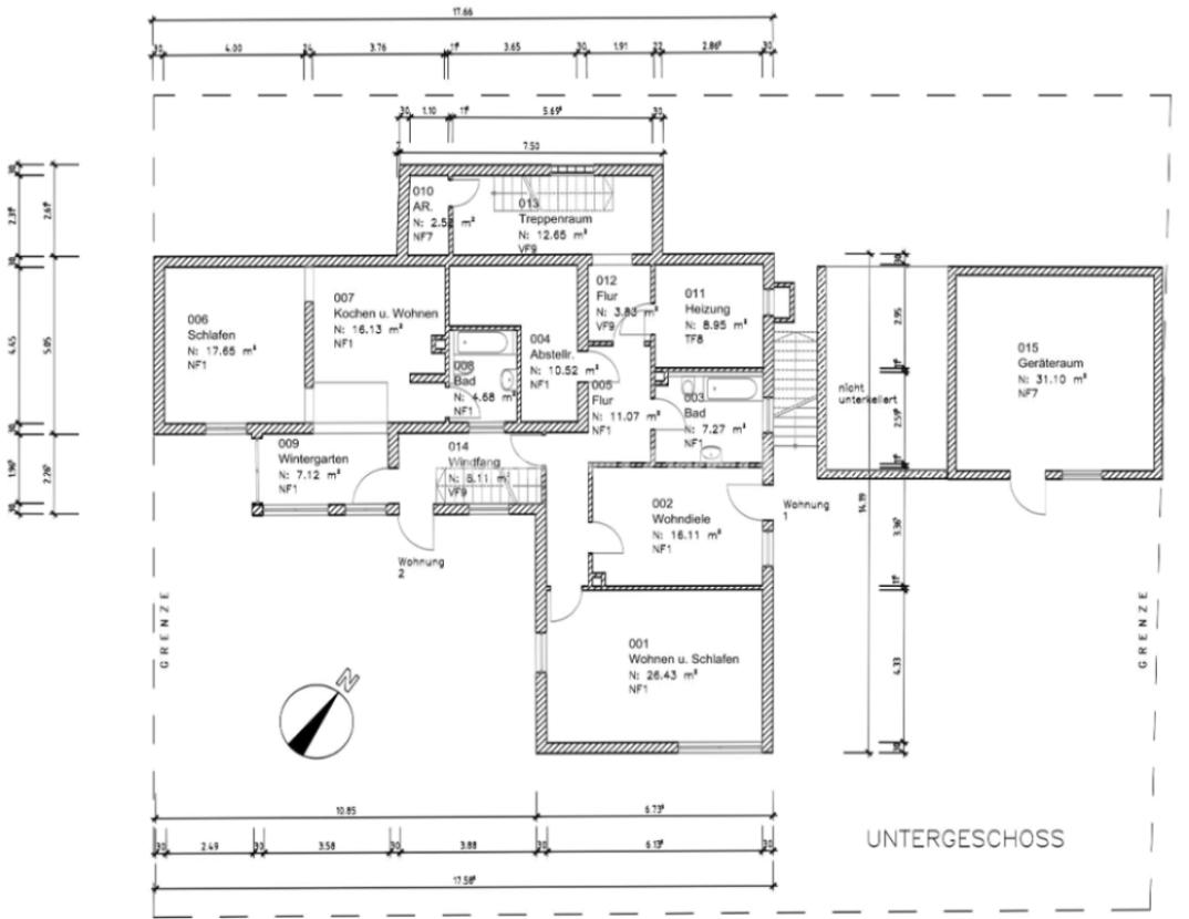
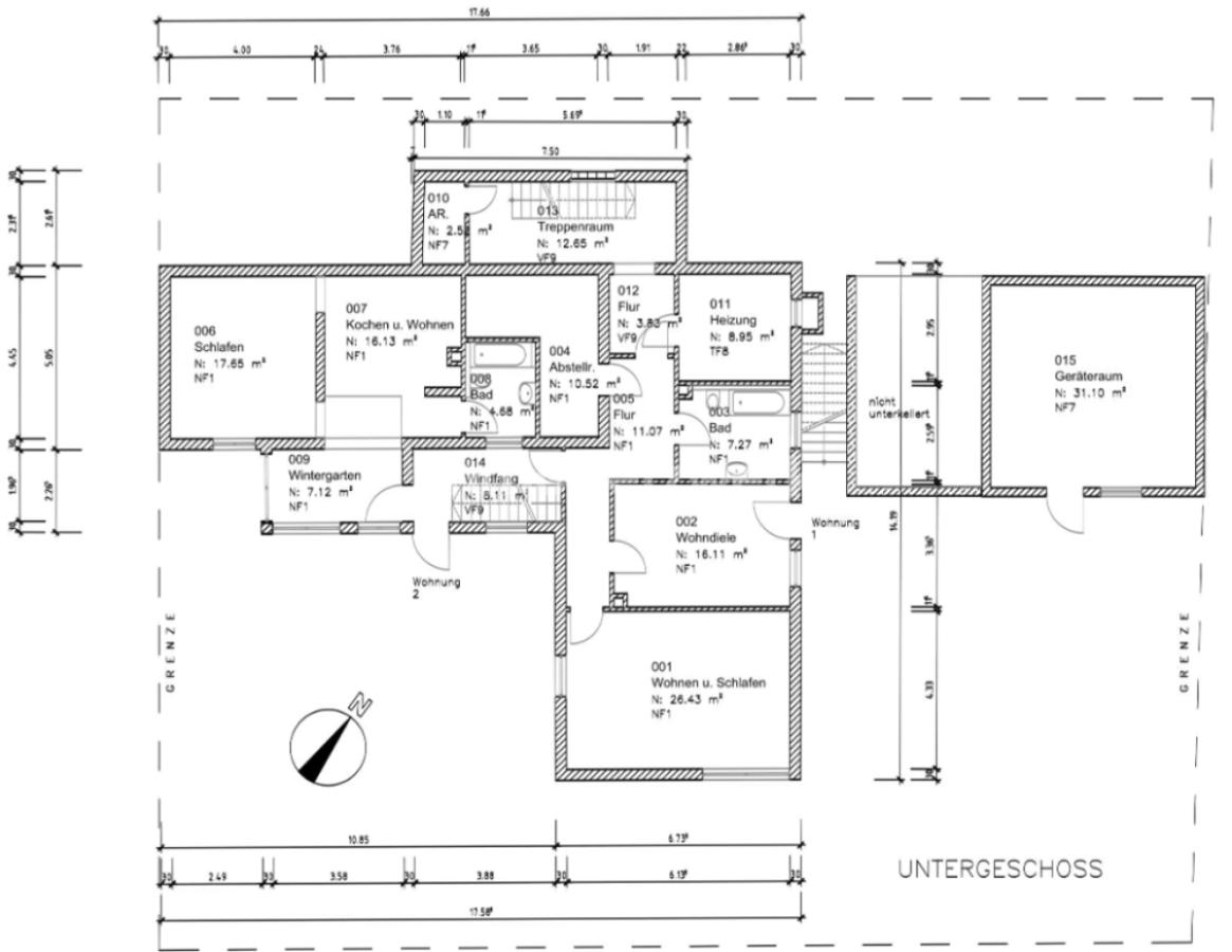
Untergeschoss
Keller
12 Fotos ansehen
Grundriss

Kapitalanlage in Herzogenaurach: MFH mit 4 Einheiten und Top-Energiewerten

789.000 €

Kaufpreis 3.130,95 €/m2

6

Zi.

252 m2

Wohnfläche

Adresse

91074 Herzogenaurach

Auf Karte anzeigen

Einbauküche
Parkett
Keller

Typ:

Mehrfamilienhaus

Etagenanzahl:

2

Wohnfläche ca.:

252 m2

Nutzfläche ca.:

255 m2

Grundstück ca.:

667 m2

Zimmer:

6

Kosten

Kaufpreis:

789.000 €

Preis/m2:

3.130,95 €

Provision:

3.57% (inkl. MwSt.)

Bausubstanz & Energieausweis

Baujahr:

1976

Objektzustand:

Modernisiert

Austattung:

Standard

Heizungsart:

Zentralheizung

Wesentliche Energieträger:

Gas

Energieausweis:

liegt vor

Energieausweistyp:

Verbrauch

Endenergiebedarf:

51,90 kWh/(m2*a)

Energieklasse:

B

Objektbeschreibung

Austattung

Grundrisse

Erdgeschoss
Untergeschoss
Keller

Lage

Sonstiges

Karte

91074 Herzogenaurach

Die vollständige Adresse der Immobilie erhalten Sie vom Anbieter.

Logo ImmoNetzwerk GmbH

ImmoNetzwerk GmbH

Gewerblicher Anbieter:in

Impressum des Anbieters
Anbieter kontaktieren