Vorlage Titelbild
Esszimmer und Küche
Ansicht Hausfront
Garten
Zimmer DG
Flur DG
Flur DG
Zimmer DG
Zimmer DG
Schlafzimmer mit Balkon 1.OG
Schlafzimmer mit Balkon 1.OG
Balkon
Flur 1.OG
Aussicht vom Balkon
Ankleide
Flur 1.OG
Kinderzimmer 1.OG
Kinderzimmer 1.OG
Kinderzimmer 1.OG
Badezimmer
Badezimmer
Esszimmer und Küche
Garten
Küche
Wohnzimmer
Esszimmer
Wohnzimmer
Wohnzimmer
Eingangsbereich
Eingangsbereich
Gäste-WC
Kellerraum 1
Kellerraum 2
Heizung und weiterer Raum
Kellerraum 4
HWR mit Dusche im Keller
Garage
Vorgarten
Garagenhof
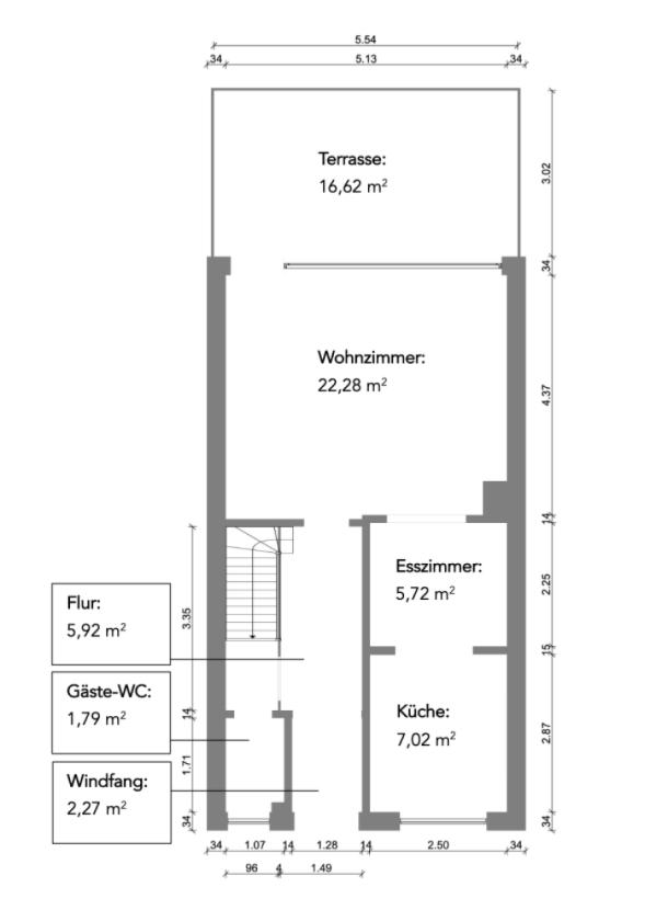
Grundriss Erdgeschoss
Grundriss 1.OG
Grundriss Dachgeschoss
Grundriss Keller
43 Fotos ansehen
Grundriss

Modernisiertes Reihenendhaus mit Garten, Keller und Garage in Horn-Lehe

529.000 €

Kaufpreis 4.300,81 €/m2

6

Zi.

123 m2

Wohnfläche

Adresse

Lehesterdeich, 28357 Bremen

Auf Karte anzeigen

Einbauküche
Garten
Balkon
Garage
Gäste-WC

Typ:

Reihenend

Etagenanzahl:

4

Wohnfläche ca.:

123 m2

Nutzfläche ca.:

44 m2

Grundstück ca.:

304 m2

Bezugsfrei ab:

Nach Absprache

Zimmer:

6

Schlafzimmer:

4

Badezimmer:

2

Garage/Stellplatz:

2 Garagen

Kosten

Kaufpreis:

529.000 €

Preis/m2:

4.300,81 €

Provision:

3,57% inkl. gesetzlicher Mehrwertsteuer

Bausubstanz & Energieausweis

Baujahr:

1966

Objektzustand:

Modernisiert

Austattung:

Standard

Wesentliche Energieträger:

Gas

Energieausweis:

liegt vor

Energieausweistyp:

Bedarf

Endenergiebedarf:

166,00 kWh/(m2*a)

Energieklasse:

F

Objektbeschreibung

Austattung

Grundrisse

Grundriss Erdgeschoss
Grundriss 1.OG
Grundriss Dachgeschoss
Grundriss Keller

Lage

Karte

Lehesterdeich, 28357 Bremen

Die vollständige Adresse der Immobilie erhalten Sie vom Anbieter.

Logo EOH Immobilien

EOH Immobilien

Gewerblicher Anbieter:in

Impressum des Anbieters
Anbieter kontaktieren