Außenansicht, 3 OG
Wohnzimmer
Wohnzimmer
Küche
Flur
Arbeitszimmer rechts
Arbeitszimmer links
OG links
OG Links
OG rechts
OG rechts
Bad oben
Bad oben
Bad unten
Treppenaufgang 2 Stock
Balkon
Grundriss 3 OG
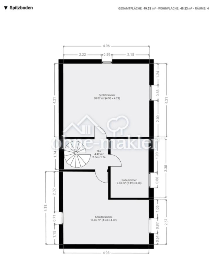
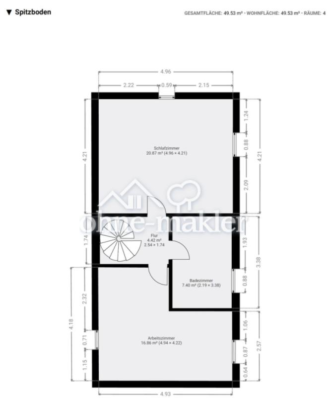
Grundriss 4 OG
18 Fotos ansehen
Grundriss

Provisionsfrei: Maisonnette 5 Z auf 2 Etagen

249.500 €

Kaufpreis 2.079,17 €/m2

5

Zi.

120 m2

Wohnfläche

Adresse

Friesenheim/Nord, 67063 Ludwigshafen am Rhein

Auf Karte anzeigen

Balkon
Keller

Typ:

Maisonette

Etagenanzahl:

2

Etage:

3

Wohnfläche ca.:

120 m2

Bezugsfrei ab:

nach Absprache

Zimmer:

5

Badezimmer:

2

Kosten

Kaufpreis:

249.500 €

Preis/m2:

2.079,17 €

Provision:

keine Provision, courtagefrei

Bausubstanz & Energieausweis

Baujahr:

1918

Objektzustand:

Teil-/Vollrenoviert

Heizungsart:

Zentralheizung

Wesentliche Energieträger:

Gas

Energieausweis:

liegt vor

Energieausweistyp:

Bedarf

Endenergiebedarf:

247,00 kWh/(m2*a)

Energieklasse:

F

Objektbeschreibung

Austattung

Grundrisse

Grundriss 3 OG
Grundriss 4 OG

Lage

Sonstiges

Karte

Friesenheim/Nord, 67063 Ludwigshafen am Rhein

Die vollständige Adresse der Immobilie erhalten Sie vom Anbieter.

Logo Ohne Makler

Ohne Makler

Gewerblicher Anbieter:in

Impressum des Anbieters:
Anbieter kontaktieren