Hausfront, Straßenseite
Küche, EG
Esszimmer, EG
Wohnzimmer, EG
Wintergarten, EG
Treppenhaus EG
Treppenhaus OG
Zimmer OG
Schlafzimmer OG
Schlafzimmer DG
Badezimmer EG
Badezimmer Keller
Werkstatt
Laube
Terasse
Schuppen
Sommerküche
Rasenfläche
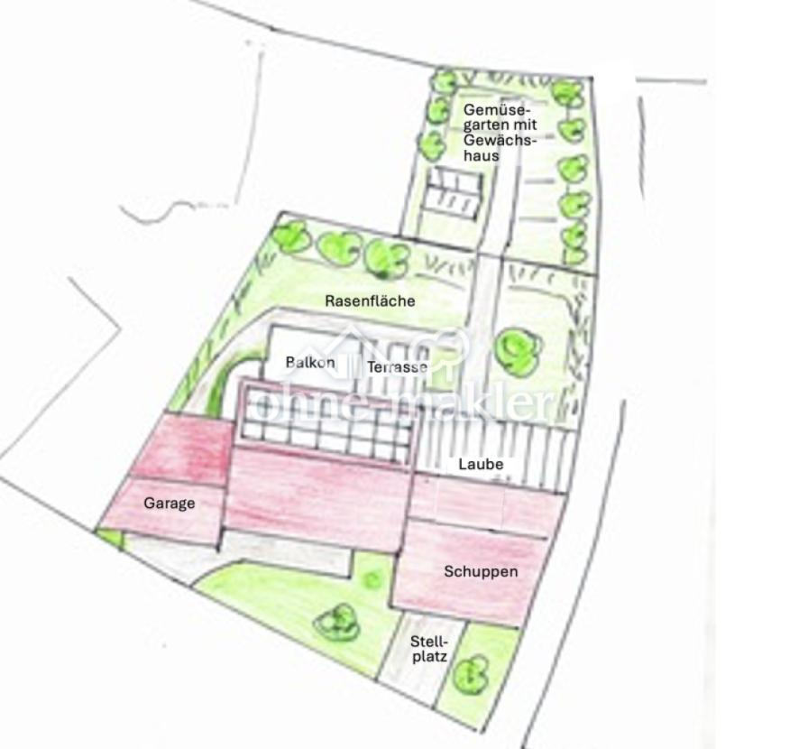
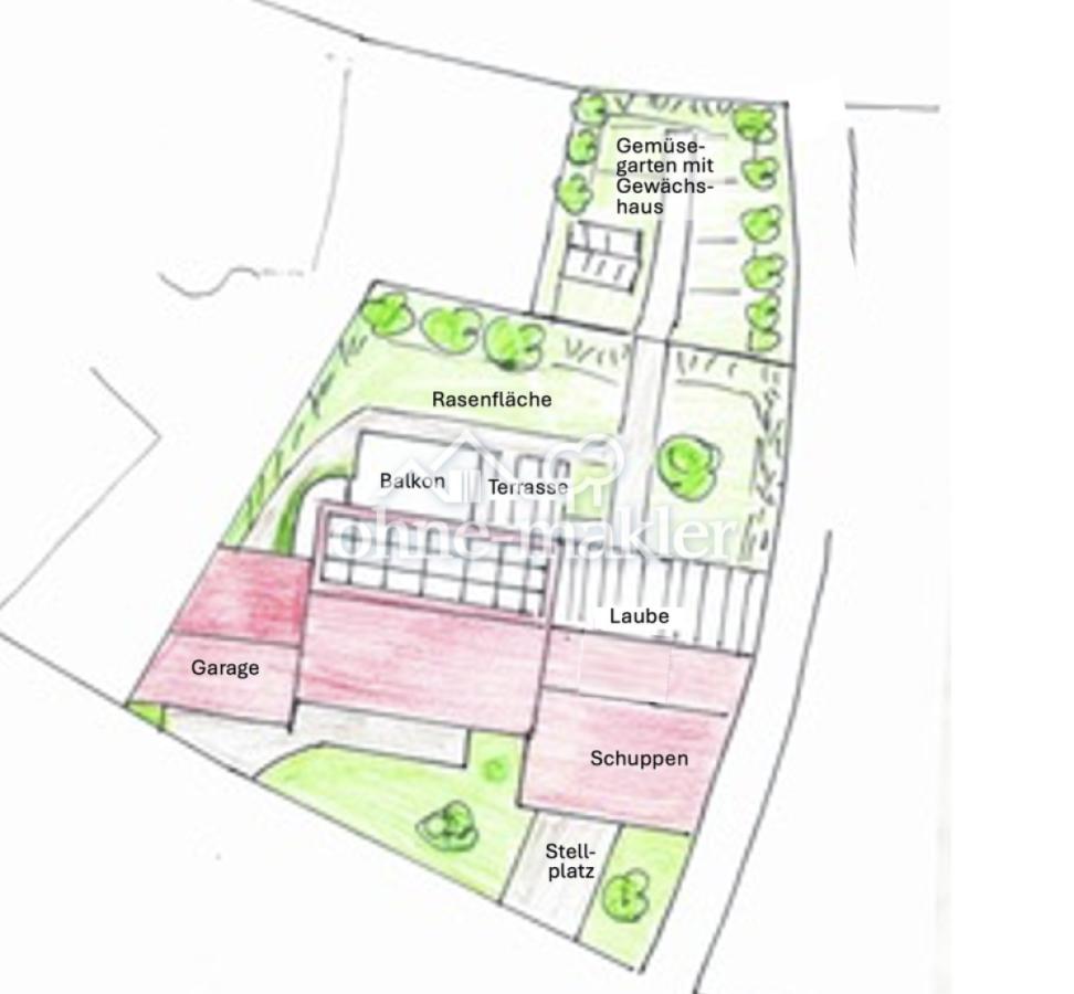
Grundstück
Erdgeschoss mit Nebengebäude
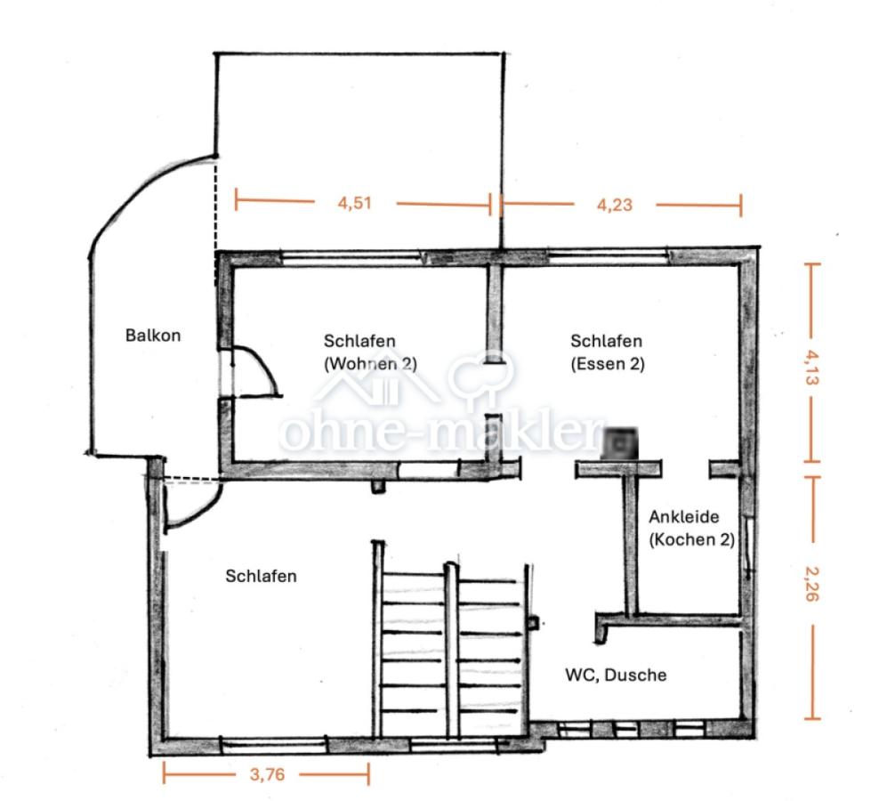
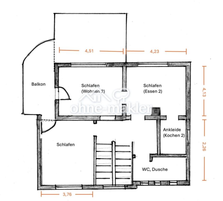
Obergeschoss
Dachgeschoss
Keller
23 Fotos ansehen
Grundriss

Großes Ein-/Zweifamilienhaus in Traumlage – viel Platz, viele Möglichkeiten, kein Makler!

440.000 €

Kaufpreis 2.666,67 €/m2

8

Zi.

165 m2

Wohnfläche

Adresse

74889 Sinsheim

Auf Karte anzeigen

Einbauküche
Garten
Parkett
Terasse
Balkon

Typ:

Einfamilienhaus

Etagenanzahl:

2

Wohnfläche ca.:

165 m2

Grundstück ca.:

650 m2

Bezugsfrei ab:

sofort

Zimmer:

8

Schlafzimmer:

4

Badezimmer:

3

Garage/Stellplatz:

1 Außenstellplatz, 1 Garage

Kosten

Kaufpreis:

440.000 €

Preis/m2:

2.666,67 €

Provision:

keine Provision, courtagefrei

Bausubstanz & Energieausweis

Baujahr:

1961

Objektzustand:

Gepflegt

Wesentliche Energieträger:

Strom

Energieausweis:

liegt vor

Energieausweistyp:

Bedarf

Endenergiebedarf:

219,00 kWh/(m2*a)

Energieklasse:

G

Objektbeschreibung

Austattung

Grundrisse

Erdgeschoss mit Nebengebäude
Obergeschoss
Dachgeschoss
Keller

Lage

Sonstiges

Karte

74889 Sinsheim

Die vollständige Adresse der Immobilie erhalten Sie vom Anbieter.

Logo Ohne Makler

Ohne Makler

Gewerblicher Anbieter:in

Impressum des Anbieters:
Anbieter kontaktieren