Bild
Bild
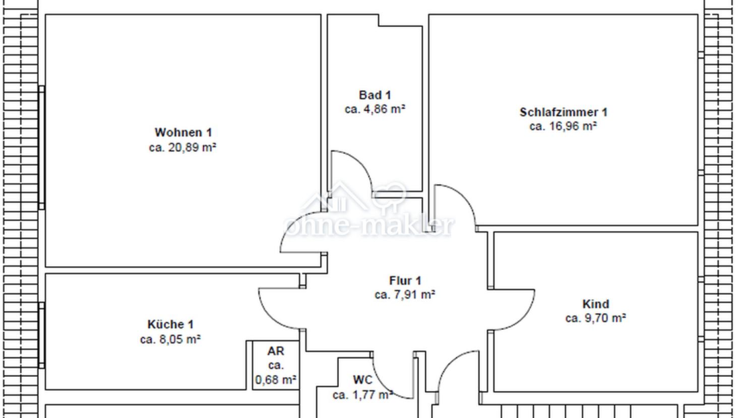
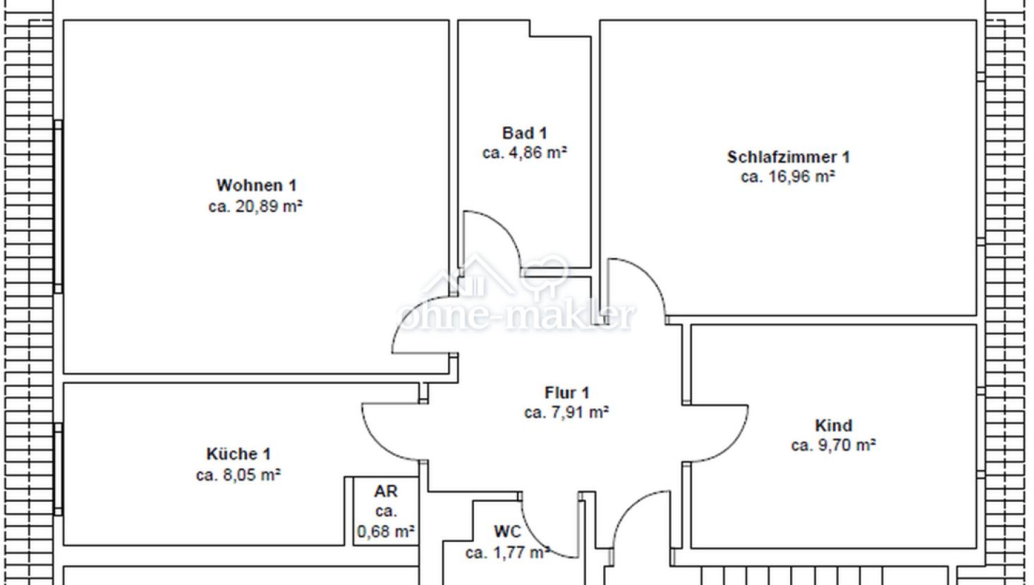
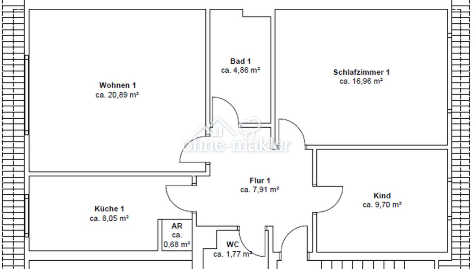
Flur
Küche
Zimmer 2
Bad
Zimmer 1
Gäste WC
Küche
Flur
Zimmer 3
Bild
12 Fotos ansehen
Grundriss

3,5 - Zimmer-Wohnung in Essen Dellwig

595 €

Kaltmiete 8,50 €/m2

3

Zi.

70 m2

Wohnfläche

Adresse

Bergeborbeck, 45356 Essen

Auf Karte anzeigen

Garage

Typ:

Dachgeschoss

Etagenanzahl:

3

Etage:

2

Wohnfläche ca.:

70 m2

Bezugsfrei ab:

sofort

Zimmer:

3

Garage/Stellplatz:

1 Garage

Kosten

Kaltmiete:

595 €

Preis/m2:

8,50 €

Nebenkosten:

160 €

Heizkosten:

in Nebenkosten enthalten €

Kaution:

1.785,00 €

Bausubstanz & Energieausweis

Baujahr:

1980

Objektzustand:

Gepflegt

Heizungsart:

Zentralheizung

Wesentliche Energieträger:

Gas

Energieausweis:

liegt vor

Energieausweistyp:

Verbrauch

Energieklasse:

D

Objektbeschreibung

Grundriss

Bild

Lage

Sonstiges

Karte

Bergeborbeck, 45356 Essen

Die vollständige Adresse der Immobilie erhalten Sie vom Anbieter.

Logo Ohne Makler

Ohne Makler

Gewerblicher Anbieter:in

Impressum des Anbieters:
Anbieter kontaktieren