Außenansicht
Wohnzimmer
Balkon
Schlafzimmer
Flur
Küche
Bad
Hausflur
Keller Fahrradabstellraum
Trockenraum Dachboden
Kellerabteile
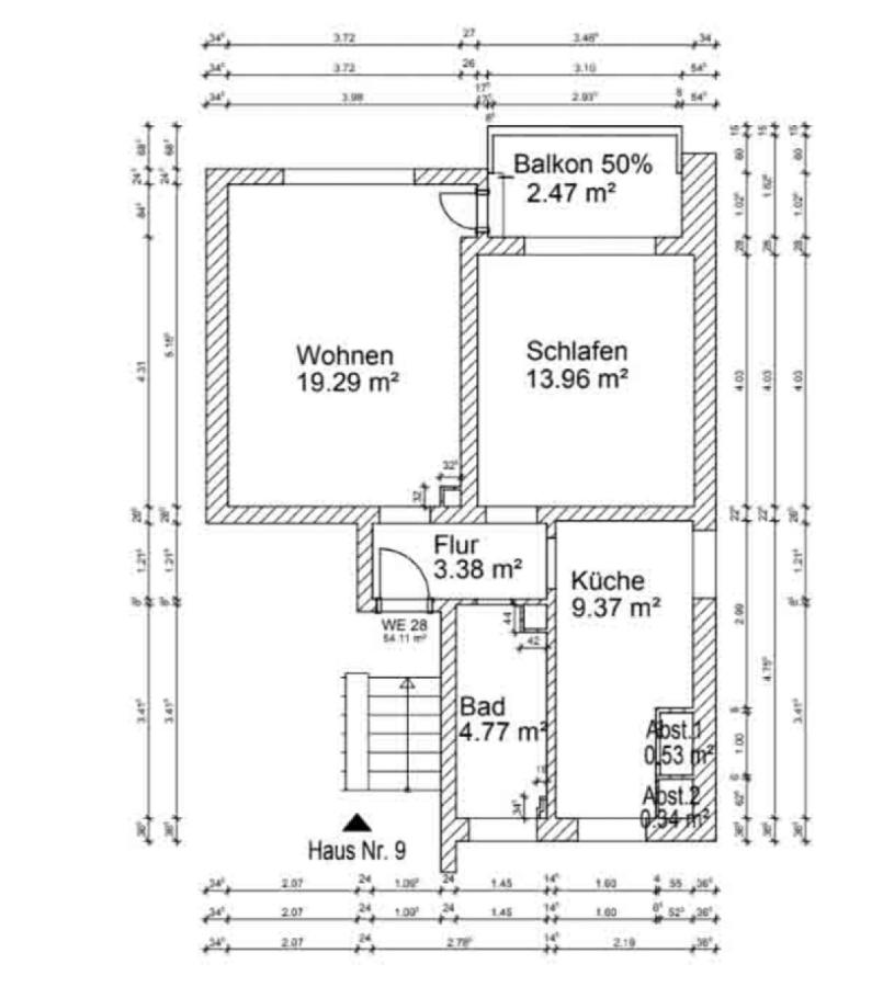
Grundriss Skizze
12 Fotos ansehen

Provisionsfrei: Leerstehende 2-Zimmer-Wohnung mit Potenzial in Eutin

105.000 €

Kaufpreis 1.944,44 €/m2

2

Zi.

54 m2

Wohnfläche

Adresse

23701 Eutin

Auf Karte anzeigen

Balkon
PKW-Stellplatz
Keller

Typ:

Etage

Etagenanzahl:

3

Etage:

1

Wohnfläche ca.:

54 m2

Bezugsfrei ab:

nach Absprache

Zimmer:

2

Schlafzimmer:

1

Badezimmer:

1

Garage/Stellplatz:

0 Außenstellplatz

Kosten

Kaufpreis:

105.000 €

Preis/m2:

1.944,44 €

Bausubstanz & Energieausweis

Baujahr:

1960

Objektzustand:

Gepflegt

Austattung:

Standard

Heizungsart:

Zentralheizung

Wesentliche Energieträger:

Gas

Energieausweis:

liegt vor

Energieausweistyp:

Bedarf

Endenergiebedarf:

192,00 kWh/(m2*a)

Energieklasse:

F

Objektbeschreibung

Austattung

Lage

Sonstiges

Karte

23701 Eutin

Die vollständige Adresse der Immobilie erhalten Sie vom Anbieter.

Logo McMakler GmbH

McMakler GmbH

Gewerblicher Anbieter:in

Impressum des Anbieters
Anbieter kontaktieren