Hausansicht 2
Hausansicht 1
Eingang
Wohnzimmer
Wohnzimmer 2
Esszimmer
Kinderzimmer 2
Kinderzimmer
Küche
Treppenhaus
Schlafzimmer
Balkon
Gäste-WC
Bad
Keller
Garten
Vogelperpektive 2
Grundstück Vogelperspektive
Untergeschoss
Erdgeschoss
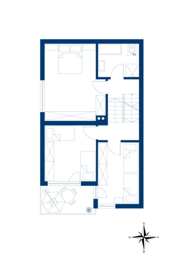
Obergeschoss
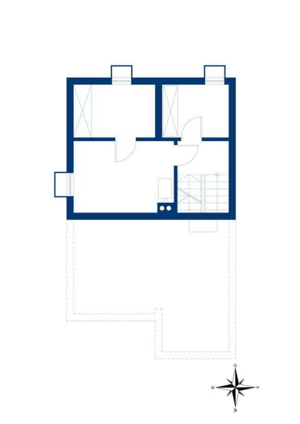
Dachgeschoss
22 Fotos ansehen
Grundriss

Doppelhaushälfte für Eigennutzer in begehrter Lage von Ravensburg – Sonnenbüchel

539.000 €

Kaufpreis 4.312,00 €/m2

5

Zi.

125 m2

Wohnfläche

Adresse

Innenstadt, 88212 Ravensburg

Auf Karte anzeigen

Terasse
Balkon
Garage
PKW-Stellplatz
Gäste-WC

Typ:

Doppelhaushaelfte

Etagenanzahl:

2

Wohnfläche ca.:

125 m2

Grundstück ca.:

327 m2

Zimmer:

5

Schlafzimmer:

1

Badezimmer:

1

Garage/Stellplatz:

1 Außenstellplatz, 1 Garage

Kosten

Kaufpreis:

539.000 €

Preis/m2:

4.312,00 €

Provision:

3,57

Bausubstanz & Energieausweis

Baujahr:

1981

Objektzustand:

Gepflegt

Austattung:

Standard

Wesentliche Energieträger:

Gas

Energieausweis:

liegt vor

Energieklasse:

D

Objektbeschreibung

Austattung

Grundrisse

Untergeschoss
Erdgeschoss
Obergeschoss
Dachgeschoss

Lage

Karte

Innenstadt, 88212 Ravensburg

Die vollständige Adresse der Immobilie erhalten Sie vom Anbieter.

Logo Immobilienkanzlei Oberschwaben GmbH

Immobilienkanzlei Oberschwaben GmbH

Gewerblicher Anbieter:in

Impressum des Anbieters
Anbieter kontaktieren