Badezimmer mit Badewanne
Blick aus dem Wohnzimmer
Blick aus Schlafzimmer 1
Herd und Spüle
Einbauküche
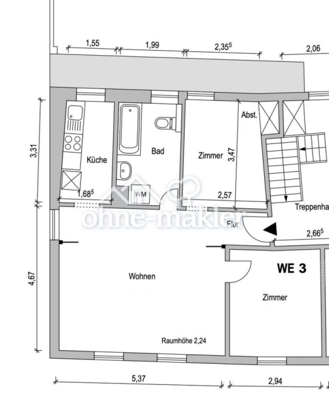
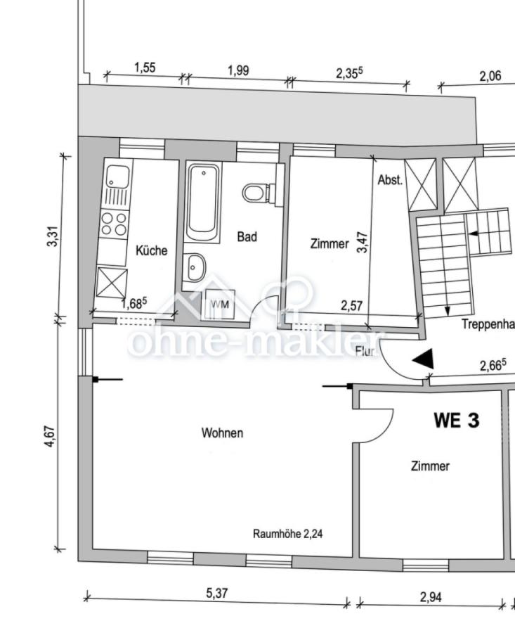
Grundriss
6 Fotos ansehen
Grundriss

Bezug nach Renovierung, keine 100m zur Elbe

550 €

Kaltmiete 9,09 €/m2

3

Zi.

61 m2

Wohnfläche

Adresse

Lauenburg, 21481 Lauenburg/Elbe

Auf Karte anzeigen

Einbauküche
Parkett

Typ:

Etage

Etage:

1

Wohnfläche ca.:

61 m2

Bezugsfrei ab:

sofort

Zimmer:

3

Schlafzimmer:

2

Badezimmer:

1

Kosten

Kaltmiete:

550 €

Preis/m2:

9,09 €

Nebenkosten:

75 €

Heizkosten:

in Nebenkosten enthalten €

Kaution:

1.650,00 €

Bausubstanz & Energieausweis

Baujahr:

1800

Heizungsart:

Zentralheizung

Wesentliche Energieträger:

Gas

Energieausweis:

liegt vor

Energieausweistyp:

Verbrauch

Objektbeschreibung

Austattung

Grundriss

Grundriss

Lage

Sonstiges

Karte

Lauenburg, 21481 Lauenburg/Elbe

Die vollständige Adresse der Immobilie erhalten Sie vom Anbieter.

Logo Ohne Makler

Ohne Makler

Gewerblicher Anbieter:in

Impressum des Anbieters:
Anbieter kontaktieren