Visualisierung Südseite
Planung
Visualisierung Nordseite
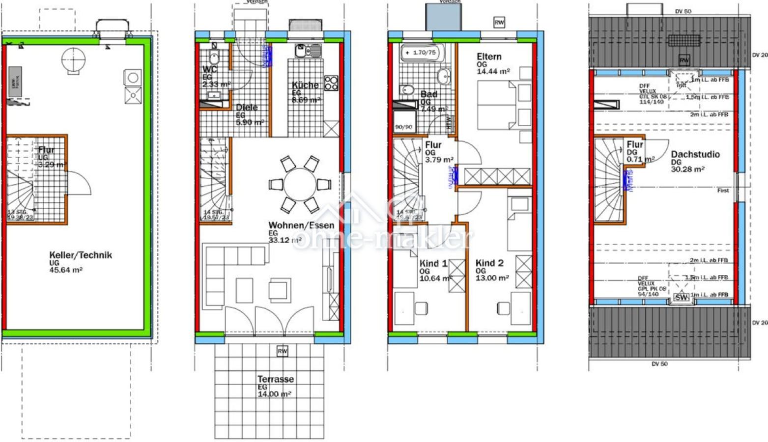
Grundrisse
4 Fotos ansehen

Neubau-Reihenhaus in toller Lage von Haueneberstein (QNG)

585.000 €

Kaufpreis 4.465,65 €/m2

5

Zi.

131 m2

Wohnfläche

Adresse

76532 Baden-Baden

Auf Karte anzeigen

Garten
Parkett
Terasse
PKW-Stellplatz
Keller

Typ:

Reihenhaus

Wohnfläche ca.:

131 m2

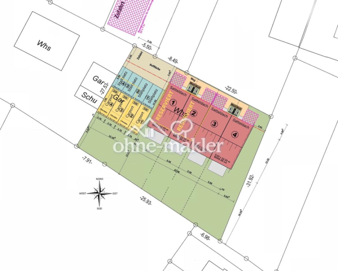
Grundstück ca.:

357 m2

Bezugsfrei ab:

nach Absprache

Zimmer:

5

Garage/Stellplatz:

1 Carport, 1 Außenstellplatz

Kosten

Kaufpreis:

585.000 €

Preis/m2:

4.465,65 €

Provision:

keine Provision, courtagefrei

Bausubstanz & Energieausweis

Baujahr:

2026

Objektzustand:

Erstbezug

Heizungsart:

Fußbodenheizung

Wesentliche Energieträger:

Luftwärmepumpe

Energieausweis:

liegt vor

Energieausweistyp:

Bedarf

Endenergiebedarf:

7,00 kWh/(m2*a)

Energieklasse:

A+

Objektbeschreibung

Austattung

Lage

Sonstiges

Karte

76532 Baden-Baden

Die vollständige Adresse der Immobilie erhalten Sie vom Anbieter.

Logo Ohne Makler

Ohne Makler

Gewerblicher Anbieter:in

Impressum des Anbieters:
Anbieter kontaktieren