Frontseite
Zuwegung Frontseite
Hinterseite mit Terrasse
Wohnzimmer (EG)
Wohnzimmer mit Terrassentür
Küche (EG)
Küche (EG)
Gäste-WC (EG)
Gäste-WC (EG)
Diele (EG)
Abgang zum Keller
Aufgang zum OG
Diele mit Windfang (EG)
Haustüre (EG)
Schlafzimmer (OG)
Schlafzimmer (OG)
Kinderzimmer (OG)
Kinderzimmer (OG)
Arbeitszimmer (OG)
Arbeitszimmer (OG)
Bad (OG)
Bad (OG)
Flur (OG)
Flur (OG)
Dachboden
Keller/Elektroverteiler
Keller/Waschküche
Keller/Großer Abstellraum
Keller/Großer Abstellraum
Keller
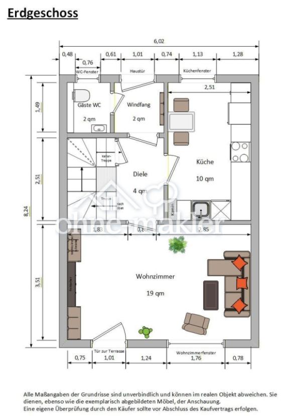
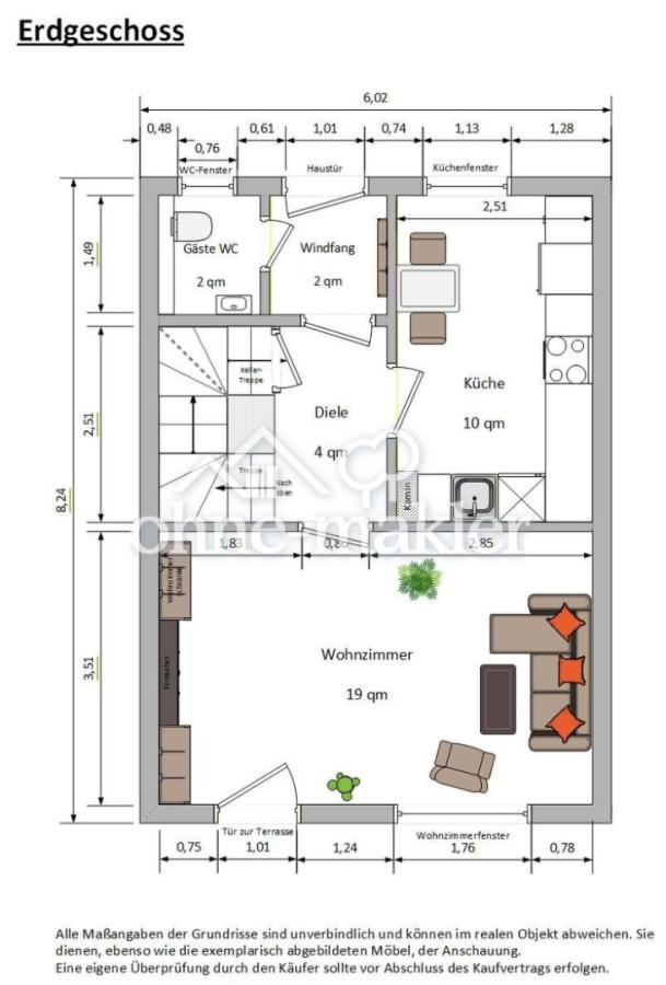
Grundriss EG
Grundriss OG
Grundriss Keller
Grundriss Architekt EG
Grundriss Architekt OG
Grundriss Architekt Keller
36 Fotos ansehen
Grundriss

Schönes Reihenhaus in Celle

175.000 €

Kaufpreis 2.034,88 €/m2

4

Zi.

86 m2

Wohnfläche

Adresse

Heese, 29225 Celle

Auf Karte anzeigen

Einbauküche
Garten
Terasse
Keller

Typ:

Reihenhaus

Etagenanzahl:

2

Wohnfläche ca.:

86 m2

Grundstück ca.:

134 m2

Bezugsfrei ab:

nach Absprache

Zimmer:

4

Schlafzimmer:

1

Badezimmer:

1

Kosten

Kaufpreis:

175.000 €

Preis/m2:

2.034,88 €

Provision:

keine Provision, courtagefrei

Bausubstanz & Energieausweis

Baujahr:

1969

Objektzustand:

Gepflegt

Heizungsart:

Zentralheizung

Wesentliche Energieträger:

Gas

Energieausweis:

liegt vor

Energieausweistyp:

Bedarf

Endenergiebedarf:

167,00 kWh/(m2*a)

Energieklasse:

F

Objektbeschreibung

Austattung

Grundrisse

Grundriss EG
Grundriss OG
Grundriss Keller
Grundriss Architekt EG
Grundriss Architekt OG
Grundriss Architekt Keller

Lage

Sonstiges

Karte

Heese, 29225 Celle

Die vollständige Adresse der Immobilie erhalten Sie vom Anbieter.

Logo Ohne Makler

Ohne Makler

Gewerblicher Anbieter:in

Impressum des Anbieters:
Anbieter kontaktieren