Bild
Vorderansicht
Eingang /Flur
Flur
Wohnzimmer
Schlafzimmer
Küche
Duschbad
Rückansicht/ Garage
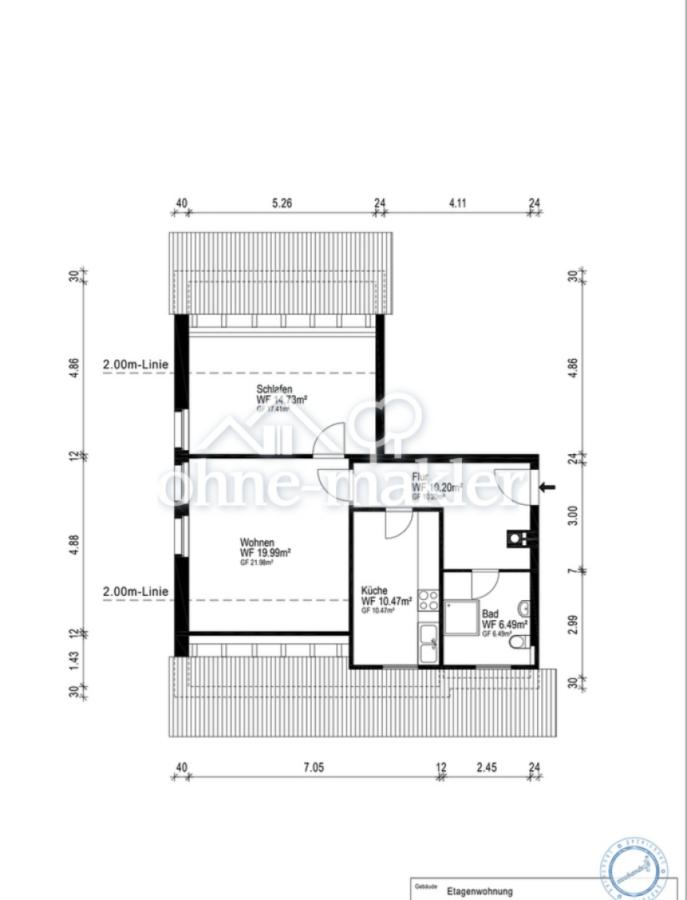
Grundriss
Energieausweis
11 Fotos ansehen
Grundriss

Urban wohnen in Geestemünde: Smarte Raumaufteilung – provisionsfrei!

129.900 €

Kaufpreis 2.100,24 €/m2

2

Zi.

62 m2

Wohnfläche

Adresse

27572 Bremerhaven

Auf Karte anzeigen

Garage
PKW-Stellplatz
Keller

Typ:

Dachgeschoss

Etagenanzahl:

3

Etage:

3

Wohnfläche ca.:

62 m2

Bezugsfrei ab:

sofort

Zimmer:

2

Schlafzimmer:

1

Badezimmer:

1

Garage/Stellplatz:

1 Außenstellplatz, 1 Garage

Kosten

Kaufpreis:

129.900 €

Preis/m2:

2.100,24 €

Provision:

keine Provision, courtagefrei

Bausubstanz & Energieausweis

Baujahr:

1981

Objektzustand:

Gepflegt

Heizungsart:

Zentralheizung

Wesentliche Energieträger:

Gas

Energieausweis:

liegt vor

Energieausweistyp:

Bedarf

Endenergiebedarf:

169,00 kWh/(m2*a)

Objektbeschreibung

Austattung

Grundrisse

Grundriss
Energieausweis

Lage

Sonstiges

Karte

27572 Bremerhaven

Die vollständige Adresse der Immobilie erhalten Sie vom Anbieter.

Logo Ohne Makler

Ohne Makler

Gewerblicher Anbieter:in

Impressum des Anbieters:
Anbieter kontaktieren