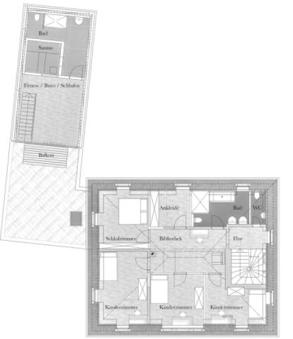
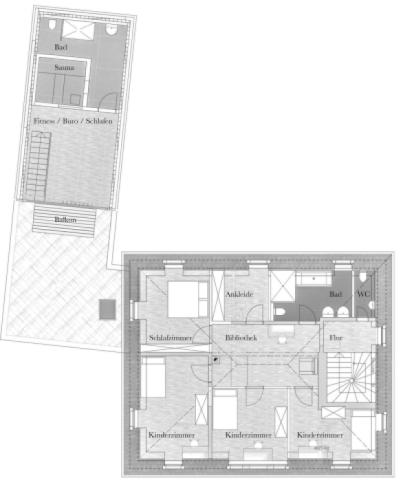
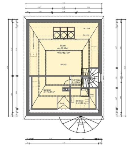
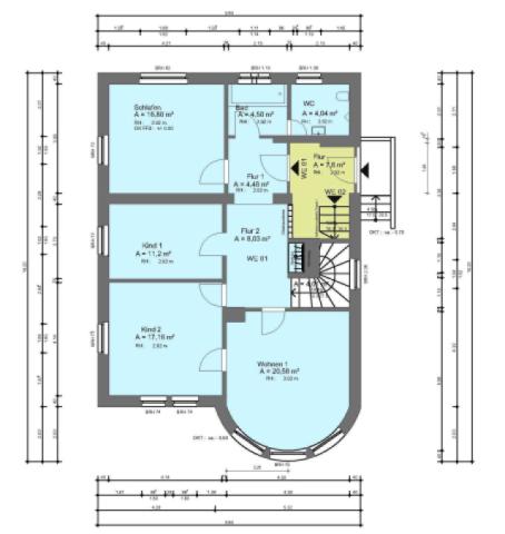
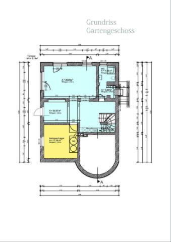
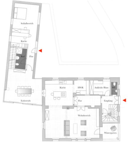
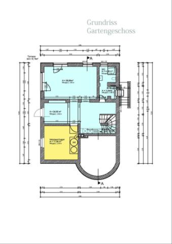
23 Häuser in Dresden

Filter
Relevanz
Neueste zuerst
Preis absteigend
Preis aufsteigend

Häuser in der Nähe von Dresden