Was gehört zu einer Ausführungsplanung? - Erklärung mit Checkliste

(46)
Aktualisiert: 16.12.2024
Inhaltsverzeichnis

Was ist für eine vollständige Ausführungsplanung notwendig?

Wurde die Genehmigungsplanung durch den Architekten erstellt und eingereicht, kann er mit der Ausarbeitung der Ausführungsplanung beginnen. Die Werkplanung ist dabei ein Teil der Ausführungsplanung. Die Ausführungsplanung, die im Maßstab 1 : 50 erstellt wird, dient auf der Baustelle als konkrete Bauvorlage und hat neben der Vergabe und einer guten Ausschreibung eine entscheidende Bedeutung. Eine professionell erstellte Ausführungsplanung ist essenziell für eine reibungslose Umsetzung des Bauprojekts.



Die Werkplanung sollte generell klar strukturiert sein und die einzelnen Schritte entsprechend ihrer späteren Ausführung aufgeführt werden. So sind zum Beispiel alle Grundrisse aufsteigend abzubilden und einen Haus-Quer- oder Haus-Längs-Querschnitt ist anzufügen. Ein solcher Querschnitt führt üblicherweise durch das Treppenhaus. Es sollten grundsätzlich alle Haus-Ansichten abgebildet sein, wenn möglich auch eine Dachaufsicht.

Wofür werden Detailpläne erstellt?

Detailpläne sind, ergänzend zu den großen zentralen Plänen, für alle wichtigen Bauabschnitte notwendig. Sie liefern beispielsweise Details zum Fundament, zu Bodenaufbauten, Abdichtungen, Anschlüssen von Balkon, Dach, etc.



Darüber hinaus sind Durchstoßpunkte für die verschiedenen Hausanschlüsse wie Gas, Strom, Abwasser, Wasser verzeichnet. Diese Details werden meist in Maßstäben von 1 : 20 bis zu 1 : 5 abgebildet. Bei der Planung eines Einfamilienhauses können bereits für die Ausführungsplanung zwischen 15 und 25 Pläne zusammenkommen.

Architektensuche auf Immoportal

Bei Fragen zur Bebaubarkeit von einem Grundstück kann Ihnen ein Architekt, der sich mit den örtlichen Besonderheiten auskennt, am besten helfen. Hier finden Sie kompetente Architekturbüros in Ihrer Nähe

Welchen Stellenwert hat die Ausführungsplanung?

Weist eine Detailplanung Mängel auf, kann selbst der beste Entwurf nicht ohne Komplikationen umgesetzt werden. Eine Werkplanung muss stets mit großer Sorgfalt, Erfahrung und Professionalität erstellt werden. Eine umfassende und lückenlose Ausführungsplanung beinhaltet wichtige Prüfpunkte, die wir für Sie nachfolgend in einer Checkliste zusammengestellt haben.

Zu Beginn Ihrer Werkplanung erstellen Sie, in Zusammenarbeit mit Ihrem Architekten, eine sogenannte Planliste, die aufführt, welche Pläne im Einzelnen anzufertigen sind. Dabei sollten Sie sich darauf verständigen, welche  Details des Hauses im Einzelnen dargestellt und veranschaulicht werden.



Ihr Architekt sollte sich vornehmlich den „kritischen“ Punkten annehmen. Als Bauherr sind Sie gut beraten, gerade diese schwierigen Punkte in der Werkplanung genau unter die Lupe zu nehmen, da eine gute Werkplanung dazu beiträgt, Ärger und Kosten zu minimieren oder gänzlich zu vermeiden.

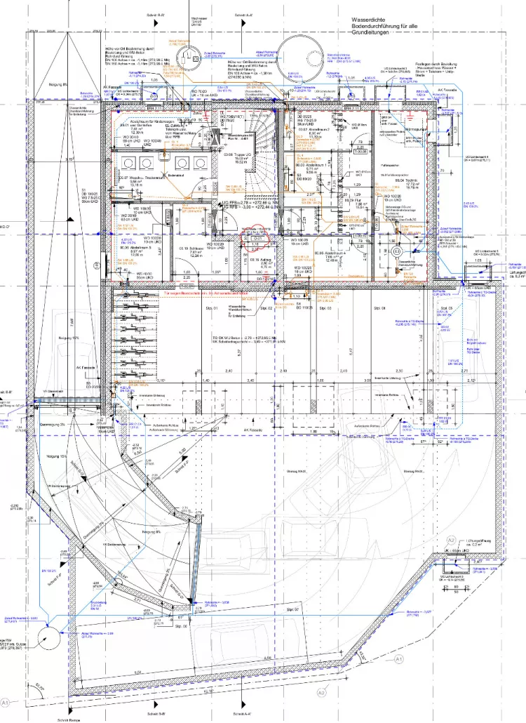
Beispiel einer Werkplanung

Welche Grundlage bildet die Ausführungsplanung?

Die Ausführungsplanung (inklusive der Werkplanung) bildet die rechtliche Grundlage auf derer die Ausführung erfolgt. Die Ausführungsplanung weist eine Reihe von Kenntlichmachungen und Symbolen zu Konstruktionsweisen oder  Installationen sowie Materialien auf. Diese erlangen erst Verbindlichkeit durch die Eintragung in der Ausführungsplanung.



Die Symbolik in der Ausführungsplanung kann im Streitfall maßgeblich sein und wird demzufolge den einzelnen Gewerken bereits bei der Ausschreibung als Anlage beigelegt. Stellt sich während des Dachausbaus beispielsweise die Frage, ob der Kniestock betoniert oder gemauert werden soll, kann das Symbol in der Ausführungsplanung zweifelsfrei Klärung herbeiführen.



Gleiches gilt auch bei Fragen zum Bodenaufbau, der Installation von Elektroausstattung, der Lage und Verlauf von Rohrleitungen oder bei der Art der Fundamentierung. Vorausgesetzt natürlich, es wurde das richtige Symbol in der Ausführungsplanung abgebildet. Verbindlichkeit erlangen die einzelnen Kenntlichmachungen und Symbole durch Eintragung in die Planung.

Welche Pläne gibt es neben der Ausführungsplanung?

Ingenieure der Fachrichtungen Statik, Heizungs-, Sanitär-, Elektro- und Lüftungstechnik fertigen, genau wie die Architekten, Planungen für Ihre Bereiche an. Neben der reinen Ausführungsplanung des Architekten sollten Sie sich auch diese Planungen vor Baubeginn komplett aushändigen lassen und sie durchsehen. Vereinbaren Sie mit Ihrem Architekten ganz generell, dass er Ihnen regelmäßig die aktuellen Pläne zukommen lässt und sorgen Sie dafür, dass im Vorfeld etwaiger Besprechungen allen Beteiligten die neueste Planung vorliegt.

Der richtige Architekt für Ihr Bauprojekt

Lassen Sie sich durch eine Vielzahl realisierter Bauwerke inspirieren. Finden Sie Ihren passenden Architekten durch die Filtermöglichkeit der Aufgabe (z.B. Einfamilienhaus oder Mehrfamilienhaus, …) und die Art des Vorhabens (z.B. Neubau oder Sanierung, …)

Was beinhaltet eine vollständige Ausführungsplanung?

Gegliedert entsprechend der „Plantypen“ Grundriss-, Schnitt- und Ansichtsplan finden Sie in der nachfolgenden Übersicht alle wesentlichen Punkte, die in der Ausführungsplanung eingetragen werden müssen.

Inhalte Ausführungsplanung in Stichworten

Plantyp 

Eintragungen

Pläne zu den Grundrissen

Der Nordpfeil ist zweifelsfrei erkennbar und bildet den Plan so ab, dass Norden an der oberen Planseite, an der unteren Süden, rechts Osten und links Westen liegt

 

Der sogenannte „Plankopf“ enthält Angaben zu Bauherr, Planer/Verfasser, Ort und Lage, Änderungsvermerken inkl. Datum, Namensnennung und eindeutiger Planangabe (Bsp.: Grundriss DG) sowie Angaben zum Maßstab

 

Die vollständigen Maße der Haustiefe und -breite

 

Im Grundriss des Erdgeschosses die Erschließung von Terrasse, Gartenwege, Zufahrten, Außentreppen, etc.

 

Sämtliche Öffnungsmaße (Angabe Höhe und Breite der Rohbaumaße) von Fenstern und Türen

 

Alle Teilmaße (Bsp.: von Fenster zu Fenster, von Hauskante zu Fenster)

 

Stärken sämtlicher Wände (inklusive Materialsymbolik)

 

Angaben zu Dehnungsfugen und Achsmaßen, soweit vorhanden

 

Maße aller Vor- und Rücksprünge

 

Sämtliche Öffnungsviertelkreise mit Angabe der entsprechenden Öffnungsrichtung aller Fenstertüren und Türen

 

Alle auskragenden Bauteile der Ober- oder Untergeschosse (Dach, Balkone, etc.) in gestrichelter Linie

 

Treppenlauf mit korrekter Grundrisskonstruktion der Treppe bei Wendelung sowie Stufenzahl, Gehlinie und Steigungsangaben

 

Lage von Rolläden und Rolladengurten

 

Als gestrichelte Linie: Lage von Kanälen, Stürzen, Durchlässen, Unterzügen in Bezug zur lichten Raumhöhe, etc.

 

Größen aller Räume in m² und entsprechender Bezeichnung

 

Art und Lage aller Bodeneinläufe

 

Oberkante von Fertig- und Rohfußboden aller Räume

 

Verlegepläne zu Wand- und Bodenfliesen, sofern erforderlich

 

Für DG-Grundrisse: Dachspitzbodenlinie (Stoßlinie von aufgehender Dachschräge mit Zimmerdecke DG), Dachgaubenlinien, Anordnung und Lage von Bodeneinschubtreppen, Kniestocklinie (Stoßlinie von aufgehender Wand und Dachschräge)

 

Für alle Bäder: Form, Art und Lage aller sanitären Einrichtungsgegenstände

 

Lage sowie Durchmesser aller Lüftungskanäle und/oder Kaminzüge inklusive Austritts- bzw. Reinigungsöffnungen

 

Lage des Fundaments, aller Kellerlichtschächte

 

Pläne der Fachingenieure zur Sanitär-, Heizungs- und Elektroplanung (essenziell für Lage und Anzahl von Heizkörpern, Steckdosen, Lichtschaltern, etc. oder auch aller Abwasser- bzw. Wasseranschlüsse, etc.)

 

Angaben zu Ent- und Belüftung des Heizraumes

 

Für Räume der Heiztechnik: Lage, Stellung, Anschlüsse und Installation der Heizzentrale und gegebenenfalls erforderlicher Gaszuführungen bzw. Tanklagerzuführungen, etc.

 

Angaben zur Schaffung eines Hausanschlussraumes

 

Ggf. Installation eines Revisionsschachts

 

Lage und Bezeichnung von Schnittlinien, mit Aussage zur Verortung des Vertikalschnitts, der gemäß Schnittplan durch das Haus gelegt wurde

 

Verweise auf entsprechend zugeordnete Detailpläne (Beispielsweise durch Markierung eines Details mit zugeordneter Planziffer im kleinen Maßstab, wo das Detail im Plan mit dem größten Maßstab zu finden ist)

 

Plantyp Eintragungen
Pläne zum Schnitt

Angaben zur Höhenlage des Gebäudes über NN (Bezogen auf Oberkante Fertigfußboden EG)

 

Der sogenannte „Plankopf“ enthält Angaben zu Bauherr, Planer/Verfasser, Ort und Lage, Änderungsvermerken inkl. Datum, Namensnennung und fortlaufender Plannummerierung und eindeutiger Planangabe (Bsp.: Schnitt A-B)

 

Nennung und Bezeichnung sämtlicher Geschosse

 

Angabe aller lichten Raummaße bzw. Rohbaumaße

 

Stärken aller Decken mit Maßangabe des kompletten Bodenaufbaus (Rohdecke, Trittschalldämmung, Estrich, Bodenbelag, etc.) sowie Sturz- und Brüstungshöhen inklusive deren konstruktiver Ausbildung

 

Angabe aller Durchgangshöhen von Fenstertüren, Treppenunterläufen oder Türen

 

Ausbildung und Lage von Ringankern

 

Aufbau, konstruktive Ausbildung und Stärken der einzelnen Wände

 

Wandabwicklungen, soweit erforderlich (beispielsweise bei der Fliesenlegung)

 

Sämtliche Anschlüsse von Außentreppen, Terrassen, Balkonen, Lichtschächten, etc.

 

Anordnung, konstrukitve Ausbildung, Höhenverlauf und Lage von Treppen. Dazu gehören auch sämtliche Zwischenpodeste in Ausbildung und Art aller Anschlusspunkte der Treppen an vorhandene Bauteile, wie beispielsweise Geschosszwischendecken oder Wände

 

Verlauf, Maße und Verankerungen der Dachbinder und des Dachtragewerks

 

Konstruktive Ausbildung von Dachausstiegen oder Gauben mit den entsprechenden Anschlusspunkten an der Dachhaut

 

Montagepunkte, Ausbildung und Aufbau des gesamten Dachhautaufbaus inklusive Ziegeleindeckung und Lattenlage, Montage der Dachrinne Traufanschlusspunkt mit Ausbildung und Ausladung des Sparrenfußes sowie Firstanschluss inkl. Firstlinie

 

Angaben zu entsprechend zugeordneten Detailplänen (Beispielsweise durch Markierung eines Details mit zugeordneter Planziffer im kleinen Maßstab, wo das Detail im Plan mit dem größten Maßstab zu finden ist) und Pläne einzelner Ingenieure aus den Bereichen Sanitär-, Heizungs- und Elektroplanung

 

Verlauf und Lage der Grundleitungen

 

Anschlüsse und Höhenlage der Hauszuleitungen für Wasser, Strom, Gas, etc.

 

Ausbildung und Lage waagerechter Sperrschichten (unterhalb der Grundplatte, in den aufgehenden Wänden)

 

Schnitte des Fundaments, die eindeutig Konstruktionsweisen und Materialien der Fundamentierungen, der vorgesehenen Dichtungen für die Kellerwand (Aufbau der Sperrschichten), der aufgehenden Kellerwände, Stärke und Lage des Drainagerohrs, des max. gemessenen Grundwasserstandes sowie der Kiesverfüllung darstellen und bezeichnen

 

Plantyp Eintragungen
Ansichtspläne

Höhenlinien der Unter- und Oberkanten der einzelnen Geschossdecken – gestrichelt eingezeichnet

 

Angaben im sogenannten „Plankopf“ zu Bauherr, Planer/Verfasser, Ort und Lage, Änderungsvermerken mit Datum Namensnennung sowie laufender Nummerierung und klarer Angabe im Plan (z.B. Ansicht Südost), Maßstab

 

Anordnung und Lage von Türen und Fenstern inklusive gestrichelt ausgewiesener Öffnungssystematik

 

Anordnung und Lage von Terrassen und Außentreppen

 

Anordnung und Lage von Jalousien, Markisen, Rolläden, etc.

 

Kehl-, Trauf-, First- und Gratlinien

 

Anordnung und Lage von Regenfallrohren

 

gestrichelt eingezeichnete Kniestocklinie

 

Gauben, Dachausstiege, Schornsteine

 

Sockelverlauf

 

Geländer, Balkone, Gesimse

 

Angaben zu entsprechend zugeordneten Detailplänen (Beispielsweise durch Markierung eines Details mit zugeordneter Planziffer im kleinen Maßstab, wo das Detail im Plan mit dem größten Maßstab zu finden ist)

 

Angaben zu besonderen Arten der Fassadenbekleidung wie beispielsweise Verklinkerung, Holzverkleidung oder Verputzung

 

Erdreichverlauf

 

gestrichelt eingezeichnete Gründungstiefe der Fundamente

 

Angabe der Höhenlinie auf der die Erschließungsstraße verläuft

 

Dieser Expertenartikel wurde mit großer Sorgfalt von der Immoportal.com Redaktion geprüft. Unser Anspruch ist es, fachlich fundiertes Wissen zu veröffentlichen. Dennoch kann es sein, dass inhaltliche Fehler nicht entdeckt wurden oder der Inhalt nicht mehr dem aktuellen Gesetzesstand entspricht. Finden Sie Fehler, freuen wir uns, wenn Sie uns Bescheid geben. Wir werden die Informationen dann umgehend berichtigen.
Zurück zum Anfang