A (13) | B (31) | C (2) | D (6) | E (7) | F (19) | G (17) | H (6) | I (3) | J (1) | K (18) | L (12) | M (12) | N (10) | O (2) | P (7) | R (12) | S (19) | T (10) | U (3) | V (5) | W (10) | X (1) | Z (2)

Was versteht man unter den Installationszonen?

(30)
Inhaltsverzeichnis

Was ist eine Installationszone?

Installationszonen sind fest definierte Bereiche in Wänden und Decken, in denen elektrische Leitungen horizontal oder vertikal verlaufen und elektrische Betriebsmittel installiert werden dürfen. Zu elektrischen Betriebsmitteln zählen alle Geräte und Bauelemente einer elektrischen Anlage – auch Schalter und Steckdosen.

Die Festlegung von Installationszonen dient dazu, Leitungen vor mechanischen Beschädigungen zu schützen und somit Sach- und Personenschäden zu vermeiden.

Ein Beispiel Wenn Sie ein Bild an einer Wand aufhängen und mit dem Nagel keine Leitung treffen möchten, müssen Sie wissen, wo die Leitungen verdeckt verlaufen. Dank der festgelegten Installationszonen ist das möglich.

Installationszonen gelten für die verdeckte Leitungsverlegung und sind nach DIN 18015-3 (Elektrische Anlagen in Wohngebäuden – Teil 3: Leitungsführung und Anordnung der Betriebsmittel) genormt.

Gut zu wissen Installationszonen werden auch als Verlegezonen bezeichnet.

Welche Installationszonen gibt es?

Die DIN 18015-3 (Ausgabe 2016-09) legt folgende Installationszonen fest:

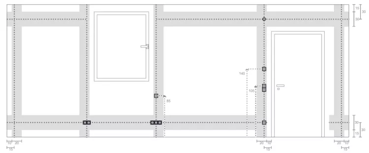
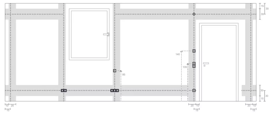
Waagrechte Installationszonen Wand (horizontale Leitungsverlegung)

Kürzel

Bezeichnung

Max. Breite

Lage

ZW-u

Untere waagrechte Installationszone

30 cm

15-45 cm über dem fertigen Fußboden

ZW-m

Mittlere waagrechte Installationszone

30 cm

100-130 cm über den fertigen Fußboden

ZW-o

Obere waagrechte Installationszone

30 cm

15-45 cm unter der Deckenbekleidung

Die mittlere waagrechte Installationszone gibt es in Räumen, in denen Arbeitsflächen vor der Wand installiert werden, wie beispielsweise in der Küche oder in Arbeitsräumen.

Achtung! Die mittlere Installationszone kann bei Gebäuden, die vor 2007 errichtet wurden, etwas tiefer liegen. Bis 2007 lag diese im Bereich von 90 bis 120 Zentimeter und Unterputzleitungen wurden meistens auf einer Höhe von 100 Zentimetern über dem Boden (Oberkante fertiger Fußbodenbelag) verlegt. Für Schalter und Steckdosen hingegen galt auch damals schon eine Vorzugshöhe von 115 Zentimetern.

Senkrechte Installationszonen Wand (vertikale Leitungsverlegung)

Kürzel

Bezeichnung

Max. Breite

Lage

ZS-t

senkrechte Installationszone an Türen

20 cm

10-30 cm neben den Rohbaukanten; bei einflügligen Türen auf der Schlossseite, bei zweiflügligen Türen beidseitig

ZS-f

senkrechte Installationszone an Fenstern

20 cm

10-30 cm neben den Rohbaukanten; beidseitig

ZS-e

senkrechte Installationszone an Wandecken

20 cm

10-30 cm neben den Rohbauecken; beidseitig

Installationszonen Decke (auf oder unter der Decke)

Kürzel

Bezeichnung

Max. Breite

Lage

ZD-r

Installationszone im Raum

30 cm

entlang der Raumwände mit mind. 20 cm Abstand

ZD-t

Installationszone im Türdurchgang

30 cm

im Türdurchgang beidseitig mind. 15 cm von Wand entfernt

Vorzugshöhen für Schalter und Steckdosen

Für Schalter und Steckdosen gibt es innerhalb der Installationszonen sogenannte Vorzugshöhen. Diese liegen im unteren Bereich 30 Zentimeter und im mittleren Bereich bei 105 Zentimetern über dem fertigen Fußboden. In Küchen und Hausarbeitsräumen kann die Vorzugshöhe im mittleren Bereich abweichen. Liegen die Steckdosen, Schalter oder Installationsdosen außerhalb der Installationszonen, sind sie mit einer senkrechten Stichleitung aus der horizontalen Installationszone zu versorgen, die am nächsten liegt.

Waagrechte Installationszonen an den Außenseiten von Außenwänden Die DIN 18015-3 Ausgabe 2016-09 definiert zum ersten Mal Installationszonen an den Außenseiten von Außenwänden.

Kürzel

Bezeichnung

Max. Breite

Lage

AZW-o

Äußere waagrechte Installationszone oben

20 cm

20-40 cm unter der Deckenbekleidung der Innendecke

AZW-u

Äußere waagrechte Installationszone unten

20 cm

20-40 cm über dem Fußboden innen

Senkrechte Installationszonen an den Außenseiten von Außenwänden Erstmals in DIN 18015-3 Ausgabe 2016-09 definiert.

Kürzel

Bezeichnung

Max. Breite

Lage

AZS-t

Äußere senkrechte Installationszone an Türen

20 cm

10-30 cm neben Rohbaukanten; bei einflügligen Türen auf Schlossseite, bei zweiflügligen Türen beidseitig

AZS-f

Äußere senkrechte Installationszone an Fenstern

20 cm

10-30 cm neben Rohbaukanten; beidseitig

AZS-w

Äußere senkrechte Installationszone an Wandkanten

20 cm

50-70 cm neben den Rohbaukanten; beidseitig

Installationszonen bei Dachschrägen

In Dachschrägen verläuft die Installationszone parallel zur Dachschräge.

Installationszonen im Bad

Im Bad entfallen die untere und mittlere Installationszone, genutzt werden darf nur die obere Installationszone. Dafür gelten zusätzlich sogenannte Schutzbereiche, vier an der Zahl. Sie sind in der DIN 57100/VDE 100 Teil 701 festgelegt:

  • Schutzbereich 0: Innenbereich von Badewannen oder Duschen
  • Schutzbereich 1: Fläche über der Bade- oder Duschwanne bis auf eine Höhe von 2,25 Metern über dem fertigen Fußboden
  • Schutzbereich 2: 60 Zentimeter Bereich (Flächen mit 60 Zentimeter Tiefe vor Dusche oder Wanne an den Wandseiten, bis 2,25 Meter über dem fertigen Fußboden)
  • Schutzbereich 3: 240 Zentimeter Bereich (Flächen mit 240 Zentimetern Tiefe vor Schutzbereich 2, an den Wandseiten bis 2,25 Meter über dem fertigen Fußboden)

Für jeden dieser Bereiche ist genau festgelegt, was dort installiert werden darf; ob zum Beispiel Leuchten erlaubt sind und wenn ja, welche Schutzart diese haben müssen.

Sind Installationszonen Pflicht?

Ja, für verdeckt verlegte Leitungen in Wänden und Decken sind Installationszonen nach DIN 18015-3 Pflicht.

Ausnahmeregelungen

  • Wände/Decken mit baulichen Hindernissen: Bei manchen baulichen Maßnahmen müssen Leitungen die vorgeschriebenen Installationszonen verlassen – zum Beispiel bei Stahlträgern über Türen oder Fenstern. In solchen Fällen dürfen die Leitungen außerhalb der Installationszonen am Hindernis vorbeigeführt werden.
  • Räume mit Leichtbauweise und Fertigbauteilen: Von den Installationszonen darf auch in Räumen mit Leichtbauweise und Fertigbauteilen abgewichen werden. Voraussetzung: Leitungen und Rohre werden mindestens sechs Zentimeter überdeckt oder so in den Hohlräumen verlegt, dass sie Bohrungen ausweichen können.
  • Räume mit besonderen Schutzbereichen: In Räumen, in denen gemäß den Bestimmungen des Verbandes der Elektrotechnik Elektronik Informationstechnik e. V. (VDE) besondere Schutzbereiche gelten, können Installationszonen nur eingeschränkt angewendet werden. Zu solchen Räumen zählen zum Beispiel Bäder mit Dusche oder Badewanne.
Gut zu wissen Für Aufputz-Installationen, Installationskanalsysteme und Doppelböden gilt die Norm nicht.

Warum müssen Installationszonen eingehalten werden?

Installationszonen müssen eingehalten werden, um Beschädigungen an Leitungen durch Bohren oder Ähnliches zu verhindern, die zu Sach- und Personenschäden führen können. Durch Installationszonen weiß auch bei verdeckt verlegten Leitungen jeder, wo diese entlanglaufen. Somit ist man davor geschützt, versehentlich hineinzubohren und womöglich einen Schlag zu bekommen.

Dieser Expertenartikel wurde mit großer Sorgfalt von der Immoportal.com Redaktion geprüft. Unser Anspruch ist es, fachlich fundiertes Wissen zu veröffentlichen. Dennoch kann es sein, dass inhaltliche Fehler nicht entdeckt wurden oder der Inhalt nicht mehr dem aktuellen Gesetzesstand entspricht. Finden Sie Fehler, freuen wir uns, wenn Sie uns Bescheid geben. Wir werden die Informationen dann umgehend berichtigen.
Zurück zum Anfang